BLOG
Our Favorites + Building Knowledge and Materials
Home>Articles

Simple 1,500 Sq. Ft. House Plans

Simple 1,500 Sq. Ft. House Plans
Learn about simple 1,500 sq. ft. house plans.

Simple 1,500 Sq. Ft. House Plans

By Courtney Pittman

In the market for a budget-friendly design with an uncomplicated layout? Here’s a roundup of simple 1,500 sq. ft. house plans. Look for straightforward footprints, open gathering spaces, and well-thought-out rooms. Each design is around 1,500 sq. ft. and uses space wisely, along with featuring amenities you’re sure to love.

Explore our 1,500 sq. ft. house plans collection

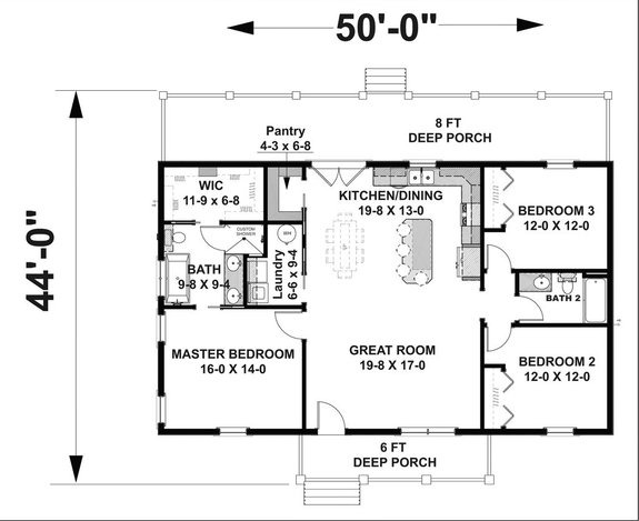
Simple Cottage Design Simple Cottage Design Simple Cottage Design - Front Exterior

Simple Cottage Design Simple Cottage Design - Main Level

Looking for a house plan with charming curb appeal? This cottage design does the job nicely. We love the cute front porch, the metal roof, and the board-and-batten siding. Inside, an open floor plan creates excellent flow.

Two bedrooms share a hall bath on the right side of the plan, while the primary suite enjoys privacy on the left. Don’t miss the spacious pantry and the big back porch.

Prairie Style Plan with Outdoor Living Prairie Style Plan with Outdoor Living Prairie Style Plan with Outdoor Living - Front Exterior

Prairie Style Plan with Outdoor Living Prairie Style Plan with Outdoor Living - Main Level

Here’s a prairie house plan that stands out with lots of outdoor living – beginning with a welcoming front porch. Other outdoor options include two open decks, a wide back covered deck, and a screened porch. Inside, a cooktop island (with an eating bar) provides extra counter space in the kitchen. The vaulted great room features a big fireplace.

Two sinks, a big walk-in closet, and a luxurious shower highlight the primary suite. Check out the spacious pantry and the hardworking utility room with a bench.

European Style Design European Style Design European Style Design - Front Exterior

European Style Design European Style Design - Main Level

This European design feels fresh and contemporary with a metal roof and stone siding. Inside, an island connects the kitchen with the dining area and the living room. Three bedrooms, including the primary suite, rest in the left wing of the plan. A two-car garage offers room for storage.

Contemporary Plan with Three-Car Garage Contemporary Plan with Three-Car Garage Contemporary Plan with Three-Car Garage - Front Exterior

Contemporary Plan with Three-Car Garage Contemporary Plan with Three-Car Garage - Main Level

Contemporary Plan with Three-Car Garage Contemporary Plan with Three-Car Garage - Upper Level

Here’s a great use of 1,474 square feet. On the main level, the three-car garage gives you a woodworking room, a craft room, and a utility room. Upstairs, the living room flows effortlessly into the kitchen, where you’ll find a generous pantry and a snack bar.

Two bedrooms (one with an extra-large walk-in closet) share a hall bath towards the back of the plan. The laundry room keeps clothes tidy, while a balcony makes it easy to enjoy outdoor living.

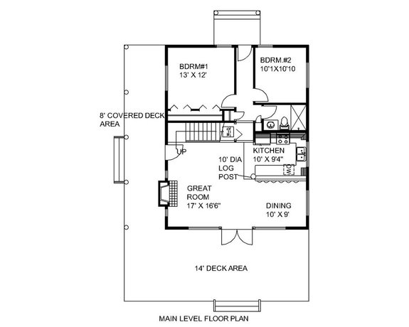
Cabin Plan with Loft Cabin Plan with Loft Cabin Plan with Loft - Front Exterior

Cabin Plan with Loft Cabin Plan with Loft - Main Level

Cabin Plan with Loft Cabin Plan with Loft - Upper Level

Create your own cozy getaway with this cozy cabin house plan. The wraparound deck is ready to capture the view. Spacious and open, the great room, the dining area, and the kitchen conveniently share one big space. A versatile loft on the second level could become an office or reading space.

Two-Bedroom Design with Office Two-Bedroom Design with Office Two-Bedroom Design with Office - Front Exterior

Two-Bedroom Design with Office Two-Bedroom Design with Office - Main Level

Thoughtful design choices make this small two-bedroom plan live large. An open floor plan between the main living areas delivers a relaxed attitude. Nearby, an office offers flexibility. The primary bedroom features access to a private covered porch, plus two walk-in closets. A wide front porch lends more room for outdoor living.

Two-Story Plan with Game Room Two-Story Plan with Game Room Two-Story Plan with Game Room - Front Exterior

Two-Story Plan with Game Room Two-Story Plan with Game Room - First Level

Two-Story Plan with Game Room Two-Story Plan with Game Room - Upper Level

Here’s a welcoming plan that delivers plenty of charm with a wide front porch. The first floor features a half bath and a flexible game room that could be used in a number of ways. Upstairs, an open floor plan combines the kitchen, the breakfast nook, and the living room, while a full bath sits nearby. Two bedrooms complete this level.

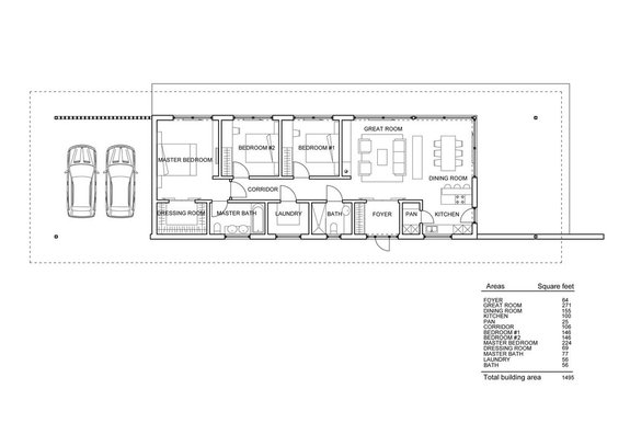
Modest Modern Plan Modest Modern Plan Modest Modern Plan - Rear Exterior

Modest Modern Plan Modest Modern Plan - Main Level

Clean lines give this modern design a sleek look. The kitchen serves the dining area and the great room with an eating bar. The walk-in pantry is a nice touch. Check out the big closet/dressing room in the primary suite. Store up to two vehicles in the convenient carport.

See more 1,500 sq. ft. house plans

Simple 1,500 Sq. Ft. House Plans

Coupon Codes