BLOG
Our Favorites + Building Knowledge and Materials
Home>Articles

5 Bedroom Open Concept House Plans

5 Bedroom Open Concept House Plans
Explore these family-friendly home designs

By Devin Uriarte

Open floor houses are all the rage, and we don’t see them going anywhere anytime soon. Open floor plans bring in lots of natural light and all around feel brighter and airier. The layout of these house plans offers a seamless flow from room to room, which makes them an ideal place to entertain. With a home so focused on entertaining, you’ll want multiple rooms to comfortably house your guests. These 5 bedroom house plans vary in style and design but are all incredibly spacious and highly functional.

Explore our collection of 5 bedroom house plans

Five Bedroom Modern Farmhouse Plan Five Bedroom Modern Farmhouse Plan Five Bedroom Modern Farmhouse Plan - Exterior

Five Bedroom Modern Farmhouse Plan Five Bedroom Modern Farmhouse Plan - Main Floor Plan

Here's a true farmhouse exterior with a spacious and modern interior. You enter the home through the foyer and are soon standing in the two-story family room. Because the family room is open to the upstairs, light can stream in with ease. The kitchen adds to the openness of the space while maintaining an entertaining feeling with the large island. The impressively large walk-in pantry is steps away from the kitchen for maximum efficiency.

A dining room with windows sits beside the kitchen for a more intimate setting. Bring in the cool summer breeze by opening the sliding glass doors in the family room. On those summer nights, bring the party outdoors to the vaulted covered porch. The owner’s suite is tucked away on the first floor with double sliding glass doors that lead to the covered porch. An additional room downstairs can be used for guests or be used as an at-home office. Upstairs are three additional bedrooms, all with walk-in closets.

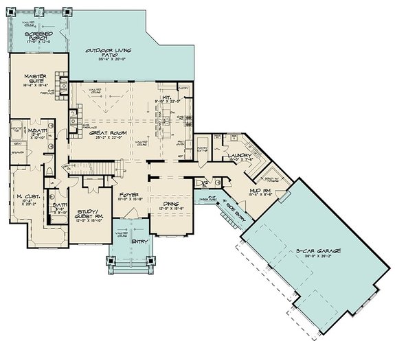
Craftsman House Plan with Five Bedrooms Craftsman House Plan with Five Bedrooms Craftsman House Plan with Five Bedrooms - Exterior

Craftsman House Plan with Five Bedrooms Craftsman House Plan with Five Bedrooms - Main Floor Plan

Here is a Craftsman style house plan with some serious curb appeal. A rugged truss on the entryway welcomes you into the home. Through the foyer is the great room with vaulted ceilings. The fireplace adds a touch of coziness to the open space. A partially closed-off dining room sits to the right of the foyer and is easily accessed from the kitchen. The kitchen features an impressive island with a built-in bar top that can comfortably seat five people. Who needs one walk-in pantry when you can have two? The larger walk-in pantry sits around the corner from the kitchen for even more storage space.

The primary suite is quite luxurious with a gas fireplace, a huge walk-in closet, and private access to the screened porch. An additional room is located on the first floor and can be utilized as a study or guest room. Three bedrooms and an additional loft area are located upstairs. Each bedroom is given a bathroom for additional privacy.

European Style House Plan with Five Bedrooms European Style House Plan with Five Bedrooms European Style House Plan with Five Bedrooms - Exterior

European Style House Plan with Five Bedrooms European Style House Plan with Five Bedrooms - Main Floor Plan

Classic European style meets sleek modern in this single-story home plan. The porch upon entering the home is a whimsical way to welcome your guests. This porch has vaulted ceilings and is large enough for an outdoor seating area. The grand living area features a fireplace and easily connects to the dining room and kitchen. A full wet bar and open pantry sit around the corner from the kitchen. Natural light seamlessly shines through the sliding glass doors that open to the porch and screened in porch. The screened porch will be your new favorite place to unwind as you cozy up in front of the fireplace.

In one wing of this house reside the primary suite and study. The primary suite offers two walk-in closets and a sun tunnel for additional light. On the other side of the house, there are three additional bedrooms. Each bedroom has its own walk-in closet (including a sun tunnel) and two of the bedrooms share a bathroom.

Five Bedroom Traditional Home Plan Five Bedroom Traditional Home Plan Five Bedroom Traditional Home Plan - Exterior

Five Bedroom Traditional Home Plan Five Bedroom Traditional Home Plan - Main Floor Plan

If entertaining is a must for you, then feast your eyes on this 4,736-square-foot house plan. Upon entering the home through the foyer, you find yourself in the great room. The great room features a vaulted ceiling (for an airy feeling) and a fireplace for a relaxing vibe. In the kitchen is a large island that can comfortably seat four individuals at the high bar. Through the kitchen is the dining room that includes its own entrance to the back porch. Double French doors open to the covered grilling porch. Keep the doors open for a smooth flow throughout the living area when entertaining.

The luxe primary suite and guest bedroom reside on the main floor of the home, while three additional rooms are on the lower level. A fully luxe experience awaits in the primary suite with an optional vaulted ceiling, a private bathroom with a linen closet, and an impressive walk-in closet with a center island. Downstairs will be the source of gaming and entertaining with a gaming room and home theater.

Farmhouse Home Plan with Five Bedrooms Farmhouse Home Plan with Five Bedrooms Farmhouse Home Plan with Five Bedrooms - Exterior

Farmhouse Home Plan with Five Bedrooms Farmhouse Home Plan with Five Bedrooms - Main Floor Plan

A wraparound front porch is a lovely addition to this farmhouse plan. A vaulted ceiling in the living room creates a spacious feeling throughout. French doors give access to the rear porch, which includes an impressive full outdoor kitchen and a wood burning fireplace. Back inside is the spacious kitchen, which opens to the dining area for a casual vibe. Access to the butler pantry and walk-in pantry is through the dining room.

Three bedrooms are located on one side of the home and a bathroom is shared between them all. On the opposite side of the home, you will find another bedroom and the primary suite. The second bedroom could be used as an at-home office as it is located across from the primary suite. The primary suite gives a touch of farmhouse style with its sliding barn door to access the bathroom and walk-in closets.

Discover more 5 bedroom home floor plans here.

Coupon Codes