BLOG
Our Favorites + Building Knowledge and Materials
Home>Articles

Cozy A-Frame House Plans

Cozy A-Frame House Plans
Check out these cozy A-frame plans that we love.

Cozy A-Frame House Plans

By Gabby Torrenti

This collection of plans features A-frame house plans that channel cozy, rustic vibes all year round. Perfect for wooded areas or mountainous regions, these homes feature wood and stone details that blend in perfectly with nature. They also offer open living spaces, tall ceilings thanks to the unique A-shape design and lots of convenient loft and storage spaces. Plus, dramatic windows and large decks allow you to enjoy relaxing views of your property.

Want to see all of our cozy A-frame house plans? Check out the full collection here.

A-Frame Cabin with Outdoor Living Space House Plan Design - Cozy A-Frame House Plans A-Frame Cabin with Outdoor Living Space 1010-148 - Front Exterior House Plan Design - Cozy A-Frame House Plans A-Frame Cabin with Outdoor Living Space 1010-148 - Main Floor Plan House Plan Design - Cozy A-Frame House Plans A-Frame Cabin with Outdoor Living Space 1010-148 - Upper Floor Plan

With two levels of outdoor living space and rustic stone details, this two-story A-frame cabin has instant curb appeal and would fit in nestled in nature or in a suburban neighborhood. On the lower level, a porch and entryway open the home, with the main living space located to the left. The great room features a cathedral ceiling thanks to the A-shaped exterior, while a dining room and kitchen sit close by. Opposite the front door, the primary bedroom features its own full bathroom with a whirlpool tub. The second bedroom is located toward the front of the space and includes easy access to another full bathroom. A deck juts off the left of the home, providing lots of outdoor living space as well. Upstairs, two more bedrooms sit to the left of the top of the stairs, with a full hall bathroom just a few steps away. A quaint sitting room gives you a relaxing space to unwind at the end of the day, while a loft open to below makes for a seamless visual flow between floors.

Modern A-Frame Home House Plan Design - Cozy A-Frame House Plans Modern A-Frame Home 23-2023 - Front Exterior House Plan Design - Cozy A-Frame House Plans Modern A-Frame Home 23-2023 - Main Floor Plan House Plan Design - Cozy A-Frame House Plans Modern A-Frame Home 23-2023 - Upper Floor Plan
House Plan Design - Cozy A-Frame House Plans Modern A-Frame Home 23-2023 - Lower Floor Plan

On the main level of this three-floor modern cabin, a porch and flight of stairs lead inside, opening to a mudroom and foyer. To the left, the eat-in kitchen and living room create a hub for entertaining guests or relaxing with family, with the primary bedroom located to the right through a set of double doors. A full bathroom completes this level. Upstairs, a loft space is open to below, creating flow between floors and providing more room to relax. On the home’s lowest level, a family room sits straight ahead and offers an area for guests and family members to enjoy, with sliding-door access to the patio for enjoying a nice day. Two additional bedrooms are ideal for kids or guests, with a hall bathroom at everyone’s disposal.

Contemporary & Rustic A-Frame Cabin House Plan Design - Cozy A-Frame House Plans Contemporary & Rustic A-Frame Cabin 117-914 - Front Exterior House Plan Design - Cozy A-Frame House Plans Contemporary & Rustic A-Frame Cabin 117-914 - Main Floor Plan House Plan Design - Cozy A-Frame House Plans Contemporary & Rustic A-Frame Cabin 117-914 - Upper Floor Plan

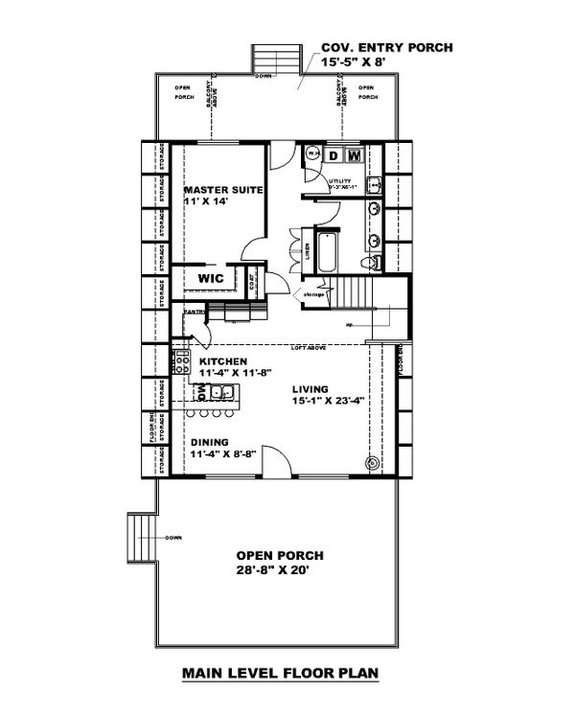
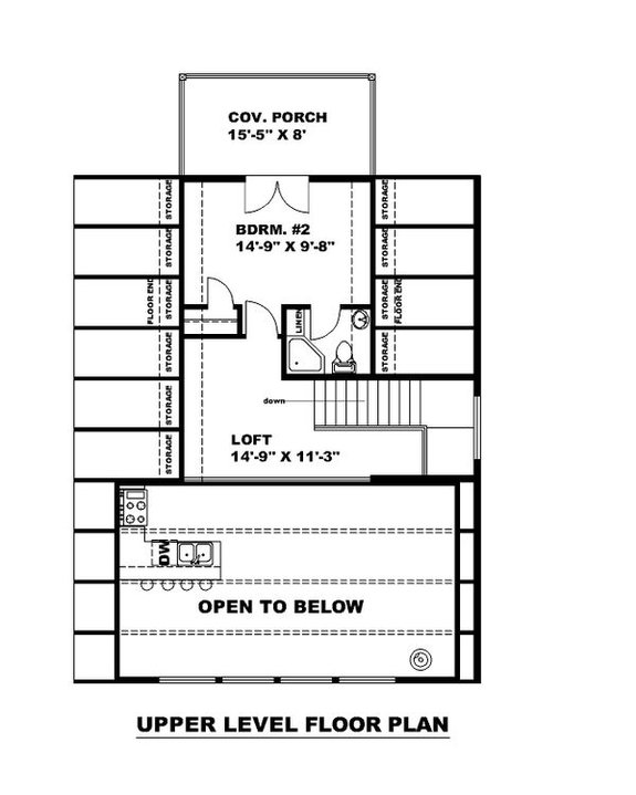
This contemporary cabin is fronted by tons of windows, letting in lots of natural light and offering views of surrounding nature. Through the front door and beyond the covered entry porch, the primary suite sits directly to the right, featuring its own walk-in closet and a bathroom with double sinks across the hallway. Straight ahead, the kitchen, living room, and dining room sit at the rear of the home, with access to the open porch for simple alfresco dining. Upstairs, a loft is open to below, capitalizing on the A shape of this home and creating a sense of spaciousness. A second bedroom includes its own bathroom, creating a private space for guests or kids to enjoy. More covered porch space on this level ensure that everyone can enjoy outdoor living just steps from their bedroom.

A-Frame Craftsman Cottage House Plan Design - Cozy A-Frame House Plans A-Frame Craftsman Cottage 124-1242 - Front Exterior House Plan Design - Cozy A-Frame House Plans A-Frame Craftsman Cottage 124-1242 - Main Floor Plan House Plan Design - Cozy A-Frame House Plans A-Frame Craftsman Cottage 124-1242 - Upper Floor Plan

This Craftsman home comes in at just under 3,000 square feet, and features plenty of space for a family and guests to enjoy across three levels. On the main floor, porch and deck space surrounds the home, with an entryway leading into the kitchen with a center island. A vaulted great room sits to the left, featuring a built-in fireplace that creates a cozy space in your abode and includes access to the exterior porches. Two bedrooms sit at the opposite side of the space and share a convenient full bathroom in the hallway. Upstairs, you'll find the primary suite and a loft. This ultra-spacious suite includes a full bathroom with an L-shaped vanity with two sinks and a secluded walk-in closet, creating a luxe escape for the homeowners. On the home’s lowest level, additional guests can enjoy another bedroom and full bathroom, while a recreation room (complete with a kitchenette) provides space for a fun night with friends and family. This plan is made complete with a convenient garage for parking or storage.

Rustic A-Frame Cabin House Plan Design - Cozy A-Frame House Plans Rustic A-Frame Cabin 118-150 - Front Exterior House Plan Design - Cozy A-Frame House Plans Rustic A-Frame Cabin 118-150 - Main Floor Plan House Plan Design - Cozy A-Frame House Plans Rustic A-Frame Cabin 118-150 - Upper Floor Plan

On the main level of this space, the home showcases a great room, with simple screened porch access. The kitchen is conveniently nestled close by, just steps away from a bedroom and full bathroom. Upstairs, a combined studio and bedroom space sits to the left of the top of the stairs, with a bathroom with double sinks straight ahead. To the right, another bedroom is ideal for guests or children, while attic space throughout provides lots of storage.

Modern Cottage House Plan Design - Cozy A-Frame House Plans Modern Cottage 25-4925 - Front Exterior House Plan Design - Cozy A-Frame House Plans Modern Cottage 25-4925 - Main Floor Plan House Plan Design - Cozy A-Frame House Plans Modern Cottage 25-4925 - Upper Floor Plan

This three-floor modern cottage features lots of open living space, five bedrooms, and outdoor space on each level. On the lowest floor, a great room creates a cozy escape, with two bedrooms that are perfect for guests or children. On the main floor, a living room with a fireplace makes the perfect space to entertain, with a kitchen and dining space nearby.

Want to see more of our cozy A-fame house plans? Check out the full collection here.

Cozy A-Frame House Plans

Coupon Codes