BLOG
Our Favorites + Building Knowledge and Materials
Home>Articles

Pretty Porches: Modern Farmhouse Plans We Love

Pretty Porches: Modern Farmhouse Plans We Love
Sit back and relax with these modern farmhouse plans.

Pretty Porches: Modern Farmhouse Plans We Love

By Courtney Pittman

It’s all about timeless curb appeal and up-to-date details with these modern farmhouse plans. Here are some of our favorites – and they pack a serious style punch. They all display well-thought-out amenities such as wide front porches, handy mudrooms, and open gathering spaces.

Can’t get enough of the farmhouse look? Explore our modern farmhouse plans collection here.

Modern Farmhouse Plan with Open Layout Modern Farmhouse Plan with Open Layout Modern Farmhouse Plan with Open Layout - Front Exterior

Modern Farmhouse Plan with Open Layout Modern Farmhouse Plan with Open Layout - Main Floor Plan

Modern Farmhouse with Open Layout Modern Farmhouse with Open Layout - Upper Floor Plan

Here’s a stylish modern farmhouse plan with great indoor and outdoor spaces. The generous great room features a fireplace and easy access to both the kitchen and the dining room. Check out the spacious mudroom (with cubbies) near the two-car garage entrance.

The home office includes a private bathroom (with a shower!) and could also be used as a guest room. Upstairs, the primary suite shows off a big shower, an extra-spacious closet, and direct access to the laundry room. Don’t miss the flexible loft or the relaxing screened porch (take a look at these screened porch ideas from HGTV).

Modern Farmhouse Plan with Efficient Layout Modern Farmhouse Plan with Efficient Layout Modern Farmhouse Plan with Efficient Layout - Front Exterior

Modern Farmhouse Plan with Efficient Layout Modern Farmhouse Plan with Efficient Layout - Main Floor Plan

Modern Farmhouse Plan with Efficient Layout Modern Farmhouse Plan with Efficient Layout - Upper Floor Plan

This modern farmhouse plan seals the deal with a wide front porch and a highly efficient layout. The kitchen gives you lots of counter space, a walk-in pantry, and a casual island. Check out the smart office next to the foyer.

The primary suite and three secondary bedrooms (each with a walk-in closet) are located on the second level. A versatile loft can be used in a variety of ways.

Modern Farmhouse Plan with Wraparound Porch Modern Farmhouse Plan with Wraparound Porch Modern Farmhouse Plan with Wraparound Porch - Front Exterior

Modern Farmhouse Plan with Wraparound Porch Modern Farmhouse Plan with Wraparound Porch - Main Floor Plan

Modern Farmhouse Plan with Wraparound Porch Modern Farmhouse Plan with Wraparound Porch - Upper Floor Plan

A timeless wraparound porch decorates the exterior of this modern farmhouse plan. An island adds prep space in the kitchen and does double duty as a snack bar. Nearby, the vaulted great room opens to the dining area and out to the porch.

Conveniently located on the first floor, the primary suite sits at the back of the floor plan and boasts a spa-like bathroom. Another bedroom suite sits to the right. Two additional bedrooms share a full bath on the second level, along with a loft and storage space (check out these storage tips from The Spruce).

Upscale Modern Farmhouse Plan Upscale Modern Farmhouse Plan Upscale Modern Farmhouse Plan - Front Exterior

Upscale Modern Farmhouse Plan Upscale Modern Farmhouse Plan - Main Floor Plan

A metal roof covers the wide front porch of this upscale modern farmhouse plan. The lodge room offers a cozy fireplace and opens to the well-equipped kitchen. The primary suite enjoys privacy on the left side of the floor plan (don’t miss the extra-big closet).

The right wing holds an office or den and two more bedroom suites. A small island adds efficiency to the spacious laundry room.

Modern Farmhouse Plan with Home Office Modern Farmhouse Plan with Home Office Modern Farmhouse Plan with Home Office - Front Exterior

Modern Farmhouse Plan with Home Office Modern Farmhouse Plan with Home Office - Main Floor Plan

Modern Farmhouse Plan with Home Office Modern Farmhouse Plan with Home Office - Upper Floor Plan

Check out this sweet modern farmhouse plan. The living room opens to the generous island kitchen and the covered porch. Convenient storage solutions include walk-in closets in each bedroom and a large pantry. Near the back, a flexible office is a great place to work from home.

Three bedrooms wait on the second floor – including the luxe primary suite (which features direct access to the laundry room).

Five-Bedroom Modern Farmhouse Plan Five-Bedroom Modern Farmhouse Plan Five-Bedroom Modern Farmhouse Plan - Front Exterior

Five-Bedroom Modern Farmhouse Plan Five-Bedroom Modern Farmhouse Plan - Main Floor Plan

Five-Bedroom Modern Farmhouse Plan Five-Bedroom Modern Farmhouse Plan - Upper Floor Plan

This stunning five-bedroom modern farmhouse plan shows off a striking exterior. Highlights of the interior include a wide kitchen island, cubbies and a bench in the mudroom, and a handy home office. The kitchen opens completely to the family room, the dining nook, and out to the screened porch.

A guest suite sits on the main floor, while four bedrooms (including the main suite) round out the second level. An unfinished bonus room opens up all kinds of possibilities.

One-Story Modern Farmhouse Plan One-Story Modern Farmhouse Plan One-Story Modern Farmhouse Plan - Front Exterior

One-Story Modern Farmhouse Plan One-Story Modern Farmhouse Plan - Main Floor Plan

Here’s a neighborhood-friendly farmhouse design with a beautiful front porch. Inside, the layout is thoughtfully designed with the island kitchen and great room open to one another. Near the back, the primary suite enjoys privacy and a big shower.

Nestled between the primary suite and the great room, a home office gives you a quiet place to get work done. We love the organized mudroom and the built-in wine bar near the kitchen.

Modern Farmhouse Plan with Outdoor Living Modern Farmhouse Plan with Outdoor Living Modern Farmhouse Plan with Outdoor Living - Front Exterior

Modern Farmhouse Plan with Outdoor Living Modern Farmhouse Plan with Outdoor Living - Main Floor Plan

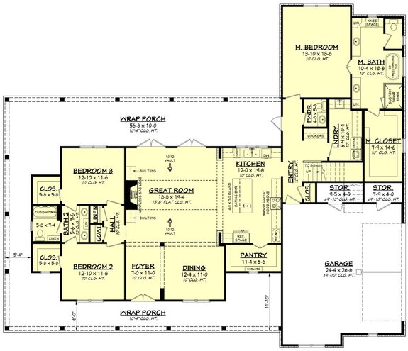
This modern farmhouse plan turns heads with a classic wraparound porch. At the heart of the home, the great room opens to the island kitchen with ease. To the left, two bedrooms (with walk-in closets) share a Jack-and-Jill bath.

The primary suite impresses with two vanities, a custom shower, and a relaxing tub. Other special details include lots of storage in the garage, a big laundry room, a walk-in pantry, and a drop zone with lockers.

Charming Modern Farmhouse Plan Charming Modern Farmhouse Plan Charming Modern Farmhouse Plan - Front Exterior

Charming Modern Farmhouse Plan Charming Modern Farmhouse Plan - Main Floor Plan

Just under 2,000 square feet, this modern farmhouse plan delivers plenty of hardworking amenities, like the practical mudroom and the outdoor kitchen. A front porch creates country curb appeal. The open floor plan provides seating for four at the kitchen’s island, opening to the great room.

The primary suite boasts dual sinks and direct access to the laundry room. Two secondary bedrooms share a full bath on the right side of the plan.

Functional Modern Farmhouse Plan Functional Modern Farmhouse Plan Functional Modern Farmhouse Plan - Front Exterior

Functional Modern Farmhouse Plan Functional Modern Farmhouse Plan - Main Floor Plan

Here’s a functional farmhouse design with a breezy front porch. Near the front, the dining room is ready for special evenings. An eating bar at the kitchen island is a welcome detail. The great room opens to the rear porch.

The decked-out primary suite gives you a luxurious bathroom with two sinks, a shower, a separate tub, and a huge closet. Steps away, the nearby laundry room sports a sink and counter space.

Discover more modern farmhouse plans here.

Pretty Porches: Modern Farmhouse Plans We Love

Coupon Codes