BLOG
Our Favorites + Building Knowledge and Materials
Home>Articles

House Plans with Angled Garages

House Plans with Angled Garages
Check out the best angled garage house floor plans.

By Devin Uriarte

These house plans with angled garages are great options for those who are interested in building on a corner lot. Each of these house plans features open layouts varying in design and style. Some of the garages open to the side while others open to the front, but all have stunning curb appeal.

Browse the Full Collection of House Plans with Angled Garages Here.

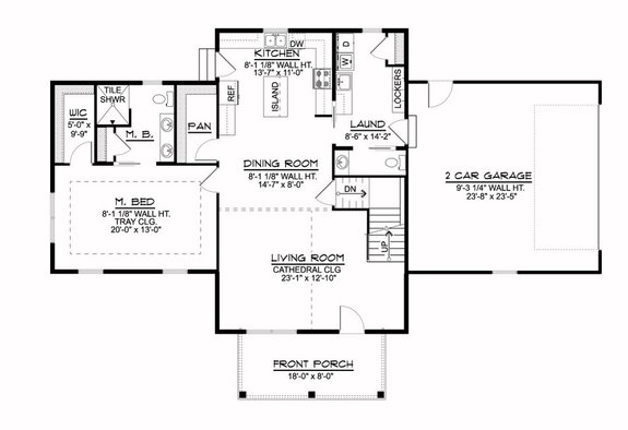
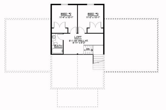
Craftsman Style Plan with Angled Garage Craftsman Style Plan with Angled Garage Craftsman Style Plan with Angled Garage - Front Exterior

Craftsman Style Plan with Angled Garage Craftsman Style Plan with Angled Garage - Main Floor Plan

Enter this unique Craftsman house plan through the welcoming front porch or through the two-car angled garage. In this Craftsman, owners can host friends and family in the open living space with a gourmet kitchen and two-way fireplace. During the summer when the weather is nice, owners can entertain guests out on the lanai and barbecue porch. The other side of the two-way fireplace can be enjoyed in the formal dining room for special occasions. This plan also features two guest bedrooms, a private office, and a luxurious primary suite.

See more Craftsman house plans here.

Ranch with Side Garage Ranch with Side Garage Ranch with Side Garage - Front Exterior

Ranch with Side Garage Ranch with Side Garage - Main Floor Plan

This charming ranch offers classic curb appeal with a modern interior. Inside, owners will be able to enjoy the open layout with seamless indoor-outdoor flow. Sliding glass doors in the living and dining rooms let in lots of natural light and provide a lovely view of the back porch. Owners can prepare meals in the spacious kitchen and enjoy the island. A walk-in pantry connects the kitchen to the side entrance, making it easy to unload groceries. The side entrance opens to the two-car garage.

See more ranch house plans here.

Hillside Plan with Garage Hillside Plan with Garage Hillside Plan with Garage - Front Exterior

Hillside Plan with Garage Hillside Plan with Garage - Main Floor Plan

Hillside Plan with Garage Hillside Plan with Garage - Upper Floor Plan

This hillside house plan features a two-car garage that opens to the side, making it a great plan for a corner lot. There’s a convenient mudroom and laundry room leading from the garage along with a convenient powder room. The layout of this hillside plan is great for entertaining, with the kitchen seamlessly flowing into the dining and living areas. In the kitchen, owners will be able to prepare meals on the spacious island and enjoy the additional storage provided by the walk-in pantry. The primary suite is located on the main floor and upstairs there is a spacious loft along with two guest bedrooms.

See more hillside house plans here.

Corner Farmhouse Plan Corner Farmhouse Plan Corner Farmhouse Plan - Front Exterior

Corner Farmhouse Plan Corner Farmhouse Plan - Main Floor Plan

The rustic design of this traditional farmhouse plan gives the exterior major curb appeal. Exposed beams at the main entrance welcome you into the formal foyer. Another way to enter this farmhouse is through the two-car garage that opens from the side of the home. The open layout of the living space is great for hosting as the kitchen opens to the dining and living room. Another great feature: the sliding glass doors that open to the back porch.

The primary suite sits on the main floor along with two guest bedrooms. Upstairs there is an office nook along with a private guest bedroom.

See more farmhouse plans here.

Angled Garage Farmhouse Angled Garage Farmhouse Angled Garage Farmhouse - Front Exterior

Angled Garage Farmhouse Angled Garage Farmhouse - Main Floor Plan

This modern farmhouse plan boasts stunning curb appeal along with a two-car garage with charming touches. The exterior of the two-car garage features farmhouse style. Inside the garage there is a workshop area before entering the main home. In the main living room, owners can enjoy the great open floor plan. In the kitchen there is a prep island that looks out to the cozy breakfast nook and family room, making entertaining a breeze. A door opens to the backyard lanai, where there is an outdoor fireplace. Another lovely outdoor living feature is the stoop that’s connected to the primary suite.

Farmhouse with Angled Garage Farmhouse with Angled Garage Farmhouse with Angled Garage - Front Exterior

Farmhouse with Angled Garage Farmhouse with Angled Garage - Main Floor Plan

Farmhouse with Angled Garage Farmhouse with Angled Garage - Upper Floor Plan

Neighbors will be envious of this stunning modern farmhouse plan. The exterior features a three-car angled garage with impressive doors and lots of windows. A cozy front porch welcomes guests into the open living space. The gourmet kitchen has a large prep island with available seating for guests. The prep island looks out to the dining room and great room, creating seamless flow. Large windows look out to the backyard and a sliding glass door opens to the rear porch where owners can unwind and relax.

The luxurious primary suite sits on the main floor along with a private office. Upstairs there are three guest bedrooms. There’s also a spacious loft with a quaint window seat that can be transformed into another bedroom.

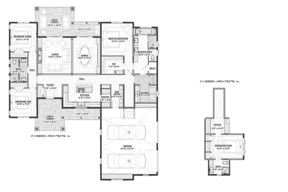
Craftsman Plan with Garage Craftsman Plan with Garage Craftsman Plan with Garage - Front Exterior

Craftsman Plan with Garage Craftsman Plan with Garage - Main Floor Plan

The covered patio of this Craftsman house plan levels up your outdoor entertainment. Stunning windows in the living and dining room look out to the rear patio and let in lots of natural light. Abundant windows can also be found in the primary suite. The impressive great room flows to the kitchen where owners can prepare meals. Around the corner from the kitchen is the walk-in pantry.

Cottage Plan with Three-Car Garage Cottage Plan with Three-Car Garage Cottage Plan with Three-Car Garage - Front Exterior

Cottage Plan with Three-Car Garage Cottage Plan with Three-Car Garage - Main Floor Plan

This attractive cozy cottage features an angled three-car garage and attached storage space. This cottage house plan would be a great option for those wanting to build on a corner lot. Inside this cottage is an impressive open layout with a large kitchen, a cozy breakfast nook, and a dining room for special meals. On those warm summer nights, host dinners outside on the lanai or simply unwind with a glass of wine. This house plan features many additional storage spaces including a walk-in pantry next to the kitchen and walk-in closets for the bedrooms.

Browse the Full Collection of House Plans with Angled Garages Here.

Coupon Codes