Charming Rustic House Plans
By Gabby Torrenti
Rustic house plans include nature-inspired details, warm color palettes, and interior beams that contribute to a lodge-like feel throughout the home. On the outside, the plans include decks with lots of living space, wooden siding, and other features that put these house designs right at home in a wooded environment. Inside, open floor plans, natural textures, and vaulted ceilings make them feel both luxe and cozy. Browse these rustic home plans to find the one that bests fits your building project.
Want to see more rustic house plans? Check out the collection here.
Luxe Rustic Home
Plan 51-1163
On the exterior, this home greets guests with stone details and classic farmhouse features that are instantly welcoming. Inside, a small foyer fronts the home, with the main living space located directly to the left. The great room, dining room, and kitchen flow together seamlessly, with lots of space to entertain. Right off the kitchen, a combined pantry and prep kitchen allow you to prepare snacks and meals with ease. A terrace off the great room is ideal for outdoor entertaining when the weather is nice.
Back inside, a pocket office near the powder room is the perfect location to work from home. Ready to relax? Head to the master suite, where you'll find a sizable bedroom with a coffee bar for preparing your favorite morning beverage, a full bathroom with dual vanities, and a walk-in closet for keeping all of your belongings organized. The laundry room is just a few steps away, helping to keep your home tidy. Across the home, a guest suite gives visitors their own private space, complete with a walk-in closet, full bathroom, and terrace access.
Upstairs, two more bedrooms and a hall bathroom with double sinks provide plenty of space for guests or children. This floor is made complete by a wide-open loft space, giving you lots of room to relax with friends and family.
Rustic Modern Farmhouse
Plan 1074-15
From the street, this home impresses with a truss over the front door, welcoming guests to step into the cozy interior. A vaulted ceiling on the front porch makes the home feel grand, and this luxe feature is repeated in the great room. This space features a fireplace for making the space feel warm and welcoming, with the kitchen and dining space located just a few steps away. A butler’s pantry and mudroom are located directly behind this space, adding to the home’s overall convenience.
On the right side of the home, the primary suite gives the owners their own space to relax, including a spacious bedroom with a vaulted ceiling, a bathroom with dual sinks and a private toilet closet, and a walk-in closet for storing all of your belongings. Step from here directly into the laundry room for ultimate convenience! On the opposite side of the home, two additional bedrooms give guests or children their own spaces, with a bathroom with dual sinks separating the two rooms. This bathroom is accessible from both bedrooms for added convenience as well. The main level of the home is made complete with a rear porch and patio, making outdoor entertaining an option during the warmer months.
Upstairs, a large bonus space with a bathroom can be finished to serve as an additional bedroom or simply room to relax.
Looking for inspiration to decorate your rustic home? Check out these ideas from House Beautiful.
Rustic Cottage
Plan 48-1029
This beautiful cottage epitomizes rustic style with stone, a trussed gable, and an arched entryway. Beyond the front door, the foyer leads into a vaulted great room, which is bordered by the dining space and the island kitchen. From the dining area, step onto the porch, which gives the perfect opportunity to enjoy a beverage outdoors.
Back inside, the primary bedroom is located at the right of the home with a bathroom with dual sinks and a walk-in closet in the suite. A second bedroom is located toward the front of the home and includes its own bathroom too, making this an ideal space for children or guests to enjoy. The home is made complete with a study alcove, which is perfect for working from home or giving kids a private place to complete homework.
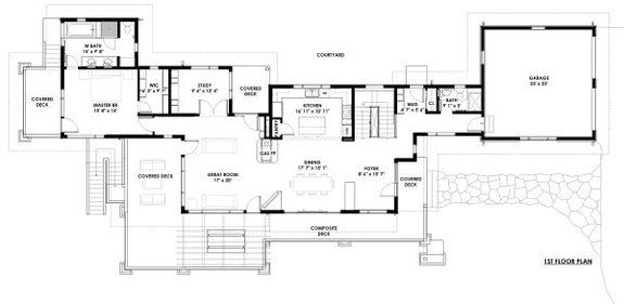
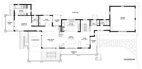
Prairie-Style Rustic Home
Plan 1042-17
Combining luxury and rustic charm, this 3,742-square-foot rustic house plan is simply stunning and designed to maximize property views from all sides of the home. With lots of outdoor living spaces and a walkout basement, this house plan is optimized for taking in views with family and friends. Stepping in off the covered deck, the home opens to the combined kitchen and dining space, which creates a hub for entertaining from the moment you step indoors. To the right, a mudroom and powder room are situated in close proximity to the garage, helping keep messes contained. Straight ahead, the great room provides lots of space to relax and unwind, with covered-deck access just steps away. The main living area is made complete with a study space, which gives those working from home their own space to conduct business. At the back of the main level, the primary suite includes a sizable bedroom, bathroom with dual sinks, walk-in closet, and access to a private covered deck for enjoying a cup of coffee or evening cocktail with a view.
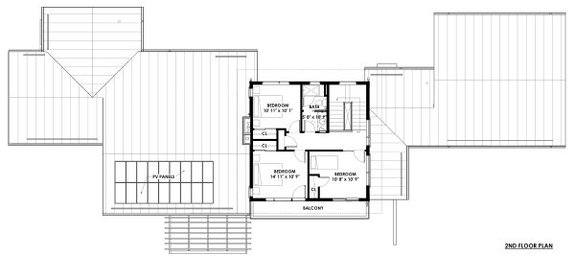
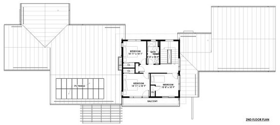
Upstairs, three more bedrooms provide children with their own space or allow you to host lots of friends and family members in your home. Each room has its own closet and the three bedrooms share a hall bathroom. The second floor also features a balcony, so guests on any floor can take in the views.
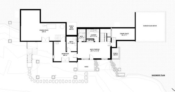
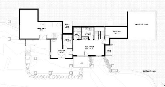
Rounding out this rustic house plan, the basement level is an oasis for entertaining. A large multipurpose space (with a wet bar!) can easily become a movie room, billiards space, or perhaps your own private gym. A bathroom and laundry room add to the home’s convenience, while a workshop space is perfect for fixing things in the comfort of your own home. Step onto the basement-level patio for easy outdoor entertaining, too.
Modern Rustic House Plan
Plan 23-2719
Rustic house plans don’t have to resemble cabins or farmhouses to embody the nature-inspired elements of rustic living. This modern plan feels sleek and fresh while prioritizing outdoor enjoyment with a spacious roof balcony. On the main floor, this home opens with a foyer, providing direct access to the living room. Continue in to arrive at the combined kitchen and dining space with simple access to the main-floor terrace. A versatile space can serve as either a bedroom or office, depending upon your specific needs. A full bathroom close by creates added convenience, while a linen closet helps keep you organized.
Upstairs, the primary suite includes a bedroom with a sloped ceiling, a private bathroom with dual sinks, and a walk-in closet. Step through a set of sliding doors and enjoy a large balcony space, with plenty of room for entertaining.










