BLOG
Our Favorites + Building Knowledge and Materials
Home>Articles

Everybody 'Shouse' for House Plans with Shops!

Everybody 'Shouse' for House Plans with Shops!
Explore shouse (shop-house) plans here!

Everybody 'Shouse' for House Plans with Shops!

By Courtney Pittman

Garage goals! House plans with workshops (often referred to as shouse plans) offer maximum versatility by incorporating generous workshop areas. These designs typically feature the rustic charm of barn-inspired exteriors and open-concept interiors, blending functionality with timeless style. Here are eight shouse plans that do the job nicely.

Interested in more? Explore our collection of shouse plans (house plans with shops) here.

Six-Car Garage with Shop Six-Car Garage with Shop Six-Car Garage with Shop - Front Exterior

Six-Car Garage with Shop Six-Car Garage with Shop - Main Level

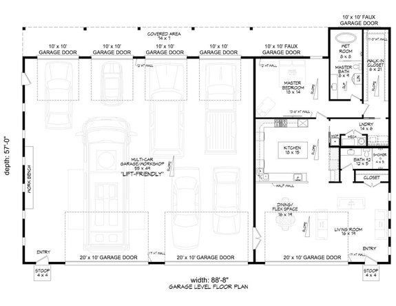
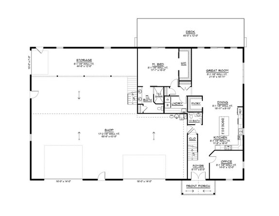
Clean lines and a simple footprint make this shouse plan a budget-friendly option. The lift-friendly garage stores up to six vehicles and features a workbench and a shop area. Inside, the U-shaped kitchen gives you plenty of counter space with a central island.

Nice weather? A garage door in the living room and the dining area brings the outdoors in. The primary suite enjoys a big walk-in closet and a luxurious wet room. Oh, and direct access to the laundry room.

Barndominium Plan with Two Lofts Barndominium Plan with Two Lofts Barndominium Plan with Two Lofts - Front Exterior

Barndominium Plan with Two Lofts Barndominium Plan with Two Lofts - Main Level

Barndominium Plan with Two Lofts Barndominium Plan with Two Lofts - Upper Level

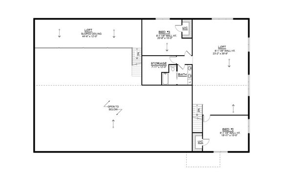
This eye-catching barndominium plan offers functionality with a spacious three-car garage that includes a dedicated shop area, ample storage space, and a loft. The great room opens to the island kitchen and the dining area, creating effortless flow. Groceries stay organized in the walk-in pantry.

Great for aging in place, the main-level primary suite boasts a generous closet, two sinks, and a large shower. The laundry room waits conveniently close by. On the second floor, both secondary bedrooms feature walk-in closets. A storage room, a flexible loft, and a full bath round out this level. Enjoy outdoor living on the rear deck.

Browse barndominium plans here.

Super-Spacious Pantry Super-Spacious Pantry Super-Spacious Pantry - Front Exterior

Super-Spacious Pantry Super-Spacious Pantry - Main Level

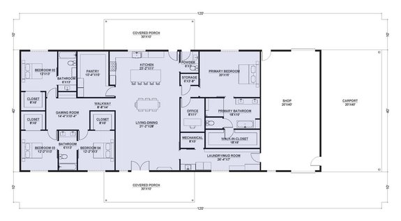
Looking for a shouse plan with barndominium style? Here ya go! This uncomplicated design features a four-corner footprint and a layout with up-to-date amenities. For example, a home office gives you a quiet place to get work done.

The hardworking laundry/mudroom keeps clutter at bay. Seating at the kitchen island creates a relaxed vibe. An extra-big pantry waits close by. All four bedrooms boast walk-in closets, including the primary suite. Don’t miss the expansive shop area, the carport, and the front and rear porches.

Barndo Plan with Workshop Barndo Plan with Workshop Barndo Plan with Workshop - Front Exterior

Barndo Plan with Workshop Barndo Plan with Workshop - Main Level

Barndo Plan with Workshop Barndo Plan with Workshop - Upper Level

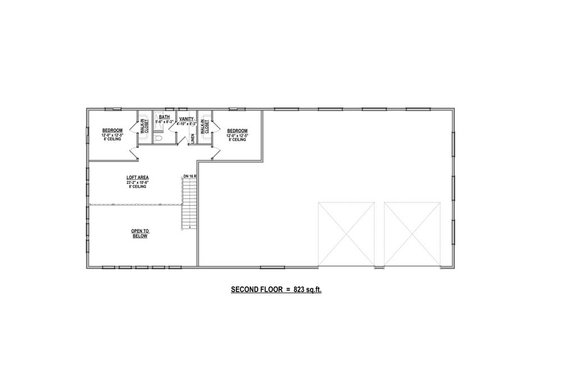
Just under 1,500 square feet, this modest shouse plan shines with a wraparound porch and a metal roof. The heart of the home is the open living room and the kitchen upstairs. A vaulted ceiling allows the space to feel larger than it is.

Two bedrooms and two hall baths reside on the left side of the plan. A three-car garage and a workshop sit on the ground level.

Looking for a garage with an apartment? We've got lots of them here.

Rustic Shouse Plan Rustic Shouse Plan Rustic Shouse Plan - Front Exterior

Rustic Shouse Plan Rustic Shouse Plan - Main Level

Love the barndominium style? Check out this rustic design. Clocking in at 1,915 square feet, this shouse plan lives large with a thoughtful layout.

In the kitchen, an island with a snack bar serves the living room and gives you a practical place to enjoy meals. The big fireplace is a welcome detail. Sliding barn doors add character and hide the super-spacious workshop. The flexible office could also become a game room.

Small House Plan with Shop Small House Plan with Shop Small House Plan with Shop - Front Exterior

Small House Plan with Shop Small House Plan with Shop - Main Level

Small House Plan with Shop Small House Plan with Shop - Upper Level

This small shouse plan is big on farmhouse style! We love the board-and-batten siding and the gable roof. Inside the main part of the house upstairs, the open floor plan makes it easy to move between the kitchen and the living room. Serve up tasty snacks at the kitchen island.

You’ll find plenty of storage in the three-car garage. A shop area gives you easy access to tools and materials. Nearby, a covered patio maximizes outdoor living.

Barndo Plan with Wraparound Porch Barndo Plan with Wraparound Porch Barndo Plan with Wraparound Porch - Front Exterior

Barndo Plan with Wraparound Porch Barndo Plan with Wraparound Porch - Main Level

Barndo Plan with Wraparound Porch Barndo Plan with Wraparound Porch - Upper Level

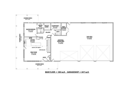
Thoughtful design choices make this shouse plan stand out. For example, a wraparound porch gives you the perfect spot to unwind. In the kitchen, a large island looks out to the great room – perfect for entertaining.

Towards the back of the plan, the main-level primary suite displays a walk-in closet and a sizable shower. Store up to three vehicles in the garage, which also features a shop area. Other special amenities include the handy laundry/mudroom, walk-in closets in both secondary bedrooms, and a loft.

Timeless Barn-Inspired Farmhouse Plan Timeless Barn-Inspired Farmhouse Plan Timeless Barn-Inspired Farmhouse Plan - Front Exterior

Timeless Barn-Inspired Farmhouse Plan Timeless Barn-Inspired Farmhouse Plan - Main Level

Timeless Barn-Inspired Farmhouse Plan Timeless Barn-Inspired Farmhouse Plan - Upper Level

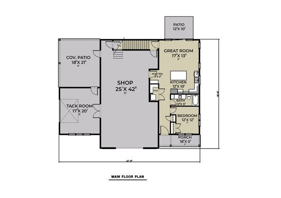
If a rustic retreat is what you’re looking for, look no further! This timeless shouse plan has farmhouse style written all over it. Possibilities are endless with the generous shop on the first level. Note the cool tack room.

An open floor plan between the main gathering areas delivers a relaxed attitude. Seating at the kitchen island is a modern touch. Two patios and a porch are comfortable additions to the exterior. Don’t miss the handy loft upstairs.

Discover more shouse plans (house plans with shops).

Everybody 'Shouse' for House Plans with Shops!

Coupon Codes