By Devin Uriarte
Incorporating a workshop into your house plan can be a game changer for both functionality and creativity. Whether you're a hobbyist, a craftsman, or someone who simply needs extra space for projects, a dedicated workshop area enhances your lifestyle while adding value to your property. Here are some of our best house plans with workshops, offering ideas and inspiration for blending work and home in a seamless, efficient design.
Browse our collection of barndominium floor plans with workshops here.
Two Workshops
Two Workshops - Front Exterior
What’s better than one shop? Two shops. On the first floor there are two attached shops that can easily fit four cars. In the actual home, there is an open living room which flows from the L-shaped kitchen. The primary suite sits on the first level while upstairs there are two guest bedrooms that share a bathroom in the middle.
Barndominium Plan with Shop and Tack Room
Barndominium Plan with Shop and Tack Room - Front Exterior
Barndominium Plan with Shop and Tack Room - Main Level
Barndominium Plan with Shop and Tack Room - Upper Level
This rustic house plan has a large shop that you can use for parking or puttering. What makes this plan unique is the attached tack room. Past the workshop and into the home is the entryway that has two coat closets. There is great indoor-outdoor flow in the main living space from the doors that open to the wraparound porch. Barn doors on the outside are a nice farmhouse-style detail.
Drive-Through Workshop
Drive-Through Workshop - Front Exterior
Drive-Through Workshop - Main Level
Imagine being able to drive right through the garage. With this plan, that dream becomes a reality with a spacious workshop for do-it-yourselfers. There’s even a convenient powder room in the workshop. Inside, the kitchen features a large prep island and a walk-in pantry for additional storage. There is one guest bedroom and a primary suite with its own private bathroom and walk-in closet.
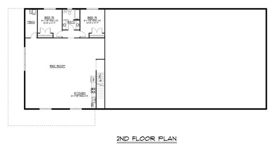
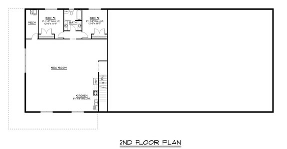
Workshop Below
Workshop Below - Front Exterior
On the main floor of this farmhouse style plan is a large three-car garage with a workshop. Also on the first level is a covered patio for outdoor hosting. For owners that are looking for more space for in-laws or guests, the apartment upstairs is perfect. There is a comfortable living room that flows into the kitchen with a prep island. The bedroom is spacious and close to the hall bathroom.
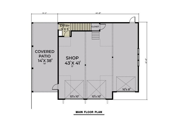
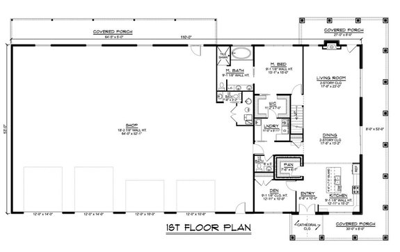
Large Shop
Large Shop - Front Exterior
Got an RV or lots of equipment to store? You'll appreciate the high ceiling in the massive garage of this barndominium-style plan. Attached to the garage is the open living plan with three bedrooms, a cozy den, and indoor-outdoor flow. Sliding glass doors in the dining room open out to the wraparound covered porch, making for a refreshing experience on a nice day.
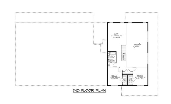
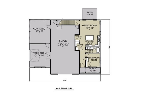
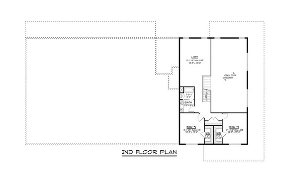
Shop with Attached Tack Room
Shop with Attached Tack Room - Front Exterior
Shop with Attached Tack Room - Main Level
Shop with Attached Tack Room - Loft Level
This plan boasts major curb appeal with its rustic charm and design. What’s unique about this plan is the attached tack room. Barn doors open to the four-car garage and workshop. There’s a thoughtful mudroom leading from the garage inside, making it easier to keep the home clean. The great room flows into the kitchen, where there’s a sizeable prep island, which is ideal for hosting. This plan also features a bedroom on this level and a loft space upstairs.





