BLOG
Our Favorites + Building Knowledge and Materials
Home>Articles

Top 20 Barndominium Floor Plans

Top 20 Barndominium Floor Plans
Check out our favorite barndominium plans.

By Devin Uriarte

The barndominium style has been growing in popularity and we can fully see why. Barndominiums feature rustic design and tons of storage. Our full collection ranges in sizes and styles, but we picked out 20 of our favorite barndominium floor plans.

See more barndominium floor plans here.

Bright Barndominium Floor Plan Bright Barndominium Floor Plan Bright Barndominium Floor Plan - Side Exterior

Bright Barndominium Floor Plan Bright Barndominium Floor Plan - Main Floor

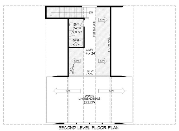
Bright Barndominium Floor Plan Bright Barndominium Floor Plan - Upper Floor Plan

The soaring window of this barndominium plan brightens up the home and gives owners stunning views. An open layout with sliding glass doors in the living space creates effortless indoor-outdoor flow.

Barndominium Floor Plan with Open Layout Barndominium Floor Plan with Open Layout Barndominium Floor Plan with Open Layout - Front Exterior

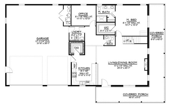
Barndominium Floor Plan with Open Layout Barndominium Floor Plan with Open Layout - Main Floor

Barndominium Floor Plan with Open Layout Barndominium Floor Plan with Open Layout - Upper Floor Plan

Owners of this barndominium will love hosting with wraparound countertops in the kitchen and a sizeable island. There’s a seamless flow from the kitchen into the great room with easy access to the front porch.

Barndominium Plan with Covered Porch Barndominium Plan with Covered Porch Barndominium Plan with Covered Porch - Front Exterior

Barndominium Plan with Covered Porch Barndominium Plan with Covered Porch - Main Floor

Barndominium Plan with Covered Porch Barndominium Plan with Covered Porch - Upper Floor Plan

A sliding door in the open dining room opens to the impressive, covered porch. The cathedral ceiling on the porch adds a unique touch to the outdoor space. This barndominium plan is great for entertaining with the easy indoor-outdoor flow from the kitchen to the living room, and out to the porch.

Barndominium Floor Plan with Loft Barndominium Floor Plan with Loft Barndominium Floor Plan with Loft - Rear Exterior

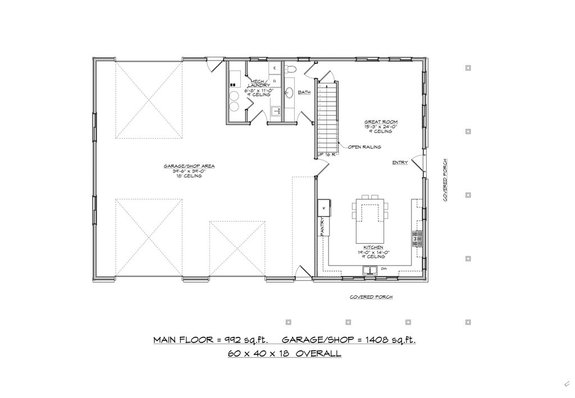
Barndominium Floor Plan with Loft Barndominium Floor Plan with Loft - Main Floor

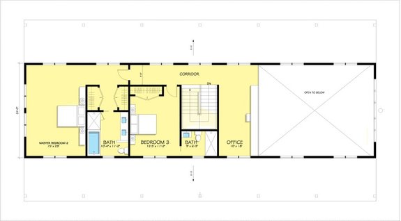
Barndominium Floor Plan with Loft Barndominium Floor Plan with Loft - Upper Floor Plan

The exterior of this barndominium plan screams traditional barn style. The pitched roof, large windows, and spacious lanai all added to the overall charm. Inside, an impressive kitchen with a large prep island looks out onto the living room. Natural light mixed with the open layout creates a stunning and modern interior.

1 Story Barndominium Floor Plan 1 Story Barndominium Floor Plan 1 Story Barndominium Floor Plan - Front Exterior

1 Story Barndominium Floor Plan 1 Story Barndominium Floor Plan - Main Floor

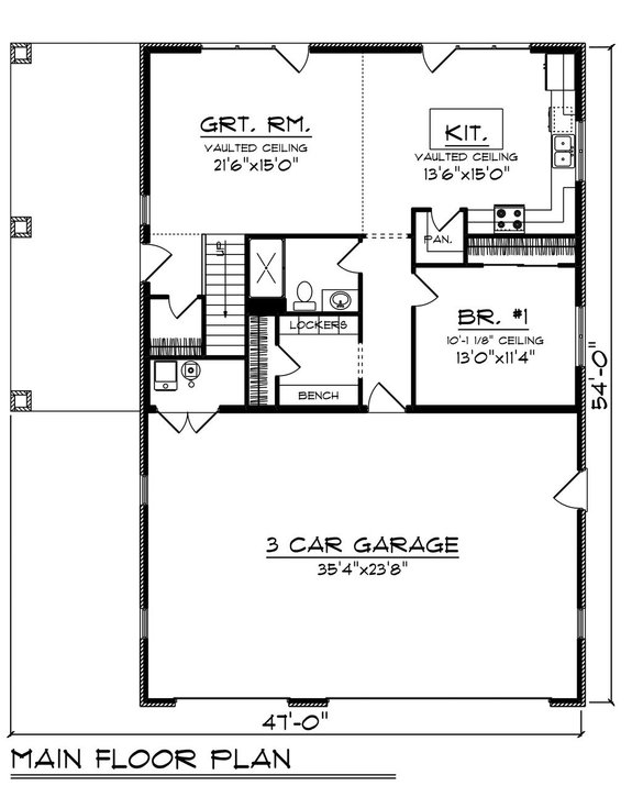
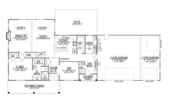
For builders that are looking for additional storage space, this barndominium plan with a huge garage is ideal. If an owner has any large vehicles, the elevated ceilings in the garage are a great feature.

Simple Barndominium Floor Plan Simple Barndominium Floor Plan Simple Barndominium Floor Plan - Front Exterior

Simple Barndominium Floor Plan Simple Barndominium Floor Plan - Main Floor

Simple Barndominium Floor Plan Simple Barndominium Floor Plan - Upper Floor Plan

This floor plan has everything that we love about barndominiums. Some of the highlights of this plan are a large garage with space for an RV, a large wraparound porch, and a cozy loft.

Charming Barndominium Charming Barndominium Charming Barndominium - Front Exterior

Charming Barndominium Charming Barndominium - Main Floor

The charming, covered porch adds major curb appeal to this barndominium plan. Double doors welcome guests into the open living room with vaulted ceilings and a cozy fireplace. Another feature that adds character to the plan is the breakfast nook that leads out to the back porch.

Barndominium Plan with Curb Appeal Barndominium Plan with Curb Appeal Barndominium Plan with Curb Appeal - Front Exterior

Barndominium Plan with Curb Appeal Barndominium Plan with Curb Appeal - Main Floor

Here’s another barndominium plan with striking curb appeal. The exterior boasts barn-like style with a gabled roof and board-and-batten siding. Double doors elevate the curb appeal and welcome guests into the open living space.

Functional Barndominium Plan Functional Barndominium Plan Functional Barndominium Plan - Front Exterior

Functional Barndominium Plan Functional Barndominium Plan - Main Floor

This barndominium plan could be used as a guest house since there’s a cozy apartment attached to the two-car garage. The two-car garage has space for a full workshop or additional storage. Guests will feel right at home having their own spacious living room. Explore photos!

Barndominium Floor Plan with Rear Garage Barndominium Floor Plan with Rear Garage Barndominium Floor Plan with Rear Garage - Front Exterior

Barndominium Floor Plan with Rear Garage Barndominium Floor Plan with Rear Garage - Main Floor

Nothing screams classic barndominium style like a charming front porch. A covered front porch adds so much curb appeal to the plan and welcomes guests into the home. One thoughtful feature of this barndominium that enhances the curb appeal is the rear three-car garage.

Six-Car Barndominium Floor Plan Six-Car Barndominium Floor Plan Six-Car Barndominium Floor Plan - Front Exterior

Six-Car Barndominium Floor Plan Six-Car Barndominium Floor Plan - Main Floor

Six-Car Barndominium Floor Plan Six-Car Barndominium Floor Plan - Upper Floor Plan

This barndominium plan does not fall short when it comes to storage. DIYers will love the six-car garage that also includes additional room for a workshop. Vaulted ceilings in the garage allow for larger equipment and vehicles to be stored here.

Barndominium with Vaulted Ceilings Barndominium with Vaulted Ceilings Barndominium with Vaulted Ceilings - Front Exterior

Barndominium with Vaulted Ceilings Barndominium with Vaulted Ceilings - Main Floor

Barndominium with Vaulted Ceilings Barndominium with Vaulted Ceilings - Upper Floor Plan

Vaulted ceilings and large windows are the perfect pairing. The vaulted ceiling in the great room helps the space feel more spacious and the large windows provide excellent natural light. An eye-catching feature of the bright great room is the fireplace, which adds a cozy vibe to the barndominium.

Floor Plan with Striking Barndominium Curb Appeal Floor Plan with Striking Barndominium Curb Appeal Floor Plan with Striking Barndominium Curb Appeal - Front Exterior

Floor Plan with Striking Barndominium Curb Appeal Floor Plan with Striking Barndominium Curb Appeal - Main Floor

Floor Plan with Striking Barndominium Curb Appeal Floor Plan with Striking Barndominium Curb Appeal - Upper Floor Plan

This barndominium plan is what most people think of when they hear the word “barn”. The three-car garage boasts barn-like style and elevates the overall curb appeal. Attached is the main three-bedroom home plan with a spacious living room that’s great for hosting guests.

Barndominium Plan with Farmhouse Flair Barndominium Plan with Farmhouse Flair Barndominium Plan with Farmhouse Flair - Front Exterior

Barndominium Plan with Farmhouse Flair Barndominium Plan with Farmhouse Flair - Main Floor

Barndominium Plan with Farmhouse Flair Barndominium Plan with Farmhouse Flair - Upper Floor Plan

The open flow of the main living space makes this barndominium plan an ideal place to entertain. The kitchen features an impressive island that looks out to the dining and living room, creating seamless flow for conversation.

Barndominium Floor Plan with Ranch Style Barndominium Floor Plan with Ranch Style Barndominium Floor Plan with Ranch Style - Front Exterior

Barndominium Floor Plan with Ranch Style Barndominium Floor Plan with Ranch Style - Main Floor

Barndominium Floor Plan with Ranch Style Barndominium Floor Plan with Ranch Style - Upper Floor Plan

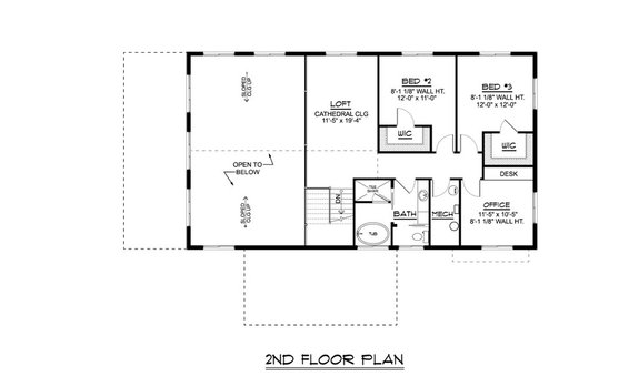
This barndominium has a unique floor plan with an attached vaulted studio and exercise room. There are sliding glass doors in the studio that provide great indoor-outdoor flow. In the main house, large windows can be found along with vaulted ceilings and a cozy loft.

Barndominium Garage with Studio Barndominium Garage with Studio Barndominium Garage with Studio - Rear Exterior

Barndominium Garage with Studio Barndominium Garage with Studio - Main Floor

Barndominium Garage with Studio Barndominium Garage with Studio - Upper Floor Plan

While not a traditional barndominium floor plan, this garage plan with living space above is great for owners looking for additional space. On the ground floor there is a spacious two-car garage and upstairs there’s an open studio with a kitchenette and bathroom.

Unique Barndominium Floor Plan Unique Barndominium Floor Plan Unique Barndominium Floor Plan - Front Exterior

Unique Barndominium Floor Plan Unique Barndominium Floor Plan - Main Floor

Unique Barndominium Floor Plan Unique Barndominium Floor Plan - Upper Floor Plan

The curb appeal of this barndominium is incredibly unique with a striking silo staircase. This detail accentuates the overall rustic design of the home. French doors near the spacious kitchen open to the patio and lanai, creating seamless indoor-outdoor flow.

L-Shaped Barndominium Floor Plan L-Shaped Barndominium Floor Plan L-Shaped Barndominium Floor Plan - Front Exterior

L-Shaped Barndominium Floor Plan L-Shaped Barndominium Floor Plan - Main Floor

Having an L-shaped house plan is ideal for a corner lot. The shape of the home creates a luxurious front courtyard, and the porch only adds to the curb appeal. Because of the long layout, there are glass accordion doors in the living and dining room that create indoor-outdoor flow.

Simple Barndominium Simple Barndominium Simple Barndominium - Rear Exterior

Simple Barndominium Simple Barndominium - Main Floor

Simple Barndominium Simple Barndominium - Upper Floor Plan

The simple floor plan of this barndominium makes it a more cost-efficient build. This plan would be a great add-on for more storage and could accommodate guests and in-laws comfortably. The openness of the living room is elevated by the upstairs loft, creating a more spacious ambiance.

New Barndominium Floor Plan New Barndominium Floor Plan New Barndominium Floor Plan - Front Exterior

New Barndominium Floor Plan New Barndominium Floor Plan - Main Floor

New Barndominium Floor Plan New Barndominium Floor Plan - Upper Floor Plan

There’s nothing we love more than a new barndominium floor plan. This attractive plan offers stunning curb appeal with thoughtful design features like a gambrel roof and charming chimney. Owners will be impressed with the storage space provided by the attached, huge garage. The layout of this barndominium is unique where the living room and primary suite surround the charming courtyard.

Coupon Codes