BLOG
Our Favorites + Building Knowledge and Materials
Home>Articles

2,000 Sq. Ft. Barndominium Floor Plans

2,000 Sq. Ft. Barndominium Floor Plans
Check out these 2,000 sq. ft. barndominium floor plans.

By Devin Uriarte

Barndominium house plans usually feature open layouts, attached garages, and lots of additional storage. These 2,000 sq. ft. barndominium floor plans (or around that size) offer all these amenities along with charming curb appeal.

Browse the Full Collection of Barndominium House Plans.

Modern Barndominium Modern Barndominium Modern Barndominium - Front Exterior

Modern Barndominium Modern Barndominium - Main Floor Plan

This plan has 2,084 sq. ft. of living space and features an impressive three-car garage and workshop area. On the right side of the plan is the actual home with a spacious and open great room. There’s a large kitchen island where owners can prepare meals and continue conversations with guests. In the primary suite, owners can also enjoy the private bathroom and walk-in closet.

Country Barndominium Plan Country Barndominium Plan Country Barndominium Plan - Front Exterior

Country Barndominium Plan Country Barndominium Plan - Main Floor Plan

Country Barndominium Plan Country Barndominium Plan - Upstairs Floor Plan

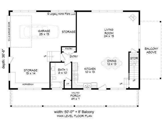
What’s better than one living room? Two living rooms. This barndominium style plan is 2,019 sq. ft. and features two spacious living rooms. There’s a garage on the main level with a full storage section and built-in workbench. You can enter the home through the garage and are immediately in the open living space. The L-shaped kitchen allows owners to host guests while meal prepping and for additional storage, there’s a convenient pantry. Upstairs there’s another living room with access to the charming balcony. Also on the second floor is the primary suite with a walk-in closet and cozy sitting area.

Charming Barndominium Charming Barndominium Charming Barndominium - Front Exterior

Charming Barndominium Charming Barndominium - Main Floor Plan

Charming Barndominium Charming Barndominium - Upstairs Floor Plan

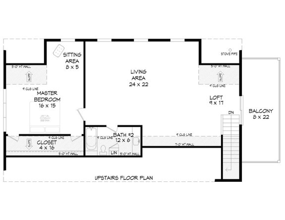
The curb appeal of this 2,100 sq. ft. barndominium is incredibly charming due to the covered front porch. Double doors open to the vaulted family room, which flows into the impressive island kitchen. The primary suite sits on the main floor with a private full bathroom and walk-in closet. Upstairs there are two guest bedrooms and a bonus room that could be used as an office space. One of the bedrooms has a cozy sitting area and the other has an impressive walk-in closet. A unique feature of this plan is the covered balcony that both bedrooms access.

Ranch Style Barndominium Ranch Style Barndominium Ranch Style Barndominium - Front Exterior

Ranch Style Barndominium Ranch Style Barndominium - Main Floor Plan

This classic barndominium plan has an impressive layout with an open living space. Stepping into the home through the front porch, you are immediately in the great room that flows into the dining area. Step out to the massive rear covered porch, which creates a space for amazing outdoor living. This 2,030 sq. ft. barndominium has an attached two-car garage that opens to the side. There is a convenient carport just outside of the garage.

2,000 Sq. Ft. Barndominium 2,000 Sq. Ft. Barndominium 2,000 Sq. Ft. Barndominium - Front Exterior

2,000 Sq. Ft. Barndominium 2,000 Sq. Ft. Barndominium - Main Floor Plan

Guests will feel immediately welcomed into this barndominium with its charming curb appeal. The exposed beams on the covered porch add to the overall farmhouse vibe and invite guests into the space. Double doors open to the vaulted great room and to the right is the kitchen with an impressive island and walk-in pantry. When hosting, owners can create a cozy atmosphere by lighting the wood burning fireplace in the living room. At the end of the long hallway is the exit to the rear covered porch. There are three guest bedrooms, two of them sharing a Jack and Jill bathroom. Owners can enjoy their privacy along with a luxurious full bathroom and walk-in closet.

Barndominium Plan with Locker Room Barndominium Plan with Locker Room Barndominium Plan with Locker Room - Front Exterior

Barndominium Plan with Locker Room Barndominium Plan with Locker Room - Main Floor Plan

This barndominium has a two-car garage where the entrance opens to the side. There’s an impressive locker room with a bench and hooks along with lockers. To keep clutter at bay, there’s a walk-in storage closet in the locker room. Upon entering the home from the locker room, there’s an additional mudroom with another set of lockers. A pocket door from the mudroom leads you into the walk-in laundry room. The primary suite is attached to the laundry room for convenience and features a walk-in closet for more storage.

Farmhouse Plan Farmhouse Plan Farmhouse Plan - Front Exterior

Farmhouse Plan Farmhouse Plan - Main Floor Plan

Farmhouse Plan Farmhouse Plan - Upstairs Floor Plan

The gambrel roof of this barndominium is reminiscent of classic farmhouse design. A charming front porch welcomes guests into the open living room. A lovely feature of this house plan is the sunroom, which opens to the side deck. In the rear there is a two-car garage, opening to a convenient mudroom area with built-in lockers. The primary suite sits on the main floor along with the first guest bedroom. Upstairs there is a third bedroom where guests can enjoy a private bathroom with a tub and an attached walk-in closet.

Barndominium with Impressive Garage Barndominium with Impressive Garage Barndominium with Impressive Garage - Front Exterior

Barndominium with Impressive Garage Barndominium with Impressive Garage - Main Floor Plan

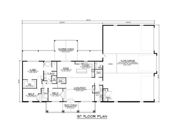
If you’re searching for a plan with lots of storage, then this 2,016 sq. ft. barndominium plan would be a great option. There is an attached five-car garage with access to the rear covered porch. In the actual home, owners can host guests in the spacious open living room. Around the corner from the L-shaped kitchen is a walk-in pantry and there is a prep island for additional storage. A sliding glass door in the dining room opens to the back covered porch where the entertainment may continue. Down the hallway there are two guest bedrooms along with the primary suite.

Browse the Full Collection of Barndominium House Plans.

Coupon Codes