Don't lose your saved plans!  Create an account to access your saves whenever you want. See our Terms & Conditions and Privacy Policy.
15% OFF FOR THE FIRST 25 CUSTOMERS

PLAN 17-2692

Photographs may show modified designs.

Save
  • Jump to:
  • All (4)
  • Floor plans (2)
Questions? Get Personalized Help

Key Specs


Plan Sq Ft

2585
sq ft

Plan Bedrooms

5
Beds

Plan Bathrooms

3
Baths

Plan Floors

2
Floors

Plan Garages

2
Garages

Select Plan Set Options

What's included?
$254.15
Additional Construction Sets$68.00/each

Additional hard copies of the plan (can be ordered at the time of purchase and within 90 days of the purchase date).

$140.25
$250.75
$33.15
$140.25
Subtotal
NOW $935.00
You save $165.00 (15% savings)
Sale ends soon!
Best Price Guaranteed*

Also order by phone: 1-800-528-8070
Questions about building your home?
Get Personalized Help
We do our best to get back to you within 24 - 48 business hours.
Need an answer faster? Call now...
Phone: 1-800-528-8070
Hours:
Ready for Your Call 7 Days a Week
Every Day 7 am - 8:30 pm Eastern

See our Terms & Conditions and Privacy Policy.

 
Wow!
Cost to Build Reports
Only $1.99 Right Now
Use Code CTB2026
Our Cost to Build Report gives you a personalized estimate for building your home, based on your location, plan, and materials.
Get Cost To Build Report
Limit one per order.

Residential Construction Guide

Learn Building Basics

This downloadable, 26-page guide is full of diagrams and details about plumbing, electrical, and more.

PLAN 17-2692

This plan can be customized

Tell us about your desired changes so we can prepare an estimate for the design service. Click the button to submit your request for pricing, or call 1-800-528-8070 for assistance.

Modify This Plan

Plan Description


This country design floor plan is 2585 sq ft and has 5 bedrooms and 3 bathrooms.

Full Specs & Features


Dimension

Depth : 55'

Height : 30'

Width : 57' 10"

Area

Bonus: 267 sq/ft

First Floor: 1987 sq/ft

Porch: 114 sq/ft

Second Floor: 598 sq/ft

Storage: 508 sq/ft

* Total Square Footage typically only includes conditioned space and does not include garages, porches, bonus rooms, or decks.

Roof

Primary Pitch : 10:12

Bedroom Features

Fireplace

Formal Dining Room

Main Floor Master Bedroom

Split Bedrooms

Walk In Closet

Kitchen Features

Breakfast Nook

Kitchenette Wet Bar

Additional Room Features

Great Room Living Room

Loft

Main Floor Laundry

Media Room

Storage Area

Unfinished Future Space

Outdoor Spaces

Balcony

Covered Front Porch

Covered Rear Porch

Grill Deck Sundeck

Rooms

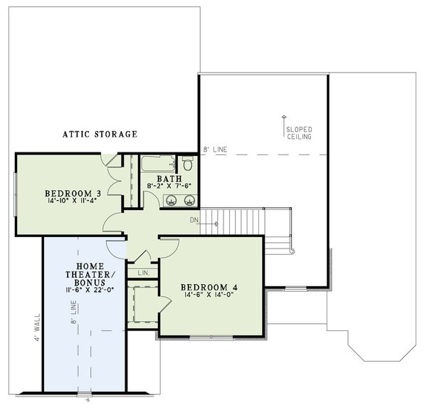
Bedroom 2:

156 sq/ft width 12' x depth 13'

Bedroom 3:

192 sq/ft width 12' x depth 16'

Bedroom 4:

173 sq/ft width 15' 4" x depth 11' 4"

Bedroom 5:

173 sq/ft width 15' 4" x depth 11' 4"

Breakfast Room:

133 sq/ft width 10' 10" x depth 12' 4"

Dining Room:

203 sq/ft width 14' 6" x depth 14'

Foyer:

98 sq/ft width 8' 10" x depth 11' 2"

Garage:

458 sq/ft width 20' 10" x depth 22'

Great Room:

338 sq/ft width 18' x depth 18' 10"

Grilling Porch:

70 sq/ft width 10' 10" x depth 6' 6"

Kitchen:

142 sq/ft width 10' 10" x depth 13' 2"

Master Bathroom:

190 sq/ft width 15' 4" x depth 12' 5"

Master Bedroom:

245 sq/ft width 15' 4" x depth 16'

Porch - Front:

40 sq/ft width 8' 2" x depth 5'

What's Included




Plans are typically drawn to ¼” scale and include:
  • Foundation Plan(s): Most plans are available with a slab or crawlspace foundation. Optional walkout style basement (three walls masonry with a wood framed rear wall with notes for the builder to locate the windows and doors) and optional full basement foundation available if the plan allows, at an additional cost. (Walk out is not shown on elevations unless finished walk out.)
  • Floor Plan(s): Each home plan includes the floor plan showing the dimensioned locations of walls, doors, and windows as well as a schematic electrical layout.
  • Exterior Elevations: All plans include the exterior elevations (front, rear, right and left) that show and describe the finished materials of the house.
  • Overhead Roof Plan(s): This is a “bird’s eye” view showing the roof slopes, ridges, valleys and any saddles.
  • Cross Section(s): **Cross section views available for an additional fee. ** (cut throughs where applicable)
  • Building Section(s): The building sections are vertical cuts through the house and the stairs showing floor, ceiling and roof height information. **Cross section views available for an additional fee. ** (cut throughs where applicable)
  • Construction Notes / Detail(s): Shows basic parts and assemblies recommended for the home so the builder can see how things come together.
  • Other Note(s): These are included for many interior and exterior conditions that require more specific information for their construction.
» See important information before purchasing.
Questions? Call 1-800-528-8070

Plan Set

PDF Set:
$935.00
PDF plan sets are best for fast electronic delivery and inexpensive local printing.
5 Copy Set:
$1020.00
5 printed plan sets mailed to you.
5 Copy and PDF Set:
$1232.50
5 printed plan sets mailed to you plus PDF plan sets are best for fast electronic delivery and inexpensive local printing.
CAD Set:
$1870.00
For use by design professionals to make substantial changes to your house plan and inexpensive local printing.

Foundation

Crawlspace:
$0.00
Ideal for semi-sloped or level lot, home can be built off of grade, typically 18” - 48”.
Slab:
$0.00
Ideal for level lot, single layer concrete poured directly on grade.
Basement:
$254.15
Ideal for level lot, lower level of home partially or fully underground.

Framing

Wood 2x4:
$0.00
Wood 2x4 Exterior Walls
Wood 2x6:
$254.15
Wood 2x6 Exterior Walls

Additional Options

Right-Reading Reverse:
$254.15
Choose this option to reverse your plans and to have the text and dimensions readable.
Additional Construction Sets:
$68.00
Additional hard copies of the plan (can be ordered at the time of purchase and within 90 days of the purchase date).
Audio Video Design:
$140.25
Receive an overlay sheet with suggested placement of audio and video components.
Comprehensive Material List:
$250.75
A complete list of building supplies needed to construct the infrastructure of your new house, plus an overlay of materials shown directly on your PDF (foundation to rooftop with interior and exterior materials), and a detailed, itemized door and window schedule showing all sizes and types. Please allow 5-7 Business Days for completion. Note, the Comprehensive list is only available with a PDF purchase. The Comprehensive list can be ordered no matter what additional plan options you have selected.
Construction Guide:
$33.15
Educate yourself about basic building ideas with these four detailed diagrams that discuss electrical, plumbing, mechanical, and structural topics.
Lighting Design:
$140.25
Receive an overlay sheet with suggested placement of lighting fixtures.

* Alternate Foundations may take time to prepare.

** Options with a fee may take time to prepare. Please call to confirm.

Unless you buy an “unlimited” plan set or a multi-use license you may only build one home from a set of plans. Please call to verify if you intend to build more than once. Plan licenses are non-transferable and cannot be resold.