BLOG
Our Favorites + Building Knowledge and Materials
Home>Articles

Contemporary Garage Plans

Contemporary Garage Plans
Explore our favorite contemporary garage plans.

By Devin Uriarte

Don’t settle for extra storage space that doesn’t offer curb appeal or functionality. With these contemporary garage plans, you will get the best of both worlds. We have included some standalone garage plans as well as apartment garage plans if you’re looking for additional living space.

Want to view the full collection? Check out all of our garage plans.

Two-Story Contemporary Garage Plan Two-Story Contemporary Garage Plan Two-Story Contemporary Garage Plan - Exterior

Two-Story Contemporary Garage Plan Two-Story Contemporary Garage Plan - Main Floor Plan

Two-Story Contemporary Garage Plan Two-Story Contemporary Garage Plan - Upper Floor Plan

Here’s a contemporary garage plan with a studio on the second floor. The garage is on the main floor and can comfortably fit a single car. On the second floor, there is a studio apartment. This studio apartment features a mini kitchen and a bathroom with a shower. Large windows allow sunlight to stream into the space for a cozier vibe. To open the space up, there are sliding glass doors that lead you out to the balcony.

Double Garage Plan Double Garage Plan Double Garage Plan - Exterior

Double Garage Plan Double Garage Plan - Main Floor Plan

This 960 sq. ft. garage plan makes a statement with its contemporary design. You can enter the garage through the side porch or through the main garage doors. The ceilings are sloped and can comfortably fit two cars. There is room for a workshop area or storage in the back of the garage.

Garage Plan with Private Studio Garage Plan with Private Studio Garage Plan with Private Studio - Exterior

Garage Plan with Private Studio Garage Plan with Private Studio - Main Floor Plan

Garage Plan with Private Studio Garage Plan with Private Studio - Upper Floor Plan

The studio above this garage plan can be used as an at-home office, a media room, or perhaps even your private yoga studio. Large windows bring in lots of natural light and add to the overall contemporary style. You can access the studio space up the stairs to the small deck. Two cars can fit on the garage level.

Open Vaulted Garage Plan Open Vaulted Garage Plan Open Vaulted Garage Plan - Exterior

Open Vaulted Garage Plan Open Vaulted Garage Plan - Main Floor Plan

Open Vaulted Garage Plan Open Vaulted Garage Plan - Upper Floor Plan

The open and vaulted ceiling of this garage plan allows large vehicles to fit inside. On the opposite side of the garage plan is the tandem garage that can fit two vehicles. There is also a storage area on the tandem side of the garage. Above the tandem garage is a vaulted loft space that can be used as extra storage space.

Contemporary Garage Plan with Sleeping Areas Contemporary Garage Plan with Sleeping Areas Contemporary Garage Plan with Sleeping Areas - Exterior

Contemporary Garage Plan with Sleeping Areas Contemporary Garage Plan with Sleeping Areas - Main Floor Plan

Contemporary Garage Plan with Sleeping Areas Contemporary Garage Plan with Sleeping Areas - Upper Floor Plan

With 575 sq. ft. of living space upstairs, this contemporary garage plan makes a great addition to any property. There are many amenities in this garage plan, including a double garage where one side is lift-friendly. A unique feature of this plan is that the bathroom (with a shower) is on the garage level so that there is more room upstairs. Upstairs in the loft there are two sleeping areas with closets. Unwind in the sloped great room and take in the views of the property on the balcony.

8 Car Garage Plan 8 Car Garage Plan 8 Car Garage Plan - Exterior

8 Car Garage Plan 8 Car Garage Plan - Main Floor Plan

This massive 3,000 sq. ft. garage plan can fit 8 vehicles! With its eye-catching contemporary design, this garage plan is a fantastic addition to anyone who needs lots of extra storage space. The garage is 50 feet deep and can comfortably fit four cars on each side. On one side of the garage plan, there is storage space that can be utilized as a workshop.

Narrow Contemporary Garage Plan Narrow Contemporary Garage Plan Narrow Contemporary Garage Plan - Exterior

Narrow Contemporary Garage Plan Narrow Contemporary Garage Plan - Main Floor Plan

Narrow Contemporary Garage Plan Narrow Contemporary Garage Plan - Upper Floor Plan

If you’re tight on space, this narrow garage plan could be a great choice. This contemporary plan is lift-friendly with its tall ceilings. An RV and another vehicle can fit on the main floor. On the second level of this garage plan, there is a comfortably sized loft that would make a great office.

Two-Story Apartment Garage Plan Two-Story Apartment Garage Plan Two-Story Apartment Garage Plan - Exterior

Two-Story Apartment Garage Plan Two-Story Apartment Garage Plan - Main Floor Plan

Two-Story Apartment Garage Plan Two-Story Apartment Garage Plan - Other Floor Plan

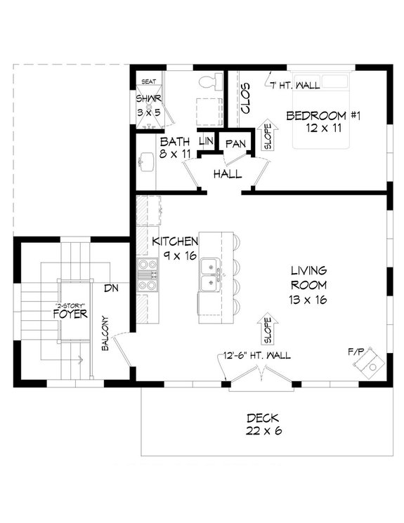
This large garage apartment includes a full living space on top of an impressive garage and storage area. The basement level is where the three-car garage stands with an area for extra storage. Up the stairs to the main floor is the luxurious open-concept apartment. Large windows create a welcoming vibe. The kitchen flows into the living room with the help of the island that can fit four people. For additional storage, there is a pantry nearby. Through the hallway is the bedroom and an impressive bathroom.

Narrow Contemporary Garage Plan with Studio Narrow Contemporary Garage Plan with Studio Narrow Contemporary Garage Plan with Studio - Exterior

Narrow Contemporary Garage Plan with Studio Narrow Contemporary Garage Plan with Studio - Main Floor Plan

Narrow Contemporary Garage Plan with Studio Narrow Contemporary Garage Plan with Studio - Other Floor Plan

This garage plan is a great option for those looking to build on a narrow lot. The garage also features a storage area with a roll-up door for quick access. The garage is open to the second level where the loft resides. The loft area could be utilized as an office space or another area for storage.

Want to view the full collection? Check out all of our garage plans.

$1.99 Build Cost Reports!