BLOG
Our Favorites + Building Knowledge and Materials
Home>Articles

How Big is 850 Square Feet?

How Big is 850 Square Feet?
How big is 850 square feet? Find out here!

How Big is 850 Square Feet?

By Courtney Pittman

How big is 850 square feet? Whether you’re looking to build an ADU (accessory dwelling unit) or a primary residence (like a starter home), 850 square feet can feel small or spot-on – depending on your needs. Making the most of their minimal footprint, our 850-square-foot designs are anything but cramped thanks to their open-concept layouts. These house plans (all around 850 square feet) display clean lines and clever amenities, while staying budget-friendly with modest square footage. Here are eight of our favorites.

Like what you see? Explore our collection of small house plans here.

Modern and Bright Modern and Bright Modern and Bright - Front Exterior

Modern and Bright Modern and Bright - Main Level

If modern curb appeal is your thing, then we’ve got you covered with this petite design. Note the big windows and the shed roof. Inside, the living room flows effortlessly into the U-shaped kitchen. A pantry is ready to keep groceries organized.

The generous laundry room is a welcome amenity. Two bedrooms and a hall bath are tucked away to the left side of the plan.

See more 2 bedroom plans here

Lots of Outdoor Living Lots of Outdoor Living Lots of Outdoor Living - Front Exterior

Lots of Outdoor Living Lots of Outdoor Living - Main Level

Here’s a thoughtful plan just under 850 square feet. In the open great room, a wall of accordion glass doors connects the interior to a covered patio. A vaulted ceiling and skylights draw the eye up and create an airy vibe.

The bedroom shines with two closets. Other outdoor living options include a second covered patio and a courtyard. Don’t miss the outdoor shower and the large storage room.

Garage Apartment Plan with Shop Garage Apartment Plan with Shop Garage Apartment Plan with Shop - Front Exterior

Garage Apartment Plan with Shop Garage Apartment Plan with Shop - Main Level

Garage Apartment Plan with Shop Garage Apartment Plan with Shop - Garage Level

In the market for a garage apartment plan? Here’s a nice one. We love the seamless flow between the L-shaped kitchen, the living room, and the morning room. French doors open to a spacious balcony/deck.

A bedroom and a full bath enjoy privacy at the back of the plan. You’ll find ample room for storage in the two-car garage, along with a full bath and an entry with a bench and hooks. Oh, and a workshop area to boot.

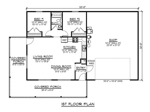
Two-Bedroom Barndominium Plan Two-Bedroom Barndominium Plan Two-Bedroom Barndominium Plan - Front Exterior

Two-Bedroom Barndominium Plan Two-Bedroom Barndominium Plan - Main Level

Who doesn’t love a good wraparound porch? We certainly do. Embracing the ever-so-popular barndominium look, this plan features a streamlined layout with minimal walls.

The kitchen, the dining area, and the living room share one open space. A hall bath sits between two bedrooms at the back of the design. Check out the large two-car garage and the shop area.

Loving any of the plans you're seeing? Register now to easily save and return to your favorites!

Contemporary ADU Plan Contemporary ADU Plan Contemporary ADU Plan - Front Exterior

Contemporary ADU Plan Contemporary ADU Plan - Main Level

Contemporary ADU Plan Contemporary ADU Plan - Upper Level

We love a contemporary ADU plan, especially this one. The easygoing layout delivers functionality with an open layout. In the kitchen, an island serves the living room. A breakfast nook waits close by.

Nice weather? French doors open to a balcony/deck. The bedroom impresses with two closets. Here’s a cool detail: the bathroom features a sizable wet room. The lift-friendly garage has room for storage.

Contemporary Plan for Narrow Lot Contemporary Plan for Narrow Lot Contemporary Plan for Narrow Lot - Front Exterior

Contemporary Plan for Narrow Lot Contemporary Plan for Narrow Lot - Main Level

Contemporary Plan for Narrow Lot Contemporary Plan for Narrow Lot - Upper Level

Just over 850 square feet, this contemporary house plan would work well on a tight lot. On the first floor, an eating bar in the kitchen overlooks the great room. Unwind on the nearby patio.

You’ll find plenty of storage space in the one-car garage. The second level shines with two bedrooms (one with two closets), a full hall bath, and a laundry room.

Mid-Century Style Plan Mid-Century Style Plan Mid-Century Style Plan - Front Exterior

Mid-Century Style Plan Mid-Century Style Plan - Main Level

We are head-over-heels for this stylish mid-century design. A shed roof, mixed siding, and lots of windows deliver bold curb appeal. Inside, the great room opens to the dining area and the kitchen, where an island is ready for relaxed meals.

Two walls of sliding glass doors extend the living space and bring the outdoors in. Two bedrooms and a full bath round out this plan.

Modern Cabin Design Modern Cabin Design Modern Cabin Design - Front Exterior

Modern Cabin Design Modern Cabin Design - Main Level

Here’s a simple, budget-friendly design. Clocking in at 850 square feet, the uncomplicated layout gives you a kitchen with an island that serves the dining nook. Nearby, a fireplace provides warmth in the living room.

Sliding glass doors offer indoor/outdoor connections. A full bath sits between two bedrooms on the right side of the plan.

Discover more small house plans.

How Big is 850 Square Feet?

Coupon Codes