Modern farmhouse plans combine timeless style with smart details and amenities. With welcoming front porches, open floor plans, large island kitchens, and more, these house designs deliver comfort and charm. Whether you’re looking for a one-story home or prefer two levels, there’s a beautiful modern farmhouse plan that’s right for you. Check out some of our favorites below.
Discover our collection of modern farmhouse plans here
Cozy Modern Farmhouse Home Plan
Plan 1074-26
If a spacious and open floor plan is a must-have, then this one-story modern farmhouse could check all the right boxes for you. As you pass through the welcoming front porch and into the entryway, you’ll be greeted with a large family room that includes access to the rear covered porch. From there you’ll flow into the well-equipped kitchen that comes with an island, a walk-in pantry, and space for dining.
One wing of this design includes two bedrooms with ample closet space and one full bathroom. Towards the rear of the plan is the master suite, which features a walk-in closet, a bathroom with two sinks, a tub, and a separate shower. The laundry room is conveniently nearby.
Check out these modern farmhouse plans from Builder Online
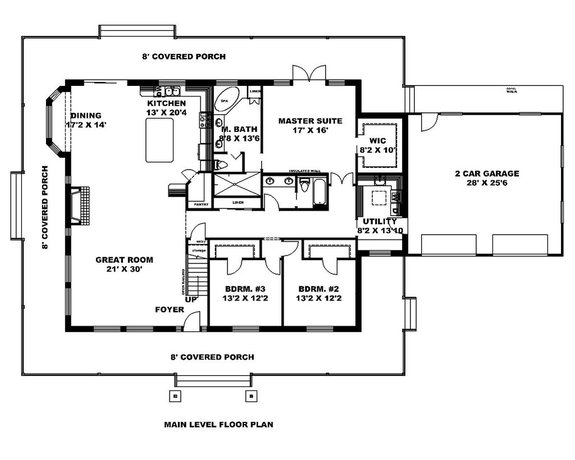
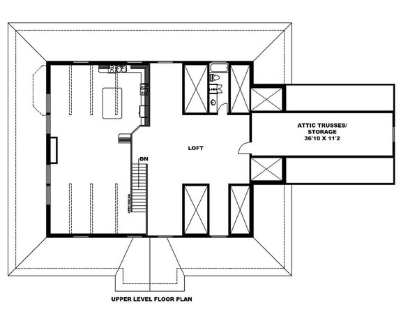
Spacious and Modern Farmhouse Home Design
Plan 1070-127
Enjoy the space and convenience that two-level living provides with this welcoming modern farmhouse home design. Once you’re inside, you’ll find yourself drawn to the spacious great room that opens out onto the outdoor covered patio. Not far away is the modern kitchen that is equipped with a large island, plenty of storage, and room for a dining area. Towards the front of the house you’ll find two bedrooms, a full bathroom, and space for a washer/dryer.
The opposite side of this design includes a master suite that features a walk-in closet, a bathroom with two sinks, shower, tub, and toilet compartment.
The second level includes one bedroom, one full bathroom, and a bonus room.
Beautiful Two-Level Modern Farmhouse Design
Plan 928-350
Enjoy timeless curb appeal with this classic farmhouse style plan. This home design welcomes you with a large covered front porch that is sure to be your new go-to relaxing spot. After you walk inside, you’ll be in an open and airy living room that provides access to the rear porch via French doors. The nearby kitchen includes an island, a walk-in pantry, a dining space, and access to the side porch.
On the opposite side of the main level is the master suite, which features a generous walk-in closet, a bathroom with dual sinks, a separate tub, a shower, and a toilet compartment. The room towards the front of the house is ideal for a home office.
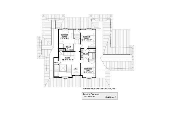
Upstairs, you'll find a bedroom suite and two additional bedrooms that share a Jack-and-Jill bathroom. Don't miss the flexible loft space on this level.
Discover these spa-like master bathrooms from HGTV
Two-Story Modern Farmhouse with Country Charm
Plan 1054-95
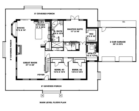
With all the appeal of a classic country farmhouse, this house design goes big on charm and style. The wide front porch gives you an ideal place to relax and hang out with the family. Inside you’ll be greeted with a music room and a den on either side of the entryway. From there, you’ll flow into the spacious family room that opens to a dining space and modern kitchen. The kitchen has a convenient island, walk-in pantry, and is close to the washer/dryer area.
Just steps away from the home office is the main-level master suite, which features access to a covered porch, two walk-in closets, and a spa-like bathroom.
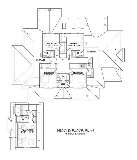
The second level gives you two bedroom suites and two more bedrooms that share a Jack-and-Jill bathroom. Above the two-car garage is additional space for a playroom and one full bathroom.
Modern Farmhouse Design with Plenty of Outdoor Space
Plan 117-889
If your vision of the ideal modern farmhouse house plan includes a wrap around porch, then this could be the plan for you. The porch wraps from the front to the rear of the plan, offering you plenty of space to relax and spend time with the family outside. Once you step through the foyer you’ll find yourself in the expansive and open great room that seamlessly flows into the dining space and kitchen. The main-level master suite features a walk-in closet, a bathroom with two sinks, a spa tub, and a separate shower. There are two secondary bedrooms, one full bathroom, and space for a washer/dryer nearby.
The second level includes a bright loft area, one full bathroom, and plenty of extra space for storage above the two-car garage.
One-Story Modern Farmhouse
Plan 1070-117
This one-story modern farmhouse plan is not only beautiful, it’s extremely practical. The expansive great room flows easily into the dining space (and includes access to the covered rear porch). The spacious kitchen is well-equipped with a large island, walk-in pantry, and plenty of cabinet space for storage. This wing of the house also contains two bedrooms and one full bathroom.
The opposite wing includes the master suite, which features a walk-in closet, and a luxurious bathroom. Work from home? Check out the cool home office.
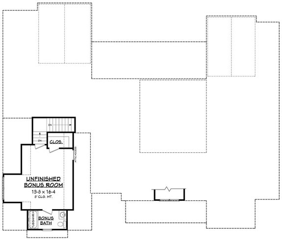
Modern Farmhouse Design with Two Porches
Plan 1067-4
You’re sure to love all the space, inside and outside, that accompanies this house plan. When you walk through the foyer you’ll be impressed with the large great room (that offers access to the rear porch) and separate dining space. You’ll flow easily into the kitchen, which comes equipped with an island, a butler’s pantry, and a walk-in pantry. One wing of this one-story plan includes two bedrooms (with walk-in closets) and a shared full bathroom. There is also space ideal for a game room or an in-law suite that features a private bathroom, walk-in closet, and kitchenette.
The opposite wing features the luxurious master suite with a generous walk-in closet (that opens to the laundry room), a bathroom with two sinks, custom tiled shower, tub, and toilet compartment.
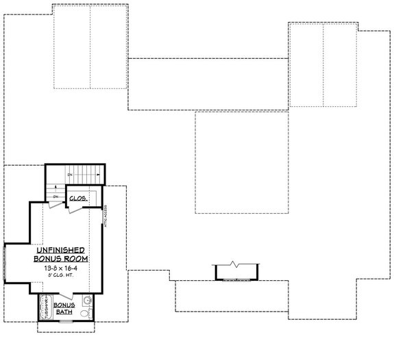
This plan comes with the option for a bonus room and bathroom above the two-car garage.
Attractive Modern Farmhouse Plan
Plan 1070-106
With plenty of space to kick back and relax, this plan offers a lot when it comes to unwinding in comfort and style. Once you’re inside, you’ll find yourself drawn to the welcoming kitchen (with an island and a breakfast nook) that flows seamlessly into the dining area. This transitions into the spacious and open great room, which provides easy access to the covered outdoor porch. The main-level master suite features dual walk-in closets (with access to the laundry room), a bathroom with two sinks and much more. Space for a home office is just steps away.
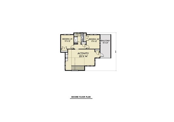
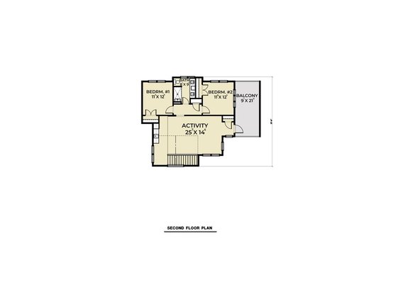
The second level includes two additional bedrooms, one full bathroom (with dual sinks), an activity area, and access to the balcony.














