BLOG
Our Favorites + Building Knowledge and Materials
Home>Articles

Luxury French Country House Plans

Luxury French Country House Plans
Enjoy lavish details with luxury French country house plans.

Luxury French Country House Plans

By Courtney Pittman

Comfortable open layouts? Check. Spa-like primary suites? You got it. These luxury French Country house plans offer more than just bold curb appeal. Look for kitchens with large islands and lots of seating, upscale amenities, flexible spaces, and more.

Want more? Discover our collection of French Country house plans here.

French Country Plan with Outdoor Kitchen French Country Plan with Outdoor Kitchen French Country Plan with Outdoor Kitchen - Front Exterior

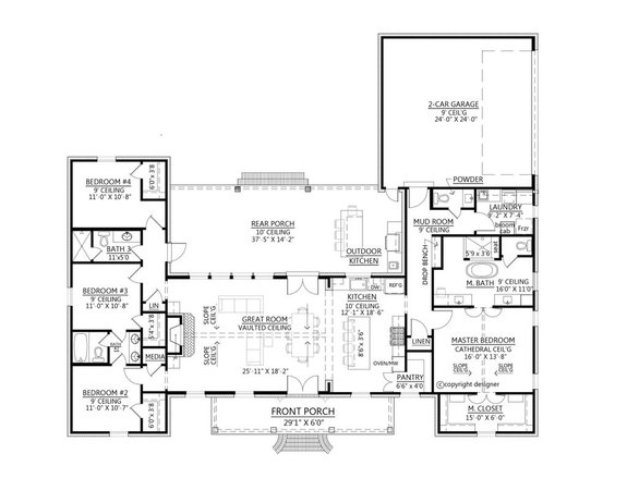
French Country Plan with Outdoor Kitchen French Country Plan with Outdoor Kitchen - Main Level

Here’s a French Country house plan that wows with thoughtful details. For example, an outdoor kitchen on the rear porch is the perfect place for relaxed meals. In the main kitchen, an island overlooks the vaulted great room, where a fireplace keeps things cozy and warm.

The lavish primary suite enjoys extra privacy on the right side of the plan and features a big shower with a seat, a separate tub, and a sizable closet. Don’t miss the tidy mudroom and the two-car garage.

Luxury Plan with Deluxe Primary Suite Luxury Plan with Deluxe Primary Suite Luxury Plan with Deluxe Primary Suite - Front Exterior

Luxury Plan with Deluxe Primary Suite Luxury Plan with Deluxe Primary Suite - Main Level

This three-bedroom plan shows off luxury style with two dormer windows, an inviting front porch, and metal roof accents. The layout inside encourages modern living with the spacious great room opening to the island kitchen, while the dining nook waits close by. Next to the foyer, a home office offers versatility.

Lockers in the mudroom are a welcome amenity. Out back, the screened porch keeps the bugs at bay and offers year-round outdoor living with a gas fireplace. The primary suite impresses with not one but TWO walk-in closets and a unique walk-through shower. There’s plenty of room for storage in the three-car garage.

Luxury Outdoor Living Luxury Outdoor Living Luxury Outdoor Living - Front Exterior

Luxury Outdoor Living Luxury Outdoor Living - Main Level

French Country charm meets modern luxury in this eye-catching design. We love the wide front porch. Inside, the kitchen takes center stage with an island that serves the fireplace-warmed family room. At the front of the plan, the foyer sits between a formal dining room and an office.

Ready to be impressed? Check out the primary suite, which gives you two closets (one with an island), a walk-through shower, a separate tub, and access to the laundry room. On the rear porch, an outdoor kitchen boasts an island with seating.

Luxe L-Shaped Plan Luxe L-Shaped Plan Luxe L-Shaped Plan - Front Exterior

Luxe L-Shaped Plan Luxe L-Shaped Plan - Main Level

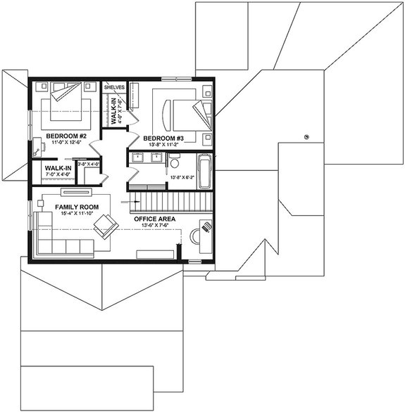
Luxe L-Shaped Plan Luxe L-Shaped Plan - Upper Level

This luxury design shows off French Country style with stone siding accents, a gabled roofline, and a dormer window. We love the L-shaped floor plan. Extra storage in the garage is a welcome detail. Near the foyer, a playroom could be used as a study or a home office.

The main-level primary suite makes it easy to age in place. In the dining room, sliding glass doors open to a covered terrace. Two additional bedrooms (each with a walk-in closet), a flexible family room, and an office area wait upstairs.

Loving any of the plans you're seeing? Register now to easily save and return to your favorites!

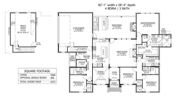
Four-Bedroom French Country Plan Four-Bedroom French Country Plan Four-Bedroom French Country Plan - Front Exterior

Four-Bedroom French Country Plan Four-Bedroom French Country Plan - Main Level

A brick exterior and beautiful French doors deliver luxurious country charm to this four-bedroom design. Inside, the open kitchen includes an eating bar that seats four at the island. Here’s a nice touch: a sliding barn door hides the pantry.

Don’t miss the rear porch, which includes an outdoor kitchen with an island and a fireplace. A bonus room above the two-car garage can be finished now or later.

Three-Car Garage with Storage Three-Car Garage with Storage Three-Car Garage with Storage - Front Exterior

Three-Car Garage with Storage Three-Car Garage with Storage - Main Level

Offering plenty of room for storage, this luxury French Country house plan gives you a three-car garage with a storage closet, plus a handy mudroom with lockers and a walk-in closet in each bedroom. In the kitchen, a spacious pantry keeps groceries organized.

A cozy fireplace warms the vaulted great room. Kick back and relax on the rear porch. A spa-like bath highlights the primary suite.

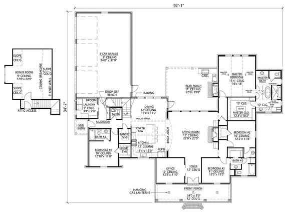
Two Dormer Windows Two Dormer Windows Two Dormer Windows - Front Exterior

Two Dormer Windows Two Dormer Windows - Main Level

Here’s a swoon-worthy house plan filled with luxury details and French Country style. Two dormer windows, a covered front porch, and French doors deliver envious curb appeal. The open kitchen serves the living room and the dining nook.

A covered rear porch is ready for outdoor entertainment and features a fireplace and a grill. Other highlights include a three-car garage and a bonus room.

Click through to see photos!

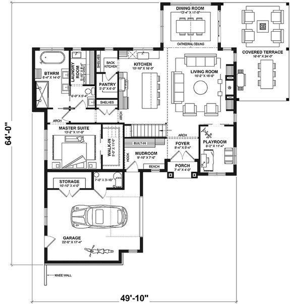
Country Design with Hidden Pantry Country Design with Hidden Pantry Country Design with Hidden Pantry - Front Exterior

Country Design with Hidden Pantry Country Design with Hidden Pantry - Main Level

This luxury French Country house plan captures your attention with a long front porch, mixed siding, two dormer windows, and a hip roof. Inside, the versatile layout places the main living areas at the center of the home. A hidden pantry (with a counter) in the kitchen is a modern touch.

The noteworthy primary suite includes a sizable walk-in closet, two sinks, and a wet room. An office sits next to the foyer. Take advantage of nice weather on the rear porch.

Browse more luxury French Country house plans.

Luxury French Country House Plans

Coupon Codes