BLOG
Our Favorites + Building Knowledge and Materials
Home>Articles

Single-Story Farmhouse Plans

Single-Story Farmhouse Plans
Check out these single-story house plans.

By Devin Uriarte

Pick a single-story farmhouse plan if you’re looking to build a house plan that features charming curb appeal and a modern layout. These are some of our favorite single-story farmhouse plans that all feature great amenities.

Check out the full collection of 1 story farmhouse plans

Farmhouse with Charming Breakfast Nook Farmhouse with Charming Breakfast Nook Farmhouse with Charming Breakfast Nook - Exterior

Farmhouse with Charming Breakfast Nook Farmhouse with Charming Breakfast Nook - Main Floor Plan

Step inside this farmhouse plan with classic curb appeal. The classic front porch welcomes you into the foyer with a private den on the left and a semi-open dining room on the right. In the kitchen, there is a charming breakfast nook that looks out to the backyard. Double doors in the living room lead you out to the covered back patio. There’s an impressive laundry room just steps away from the two-car garage and a mudroom close to the powder room.

Farmhouse with Covered Lanai Farmhouse with Covered Lanai Farmhouse with Covered Lanai - Exterior

Farmhouse with Covered Lanai Farmhouse with Covered Lanai - Main Floor Plan

Gorgeous sliding glass doors lead out to the covered lanai with an outdoor kitchen. A unique feature of this house plan is the cabana bathroom (with a walk-in shower!) that you can reach from the covered lanai or inside. Enjoy the kitchen with tons of counter space and extra storage in the walk-in pantry. The primary suite sits on one side of the home plan with an impressive walk-in closet and a bathroom with double sinks. On the other side of the home plan, there are two guest bedrooms.

Farmhouse Plan with Kitchen Island Farmhouse Plan with Kitchen Island Farmhouse Plan with Kitchen Island - Exterior

Farmhouse Plan with Kitchen Island Farmhouse Plan with Kitchen Island - Main Floor Plan

Entertain guests in this modern farmhouse plan. The sizable kitchen island is a great place to host guests and prepare meals. For even more storage space, there is a walk-in pantry just steps away. There is a mixed utility and mudroom near the two-car garage to minimize clutter. The two guest bedrooms share a bathroom. An entryway into the primary suite adds a luxurious touch to the space. In the primary suite, you can enjoy the walk-in closet and the modern bathroom.

Farmhouse with Covered Porch Farmhouse with Covered Porch Farmhouse with Covered Porch - Exterior

Farmhouse with Covered Porch Farmhouse with Covered Porch - Main Floor Plan

This charming farmhouse plan has stunning curb appeal. Entertain guests with ease at the spacious kitchen island and enjoy the storage close by with the pantry. Take guests to the back porch on those warmer nights and keep the party going. The primary suite features a full-sized bathroom with glass shower and freestanding tub.

Luxury Farmhouse Plan Luxury Farmhouse Plan Luxury Farmhouse Plan - Exterior

Luxury Farmhouse Plan Luxury Farmhouse Plan - Main Floor Plan

Fall in love with this luxurious farmhouse plan that stretches over 3,000 sq. ft. Treat your guests to their own private space. There’s an attached guest apartment with a door leading to the main house. In the guest apartment, there is a cozy kitchen and a private bedroom and bath. From the apartment you can gain access to the guest garage. Back in the main house, the foyer opens to the vaulted great room that flows into the dining area and kitchen. Continue the entertainment outside on the outdoor living space with an outdoor kitchen.

The primary suite features a luxurious full-sized bathroom that opens to the impressive walk-in closet with an island. Access an additional porch from the private entrance in the primary suite.

Farmhouse Plan Farmhouse Plan Farmhouse Plan - Exterior

Farmhouse Plan Farmhouse Plan - Main Floor Plan

This single-story farmhouse boasts a simple yet modern floor plan. The entryway leads into the great room and opens to the dining area and L-shaped kitchen. Prepare meals in the L-shaped kitchen and relax at the island. The two-car garage leads into the mudroom and there is a convenient laundry room through the sliding door. Two guest bedrooms sit on one side of the house and the primary suite on the other. The primary suite features a luxury full-sized bathroom with an impressive walk-in closet.

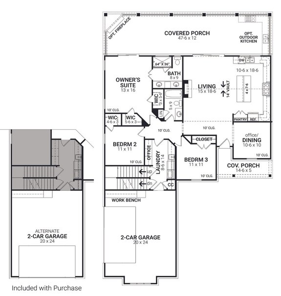
Farmhouse with Office Nook Farmhouse with Office Nook Farmhouse with Office Nook - Exterior

Farmhouse with Office Nook Farmhouse with Office Nook - Main Floor Plan

The attractive curb appeal of this farmhouse continues indoors with its many amenities. There’s an extra room that could be utilized as a dining room or at-home office. If you decide to use the extra room as a dining room, there is an office nook tucked away in the laundry area. Through the laundry room is the two-car garage with a handy work bench. Across from the laundry area is the primary suite with two walk-in closets. The primary suite has a sliding glass door that leads out to the covered porch.

Four-Bedroom Farmhouse Four-Bedroom Farmhouse Four-Bedroom Farmhouse - Exterior

Four-Bedroom Farmhouse Four-Bedroom Farmhouse - Main Floor Plan

If you’re looking to build on a narrow lot without compromising on space, this four-bedroom farmhouse plan is a great option. The foyer leads to two bedrooms and a full bathroom. On the opposite side of the foyer, there’s an additional bedroom and a powder room. Natural light streams into the open living and dining area through the sliding glass doors. Entertain guests at the kitchen island and enjoy the bright open floor plan. Continue entertaining outdoors in the back outdoor living area.

3,777 Sq. Ft. Farmhouse Plan with In-Law Suite 3,777 Sq. Ft. Farmhouse Plan with In-Law Suite 3,777 Sq. Ft. Farmhouse Plan with In-Law Suite - Exterior

3,777 Sq. Ft. Farmhouse Plan with In-Law Suite 3,777 Sq. Ft. Farmhouse Plan with In-Law Suite - Main Floor Plan

Enjoy all the amenities of this single-story farmhouse plan. Prepare meals in the open kitchen and take advantage of the storage in the impressive walk-in pantry with shelving. There is a cozy breakfast nook next to the kitchen for a more casual dining experience. To elevate your dinners, there is a more formal dining room across from the kitchen. French doors open to the additional bedroom that can also be utilized as an office. The primary suite features a great walk-in closet and a dual-sink vanity.

A unique feature of this house plan is the in-law living area. In-laws or guests can feel right at home having a private kitchen, bedroom, bath, and garage. The garage can fit a single car and there’s a storage area for additional space.

Cozy Farmhouse Cozy Farmhouse Cozy Farmhouse - Exterior

Cozy Farmhouse Cozy Farmhouse - Main Floor Plan

This cozy farmhouse plan takes advantage of every square foot with its open layout. The impressive kitchen has an island with a built-in eating bar and easy access to the walk-in pantry. Next to the pantry and primary suite is the laundry room. No need to compromise on storage in the primary suite when you have a walk-in closet. A second hallway takes you to the two other bedrooms that share a bathroom. At the end of a long day, sit back and relax out on the front or rear porch.

Check out the full collection of 1 story farmhouse plans

Today's Deals