BLOG
Our Favorites + Building Knowledge and Materials
Home>Articles

Barndominium Plans with Open Kitchens

Barndominium Plans with Open Kitchens
Enjoy lots of natural light in these barndominium plans.

By Devin Uriarte

When it comes to entertaining, nothing is better than a spacious and open-concept kitchen. Barndominium plans offer a unique way to combine modern style with having a cozy and inviting feel. While the term barndominium is often used to refer to a metal building, most of these house plans feature traditional wood framing. Here are ten plans that allow you to entertain your guests in your home without ever leaving the kitchen.

Want to see more barndominium house plans with open kitchens? See the full collection here.

Barndo Plan with Large Living Space Barndo Plan with Large Living Space Barndo Plan with Large Living Space - Front Exterior

Barndo Plan with Large Living Space Barndo Plan with Large Living Space - Main Floor

This house plan features a layout that can be enjoyed by all. A semi-open floor plan makes entertaining and socialization effortless. The large center island in the kitchen includes a built-in bar top, which allows a great place for others to sit and chat while you’re preparing food and drinks. Having a walk-in pantry just a few steps away boosts the functionality of this kitchen.

Conversations flow into the dining room where you can enjoy the ambient vibes of the fireplace. The eye-catching fireplace not only provides warmth during the cold months, but it also acts as an aesthetic focal point of the house and strategically breaks up open space. End your nights relaxing on the couch in the great room or on the covered porch.

Modern Country House Design with Wraparound Porch Modern Country House Design with Wraparound Porch Modern Country House Design with Wraparound Porch - Front Exterior

House Plan Design - Barndominium Plans with Open Kitchens Modern Country House Design with Wraparound Porch - Main Floor

This home plan is a great way to enjoy the outdoors and country lifestyle while still maintaining a modern design. In the kitchen you will find an island that comfortably seats six people and will be able to easily communicate between the dining room and living room. There is a grilling porch attached to the kitchen so that you don’t have to cook inside while enjoying your time outdoors with friends or family members on warm days. Even if you decide to stay indoors, you’ll still be able to appreciate the outdoors from the natural light coming from the loft above the living room.

Modern Ranch House Plan Modern Ranch House Plan Modern Ranch House Plan- Front Exterior

Modern Ranch House Plan Modern Ranch House Plan- Main Floor

One would have to look twice before knowing this plan was a fully livable and luxurious home. The vaulted ceiling and large windows create a constant stream of natural light. Enjoy the atmosphere in the kitchen with the island of our dreams. Comfortably seating seven people at the bar top, the kitchen allows for casual dining. The walk-in pantry provides you with any extra storage you may need. A natural flow continues into the shared living and dining room where a double-door opens up to the vaulted front porch. Other highlights of the home include an exercise room and studio space that also leads outdoors.

Contemporary Barn Clontemporary Barn Contemporary Barn - Front Exterior

Contemporary Barn Contemporary Barn - Main Floor

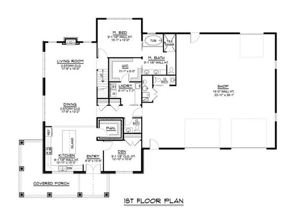
Want a modern twist on a country home? This simple barndominium plan allows spaces to flow into each other, making it a wonderful vibe where you can interact with guests and family. The compact kitchen tucks into a corner and connects with the dining area and living room. For extra storage you can find an impressive walk-in pantry to the right of the kitchen. Large windows brighten up the space and create a greater sense of openness.

The primary suite also lives on the main floor and features amenities like a giant walk-in closet, which opens to the laundry room.

Classic Farmhouse Classic Farmhouse Classic Farmhouse - Front Exterior

Classic Farmhouse Classic Farmhouse - Main Floor

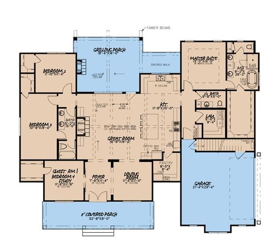
This barndominium gives you a luxurious floor plan that is functional and stylish. Enter the home through the grand foyer and be amazed at the vaulted ceilings and bright interior. The indoor fireplace adds an additional touch of luxury to the living room. The kitchen island that comfortably seats six individuals takes center stage and provides a more casual space to enjoy a meal. The dining room is tucked away from the main living room to provide a sense of privacy but is still open to the kitchen. Feel connected to the outdoors by enjoying time on the grilling porch while family and guests relax by the fireplace.

Simple and Elegant Barndominium Simple and Elegant Barndominium Simple and Elegant Barndominium - Front Exterior

Simple and Elegant Barndominium Simple and Elegant Barndominium - Main Floor

Bright light immediately welcomes you into this home plan. The large island in the kitchen provides a centralized area to socialize and additional storage. The pantry with built-in shelves adds even more storage and organization to your kitchen area. Keep the organization of your kitchen intact after dropping off your groceries from the connected two-car garage. Convert the extra area next to the foyer into a formal dining area. For quick and casual meals, a cozy dining nook is conveniently placed next to the kitchen.

Two covered porches in the front and back of the house provide additional living spaces. Slide open those glass doors to the covered porch so friends and family can gather outside but still chat with those inside.

Unique Curb Appeal Unique Curb Appeal Unique Curb Appeal - Front Exterior

Unique Curb Appeal Unique Curb Appeal - Main Floor

We can’t take our eyes off this modern barndominium house plan with a unique flare. This house is ready to entertain with the kitchen seamlessly flowing into the dining room and living room. Having a kitchen with ample amounts of storage makes entertaining convenient and meal prep stress-free. For additional storage, there is a walk-in pantry hidden behind a stylish barn door. A fireplace adds to the warmth of the sun-filled living room and creates a more welcoming vibe. What’s more eye-catching than the kitchen island is the extensive outdoor living space. Take advantage of those warm summer nights with the barbecue area and enjoy dinner on the lanai patio.

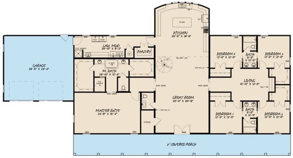
Barndominium with Extra Storage Barndominium with Extra Storage Barndominium with Extra Storage - Front Exterior

Barndominium with Extra Storage Barndominium with Extra Storage - Main Floor

A barndominium plan with two unique living areas is just what we’ve been searching for. Double-doors welcome you into the striking great room then immediately into the spacious kitchen. Windows surrounding the kitchen let in natural light and allow you to enjoy the view while prepping a meal or drinks. Barn doors open to the second living area that conveniently connects four separate bedrooms with Jack and Jill bathrooms. For extra privacy, the second set of barn doors open to the primary suite and bath. Nothing says luxury like a walk-in closet and this primary suite has two!

Single-Story Barndominium Single-Story Barndominium Single-Story Barndominium - Front Exterior

Single-Story Barndominium Single-Story Barndominium - Main Floor

This cottage-style barndominium gives off all the cozy vibes. Warm light fills the space with vaulted ceilings in the main living area. The open-concept kitchen works well for entertaining, as guests can easily gather around the island. Keep things casual and fun by taking the party outdoors to the grilling porch. If you are hosting a more intimate gathering, the partially closed-off dining room is perfect for some added privacy. Other highlights of this space include an impressive walk-in pantry with space for a separate freezer and microwave.

Barndo-Style Farmhouse Barndo-Style Farmhouse Barndo-Style Farmhouse - Front Exterior

Barndo-Style Farmhouse Barndo-Style Farmhouse - Main Floor

This sleek and modern farmhouse (the Mossfield from Visbeen Architects) has living spaces around every corner. Whether you want a more intimate or casual dining experience, this home offers six areas that suit every occasion. An incredibly unique feature of this home is the bar top on the screened in porch that looks into the kitchen. With an island placed in the middle of two bar tops, you’ll never have to turn your back on guests while entertaining. The additional bar top also provides you with extra storage space and if that wasn’t enough, a pantry with built-in shelves is available in the kitchen.

Want to see more barndominium house plans with open kitchens? See the full collection [here.]

Today's Deals