Traditional Homes with Closed Floor Plans
By Gabby Torrenti
A traditional closed floor plan home is a great fit for those who value a separation between rooms, keeping living and dining spaces to their own areas of the home. This collection of house plans features homes with formal living rooms at the front of the house, private dining rooms, and plenty of options for customization. Navigation is never an issue in these homes though, as each is intelligently designed to flow, while still clearly distinguishing between rooms.
Want to see all of our closed floor plan homes? Check out the full collection here.
Farmhouse with Formal Living Space
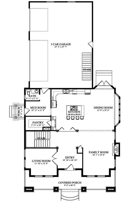
Plan 1060-44
A spacious covered porch extends across the front of this home, leading into the home’s main entryway. Flanked by two living spaces, the foyer provides access to the formal living room to the left and the family room around a short corner. Straight ahead, the secluded kitchen and dining spaces make enjoying a quiet family meal simple. To the left of the kitchen, a pantry mudroom and powder room add to this plan’s overall convenience. Up a short flight of stairs, you'll find the home’s four bedrooms, including an impressive primary suite. This suite comes equipped with a walk-in closet as well as a bathroom with dual sinks, a private toilet closet, and access to a spacious balcony. Each additional bedroom features its own closet space and a shared bathroom. A second-floor laundry room makes household chores simple, too.
If you’re in need of more space for hosting family or entertaining, consider finishing the basement. Two additional bedrooms with a shared bathroom make up the front half of the space, while a kitchen with its own pantry and living room comprise the rest of the space. Ample closet space provides a simple storage solution, rounding out the convenience and flexibility of this home.
Traditional Home with Extra Living Space
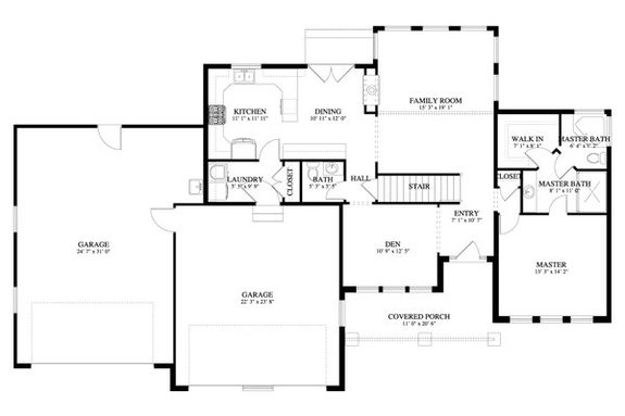
Plan 1060-62
On the main level, a spacious primary suite sits at the front of this two-story home, including a sizable bedroom, private bathroom, and convenient walk-in closet. Start your morning by stepping out of this suite and into the main family room, which provides a secluded space, tucked away from the combined living and dining spaces. Before heading upstairs, stop to enjoy a few quiet moments in the den area, which is the perfect closed-off space for entertaining guests or watching a movie after a long day.
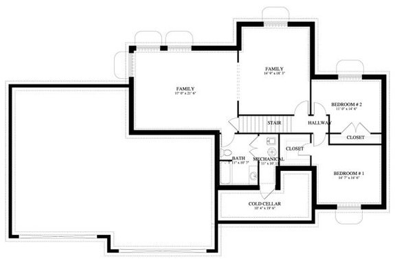
On the second floor, two additional bedrooms gives children or guests their own spaces with a shared bathroom and two convenient closets. A bonus area on this level is completely customizable and can lend itself to serving as additional living space or the perfect place for kids to relax with their friends. Like in the previous plan, the basement offers lots of extra living space, including two bedrooms (each with its own closet), a bathroom, and plenty of square footage that can be utilized as an additional family room. Storage solutions are abundant in this home as well, with linen closets located throughout.
Contemporary Country Home
Plan 928-251
With windows letting light in the front of the home, this country design (the Laurel, an exclusive house plan from Visbeen Architects) seamlessly combines modern details with elements of a traditional closed floor plan. The main porch entryway leads directly into the main living space, which is completely separate from the formal living space to the left of the home. Beyond this parlor area, a short foyer leads into the kitchen, which is attached to the dining room at the back of the home. Step onto the porch after dinner to enjoy the outdoor entertaining capabilities of this home on either the open or screened-in porch.
On the home’s opposite side, a primary suite provides a true escape for the owners, separated from the rest of the home by French doors. This suite includes two closets, a bathroom with dual sinks, and convenient access to the home’s main laundry room. Upstairs, two more bedrooms with their own bathrooms give guests or children their own separate space with an attached loft for relaxing at the end of the day. A private guest suite with a private bathroom on the second floor makes those visiting from out of town feel comfortable too.
Looking for traditional décor ideas to match your home? Check out these ideas from The Spruce.
Traditional Tudor Home
Plan 928-234
Here's another exclusive design from Visbeen Architects, the Glen Mills. Beyond the home's main foyer, a living space leads guests into the dining area, with access to the outdoor deck. On the same side of the home, a secluded study makes it simple to work from home. Toward the rear of the space, the kitchen overlooks the backyard, with a den located to the right. This den provides an easy exit to the outdoor screened porch, which is perfect for enjoying a summer night with friends. Upstairs, the primary suite dominates nearly half of the second floor and includes a spacious bedroom with a sitting area, walk-in closet, and bathroom with dual sinks. Three additional bedrooms give children or guests their own space and share the second upstairs bathroom, while each includes a closet for simple storage.
Family Home Plan with Luxurious Details
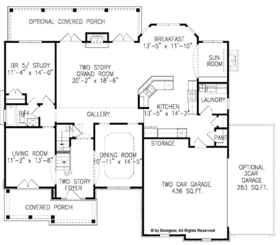
Plan 54-324
This home welcomes guests inside through a two-story foyer, which makes the space feel grand. The gallery space leads into the great room, with vaulted ceilings and access to the covered porch. To the right, the kitchen is situated in its own corner with access to the pantry and breakfast nook. Although this area does look out to the grand room, you've still got traditional, separate spaces for entertaining with formal living and dining rooms. An optional bedroom or study rounds out the first floor with its own bathroom. Upstairs, a balcony provides a view of the great room and connects the primary suite to the two additional bedrooms. To the right, the main suite includes a vaulted bedroom, attached sitting area (perfect for curling up with a good book and a cup of coffee), spacious bathroom with dual sinks, and huge walk-in closet.
Smart Traditional Home
Plan 1010-175
Stepping off the home’s front porch, this plan begins with a foyer, flanked by a formal living room and dining room with a stepped ceiling. These two spaces help to keep living and entertaining separate, while the great room at the back of the home is the perfect family space. To the right, a study makes a convenient space for those working from home to conduct business, while the left side of the home is comprised of the kitchen and morning room. A mudroom and pantry in this wing add to the home’s overall convenience. Upstairs, the primary suite anchors the second level, featuring its own sitting area, a large bathroom with dual sinks, and a walk-in closet. Three additional bedrooms upstairs make hosting guests or housing a several kids simple with two more full bathrooms and a versatile loft space. A convenient laundry room rounds out this floor and makes chores a breeze.














