BLOG
Our Favorites + Building Knowledge and Materials
Home>Articles

House Plans with Roof Deck Terraces

House Plans with Roof Deck Terraces
Enjoy the view from the elevated outdoor living spaces

By Aurora Zeledon

If you're building in a beautiful lakefront location, in a coastal environment, or you simply like outdoor living, we've got the plan for you. Explore these unique house plans with roof deck terraces and enjoy the view.

Love Outdoor Living? Browse Plans with Porches.

Rooftop Deck House Plan with Extra Suite Downstairs Rooftop Deck House Plan with Extra Suite Downstairs Rooftop Deck House Plan with Extra Suite Downstairs - Front Exterior

Here's a unique modern house plan with a rooftop deck at the top level and an extra suite for guests (or relatives) on the ground level. This setup gives plenty of privacy for a college student, elderly parent, or even just a special guest.

Rooftop Deck House Plan with Extra Suite Downstairs Rooftop Deck House Plan with Extra Suite Downstairs - Ground Floor

On the main (second) level, the very-open layout feels fresh and contemporary. A small balcony lets you step out with your coffee to greet the day.

Rooftop Deck House Plan with Extra Suite Downstairs Rooftop Deck House Plan with Extra Suite Downstairs - Second Floor

One level up, you'll find the primary suite and another bedroom. Enjoy your private balcony, along with a walk-in closet and a bathroom with double sinks. The second bedroom uses the hall bathroom.

Rooftop Deck House Plan with Extra Suite Downstairs Rooftop Deck House Plan with Extra Suite Downstairs - Third Floor

Here's where the party happens. The top level of this home holds a scenic mezzanine, where you can take in the views. Imagine the sunsets!

Rooftop Deck House Plan with Extra Suite Downstairs Rooftop Deck House Plan with Extra Suite Downstairs - Roof Deck Terrace

Modern House Plan with Scenic Mezzanine Modern House Plan with Scenic Mezzanine Modern House Plan with Scenic Mezzanine - Front Exterior

This one looks quite similar, but there are key differences. First, it's a bit narrower, just 22 feet wide. That makes it a great choice for a small lot.

Looking for narrow-lot house plans? Check out our collection.

The garage level doesn't hold a guest suite, just a simple parking space with some storage. Note the handy coat hooks and seat in the foyer.

Modern House Plan with Scenic Mezzanine Modern House Plan with Scenic Mezzanine - Ground Floor

On the second level, the kitchen island takes center stage in the very-open layout. As with the plan above, you get a balcony on this floor.

Modern House Plan with Scenic Mezzanine Modern House Plan with Scenic Mezzanine - Second Floor

Now let's go up a level to where both bedrooms reside. The primary suite showcases a private bathroom with a sleek shower and two sinks, along with a walk-in closet and (best of all) a private balcony. Sweet!

Modern House Plan with Scenic Mezzanine Modern House Plan with Scenic Mezzanine - Third Floor

When it's time to get everyone outside, head up to the scenic mezzanine. This simple, open area invites outdoor relaxation.

Modern House Plan with Scenic Mezzanine Modern House Plan with Scenic Mezzanine - Roof Deck Terrace

Modern House Plan with Rooftop Balcony Modern House Plan with Rooftop Balcony Modern House Plan with Rooftop Balcony - Front Exterior

The autumnal depiction of this plan makes it easy to imagine sitting on that balcony on a crisp day, watching leaves drift down. Here's a great example of a modern house plan with modest square footage but big style impact.

Modern House Plan with Rooftop Balcony Modern House Plan with Rooftop Balcony - Main Floor

On the main level, you'll find a lot of practical details like the walk-in pantry, spacious mudroom, and a flexible office that can also serve as a guest room. Check out the terrace in back.

Modern House Plan with Rooftop Balcony Modern House Plan with Rooftop Balcony - Second Floor

That upstairs balcony? That's all yours. It connects to the main suite to create a private, relaxing oasis. The suite also boasts its own bathroom with double sinks.

Garage Plan with Rooftop Deck Garage Plan with Rooftop Deck Garage Plan with Rooftop Deck - Front Exterior

Okay, this next one isn't a house plan. But if you're looking for a backyard garage for extra parking or storage, this cute little design also gives you a fun place to relax outside.

Garage Plan with Rooftop Deck Garage Plan with Rooftop Deck - Main Floor

The garage level keeps things simple with space for two cars.

Garage Plan with Rooftop Deck Garage Plan with Rooftop Deck - Second Floor

Take the exterior staircase to the mezzanine, where you can unwind with a glass of lemonade on a nice day.

Want to see more garage plans? Explore your options here.

Family-Friendly Farmhouse with Activity Room Family-Friendly Farmhouse with Activity Room Family-Friendly Farmhouse with Activity Room - Front Exterior

Here's another house plan that fits in outdoor living upstairs. In this case, it's a fun balcony on the second floor (look for the umbrella in the image). Additional porches add shady places for summer relaxation on the main floor.

Family-Friendly Farmhouse with Activity Room Family-Friendly Farmhouse with Activity Room - Main Floor

Also on the first level, the main suite gives you a private oasis of calm. In here, you'll find double closets (no sharing!), a five-piece bathroom, and easy access to the laundry room.

Other highlights of this floor include the two-sided fireplace between the great room and the dining area and a home office near the mudroom.

Family-Friendly Farmhouse with Activity Room Family-Friendly Farmhouse with Activity Room - Second Floor

Head upstairs next. Two secondary bedrooms hold family members or friends, with a hall bath that sports double sinks (again, no sharing!). But the really exciting part of this home is the activity room, which opens out to that balcony. A wet bar makes it easy to grab a beverage and a snack and head outside.

Modern House Plan for a Narrow Lot Modern House Plan for a Narrow Lot Modern House Plan for a Narrow Lot - Front Exterior

Here's a contemporary house design that would look great in a big city. Take a look at the deck above the two-car garage. There's another deck on the back side of the house, too.

Modern House Plan for a Narrow Lot Modern House Plan for a Narrow Lot - Main Floor

Now let's look at the floor plan. In keeping with the modern vibe, the main-floor gathering areas feel very open. But if you need to take a quick work call, head into the office/pantry.

Modern House Plan for a Narrow Lot Modern House Plan for a Narrow Lot - Second Floor

Need more room for working from home? Then make one of the secondary bedrooms upstairs your work-from-home haven. How about the one that steps out to the back deck? That's a great way to decompress after a stressful meeting.

Meanwhile, the main suite boasts its own deck. You'll also find a large walk-in closet, separate vanities, and a sleek modern shower.

Luxury House Plan with a Rooftop Deck Luxury House Plan with a Rooftop Deck Luxury House Plan with a Rooftop Deck - Front Exterior

Here's a fun one. This strikingly modern luxury home design showcases a lot of outdoor living, especially on the upper level. And it's also a good choice for a sloping lot, with the first level partially below grade (click through to see what the back of the home looks like).

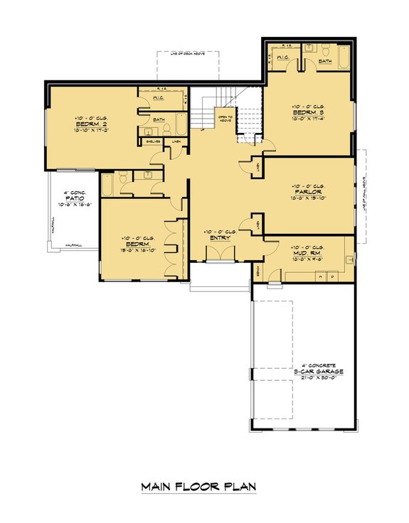
Luxury House Plan with a Rooftop Deck Luxury House Plan with a Rooftop Deck - Main Floor

On this level, you'll find three of the bedrooms, each with access to its own bathroom (two of them are private suites). The parlor would make a fun game room, or use it as a home office.

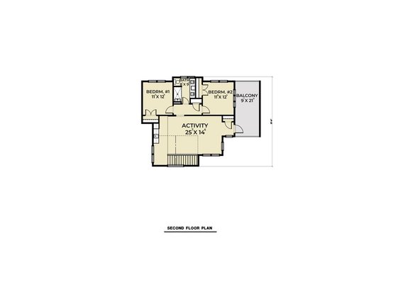
Luxury House Plan with a Rooftop Deck Luxury House Plan with a Rooftop Deck - Second Floor

Upstairs, everyone can gather in the great room or at the kitchen's large island. The primary suite sits on this floor and opens out to a private balcony. Two decks add even more space for outdoor relaxation.

Beach House Plan with Decks and Patios Beach House Plan with Decks and Patios Beach House Plan with Decks and Patios - Front Exterior

What if you're building on a lakefront lot and want a plan with many, many levels of porches and patios? Discover this modern home design from Visbeen Architects (see tons of photos here).

Beach House Plan with Decks and Patios Beach House Plan with Decks and Patios - West Patio

Here's our favorite of the outdoor areas. This is the "west patio" on the top level, with a fireplace and easy access to the refreshment bar inside. Imagine the sunsets!

Beach House Plan with Decks and Patios Beach House Plan with Decks and Patios - Main Floor

Okay, now let's look at the floor plan. Start on the main level with the spacious garage. Here, the big pantry holds enough groceries for a family vacation. The kitchen flows into the living room, which opens out to the enormous deck. Also on this floor: the modern main suite.

Beach House Plan with Decks and Patios Beach House Plan with Decks and Patios - Second Floor

Up a floor, you'll find that west patio. The east patio also offers a lot of space, with a suggested spot for a hot tub. Enjoy a workout in the exercise room, then cool off outside or at the refreshment bar.

Beach House Plan with Decks and Patios Beach House Plan with Decks and Patios - Lower Level

Now let's head down to the basement. More bedrooms, another refreshment bar, and access to a patio round out this remarkable home design.

Lakefront Cottage House Plan Lakefront Cottage House Plan Lakefront Cottage House Plan - Rear Exterior

Want more of a classic beachy cottage vibe? Here's another design from Visbeen Architects. This one shows off a small, private rooftop deck for the main suite on the upper level.

See more lakefront house plans here.

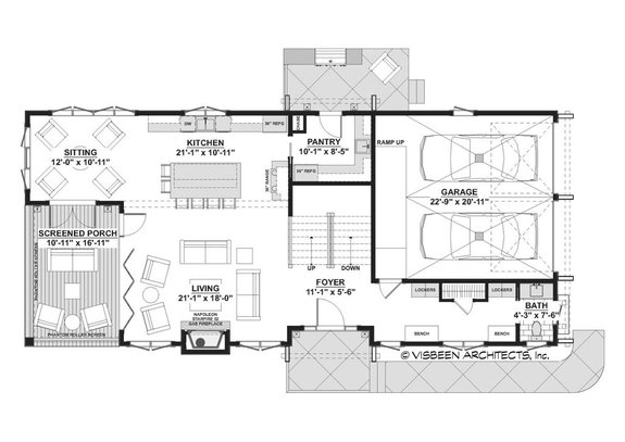
Lakefront Cottage House Plan Lakefront Cottage House Plan - Main Floor

First, let's look at the main level. Six people can take a seat at the kitchen island and enjoy appetizers or breakfast. Enjoy the morning in the sitting room, or read your newspaper on the screened porch.

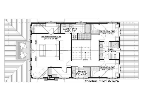
Lakefront Cottage House Plan Lakefront Cottage House Plan - Second Floor

Most of the bedrooms reside on the upper level, including the primary suite with the balcony. You'll also find a five-piece bathroom and walk-in closet in here. A nice detail: the Jack and Jill bathroom includes two sinks, so no one has to wait to brush their teeth.

Lakefront Cottage House Plan Lakefront Cottage House Plan - Lower Level

On the lower level, an office, family room, flex room, and more create many places for work and relaxation.

Love Outdoor Living? Browse Plans with Porches.

$1.99 Build Cost Reports!