BLOG
Our Favorites + Building Knowledge and Materials
Home>Articles

New 2,400 Sq. Ft. Modern Farmhouse Plans

New 2,400 Sq. Ft. Modern Farmhouse Plans
Check out these new, midsized country homes

By Devin Uriarte

Look to these new modern farmhouse plans if you’re wanting a bright and spacious home. These 2,400 sq. ft. homes feature unique and modern open floor plans with thoughtful amenities. We’ve compiled some of the new eye-catching modern farmhouse plans that are all around 2,400 sq. ft.

Explore Our Collection of 2,400 Sq. Ft. House Plans.

Modern Farmhouse with Cozy Fireplace Modern Farmhouse with Cozy Fireplace Modern Farmhouse with Cozy Fireplace - Exterior

Modern Farmhouse with Cozy Fireplace Modern Farmhouse with Cozy Fireplace - Main Floor Plan

Modern Farmhouse with Cozy Fireplace Modern Farmhouse with Cozy Fireplace - Lower Floor Plan

Enjoy the stunning curb appeal of this modern farmhouse with its exposed beams and stone entry. Just under 2,400 sq. ft., this modern farmhouse plan has expansive living areas. The open floor plan allows you to interact with guests even while preparing a meal. Cozy up by the fireplace on the couch in the living room or sitting down at the dinner table in the dining room. A second bedroom and the primary suite are both on the main floor.

Keep clutter and dirty clothing out of the way using the laundry chute in the bathroom. Meet your clothing on the lower level in the spacious laundry room. Gather your guests downstairs in the second family room and end the night with a movie in the media room.

Vaulted Farmhouse Plan Vaulted Farmhouse Plan Vaulted Farmhouse Plan - Exterior

Vaulted Farmhouse Plan Vaulted Farmhouse Plan - Main Floor Plan

Vaulted Farmhouse Plan Vaulted Farmhouse Plan - Second Floor Plan

This rustic farmhouse plan is a little under 2,400 sq. ft. and features some dramatic vaulted ceilings. The curb appeal screams rustic farmhouse, but inside you’ll be surprised by the modern design. An open layout adds a modern touch to the space. In the kitchen, there is an impressive island with a built-in sink and snack bar. For a touch of farmhouse charm in design, there is a banquette seating area in the dining room.

Double sliding glass doors lead out to the vaulted porch where you can enjoy the outdoors. The luxurious primary suite has an impressive walk-in closet and a double sink at the vanity.

2,375 Sq. Ft. Farmhouse with Outdoor Porch 2,375 Sq. Ft. Farmhouse with Outdoor Porch 2,375 Sq. Ft. Farmhouse with Outdoor Porch - Exterior

2,375 Sq. Ft. Farmhouse with Outdoor Porch 2,375 Sq. Ft. Farmhouse with Outdoor Porch - Main Floor Plan

A classic and charming porch highlights the entryway of this modern farmhouse. Pass by the office through the foyer before arriving in the grand living area. A fireplace adds to the farmhouse charm and creates a warm and inviting vibe to the open space. The kitchen island provides an area to prep while also hosting guests. Relax outside under the covered porch and take in the night sky with the skylights.

From the two-car garage there is a mudroom with storage and a seat, as well as a powder room. Through the barn doors is the primary suite that receives lots of natural sunlight from the two skylights. The bathroom has a large shower, a separate tub, and double sinks at the vanity. For even more natural light, there are sun tunnels in the walk-in closet and utility room.

Farmhouse Plan Farmhouse Plan Farmhouse Plan - Exterior

Farmhouse Plan Farmhouse Plan - First Floor Plan

Farmhouse Plan Farmhouse Plan - Second Floor Plan

This classic farmhouse plan is just over 2,400 sq. ft. and features a vaulted back porch with an outdoor grill. Inside through the foyer, there is a flex room that can be utilized for an office or a formal dining room. The living room flows seamlessly into the kitchen where there’s lots of countertop space for prepping plus an island.

Inside the primary suite, the ceilings are beamed for a luxurious feeling and in the bathroom, you can unwind in the relaxing tub. Luxury continues with the walk-in closet. Three separate bedrooms are on the second floor.

2,400 Sq. Ft. Country Farmhouse 2,400 Sq. Ft. Country Farmhouse 2,400 Sq. Ft. Country Farmhouse - Exterior

2,400 Sq. Ft. Country Farmhouse 2,400 Sq. Ft. Country Farmhouse - Main Floor Plan

This 2,400 sq. ft. farmhouse is great for anyone looking for a modern take on a country farmhouse. The covered wraparound porch is great for taking in the views of the property. The two-car garage includes a large storage space with a bathroom that has a shower. The door leading from the garage passes through the laundry and next to the mechanical room. The open floor plan of the living room and kitchen allows guests to move freely through the home.

Two bedrooms with walk-in closets sit on one end of the home. The primary suite is on the opposite side with dual walk-in closets and a luxurious bathroom.

Narrow Farmhouse Plan Narrow Farmhouse Plan Narrow Farmhouse Plan - Exterior

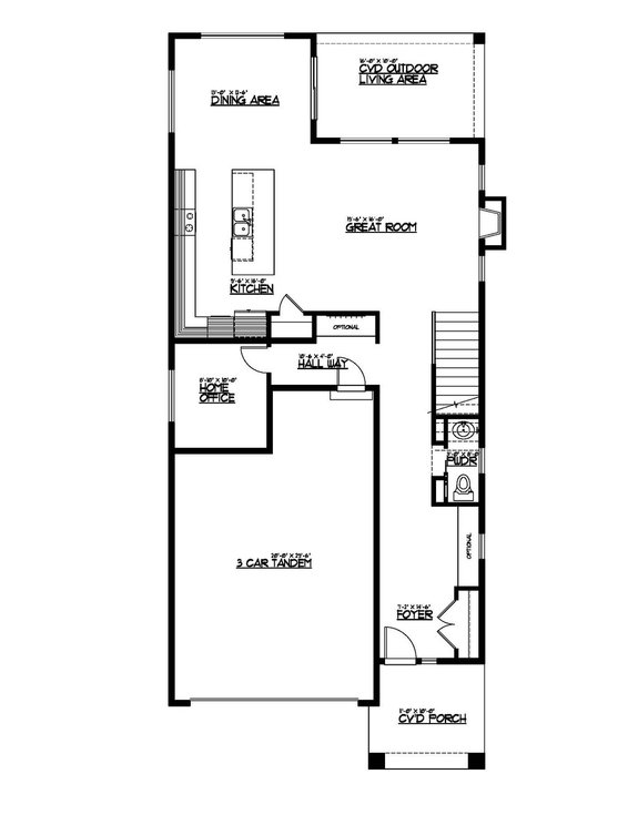
Narrow Farmhouse Plan Narrow Farmhouse Plan - Main Floor Plan

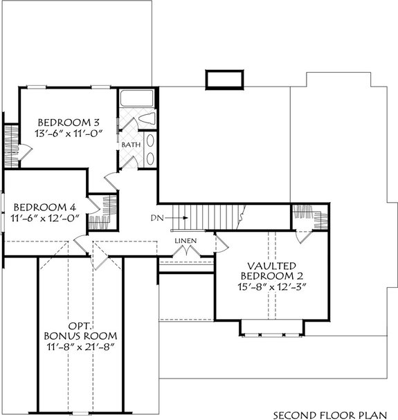
Narrow Farmhouse Plan Narrow Farmhouse Plan - Upper Floor Plan

Looking for a modern house plan for a narrow lot? Here is a modern farmhouse plan that is just over 2,400 sq. ft. and has a great space for entertaining. The three-car tandem garage leads to the open floor plan of the living room, dining room, and kitchen. Entertain guests inside or outside under the covered living area.

All the bedrooms are on the upper floor, in addition to a leisure loft. The primary suite has an entryway that leads to the bedroom and the bathroom with access to the impressive walk-in closet.

Craftsman Farmhouse Craftsman Farmhouse Craftsman Farmhouse - Exterior

Craftsman Farmhouse Craftsman Farmhouse - Main Floor Plan

This single-story Craftsman farmhouse has some major curb appeal. Inside, all eyes are on the kitchen with its impressive counter space and functionality. Move around the kitchen with ease with its large island and detached sink space. Keep clutter at bay in the walk-in pantry. Entertain guests on either covered porch for a more casual dining experience.

Passing by the office, you'll arrive at the other side of the home, where you'll find two bedrooms and the primary suite. Each bedroom has a walk-in closet, but the real showstopper is in the primary suite with its spa-like bathroom.

Traditional Farmhouse House Plan Traditional Farmhouse House Plan Traditional Farmhouse House Plan - Exterior

Traditional Farmhouse House Plan Traditional Farmhouse House Plan - Main Floor Plan

Stay cozy and warm in this charming traditional farmhouse. Just over 2,400 sq. ft., this farmhouse impresses with its open layout and storage spaces. The two-car garage features two storage areas. Having a walk-in pantry so close to the kitchen helps make meal prepping a breeze. The fireplace adds a cozy vibe to the overall space.

The two secondary bedrooms share a bathroom but each can enjoy their private vanity area. Enjoy total privacy in the primary suite with its luxurious bath, walk-in closet, and linen storage.

Farmhouse Style House Plan with Front Porch Farmhouse Style House Plan with Front Porch Farmhouse Style House Plan with Front Porch - Exterior

Farmhouse Style House Plan with Front Porch Farmhouse Style House Plan with Front Porch - Main Floor Plan

Farmhouse Style House Plan with Front Porch Farmhouse Style House Plan with Front Porch - Upper Floor Plan

Farmhouse Style House Plan with Front Porch Farmhouse Style House Plan with Front Porch - Lower Floor Plan

Rustic and traditional, this farmhouse style house plan displays two functional porches. Take your morning cup of coffee out to the front or back porch and take in the scenes. This house plan is incredibly unique because there are three primary suites! Each suite has its own private bathroom and an impressively sized walk-in closet. The primary suites on the second floor have access to the covered balcony.

Explore Our Collection of 2,400 Sq. Ft. House Plans.

Coupon Codes