BLOG
Our Favorites + Building Knowledge and Materials
Home>Articles

Luxurious House Design Plans

Luxurious House Design Plans
Fall in love with these luxe house plans.

By Devin Uriarte

These luxury house plans provide all the amenities we could possibly need and more. Luxury does not always mean mansion, which is why we have included some mid-size house plans that are equally stunning. Fall in love with the clean lines, open layouts, and indoor-outdoor flow of these luxe contemporary style house plans.

Check out our full collection of luxury house plans.

Contemporary House Plan with Rooftop Deck Contemporary House Plan with Rooftop Deck Contemporary House Plan with Rooftop Deck - Exterior

Contemporary House Plan with Rooftop Deck Contemporary House Plan with Rooftop Deck - Main Floor Plan

Contemporary House Plan with Rooftop Deck Contemporary House Plan with Rooftop Deck - Upper Floor Plan

Contemporary House Plan with Rooftop Deck Contemporary House Plan with Rooftop Deck - Third Floor Plan

Contemporary House Plan with Rooftop Deck Contemporary House Plan with Rooftop Deck - Rooftop Deck Floor Plan

Sleek and clean lines give this contemporary house plan some serious curb appeal. This luxury mansion has three stories and even has a large rooftop deck. The three-car garage sits on the main floor where the laundry and media room are. On the upper floor plan is where most of the entertaining and living will take place. The stunning kitchen comes with a separate prep kitchen and an impressive walk-in pantry. The dining room leads into the great room, where there is access to the first weather deck. You can take the party outdoors to the covered patio with room for a grill.

Most bedrooms sit on the third floor, where you'll also find a second laundry room! Every bedroom has a walk-in closet and easy access to the laundry room. The primary suite has access to its own weather deck, a luxurious bathroom, and a walk-in closet with a storage island.

Luxurious Contemporary House Plan with Large Windows Luxurious Contemporary House Plan with Large Windows Luxurious Contemporary House Plan with Large Windows - Exterior

Luxurious Contemporary House Plan with Large Windows Luxurious Contemporary House Plan with Large Windows - Main Floor Plan

Luxurious Contemporary House Plan with Large Windows Luxurious Contemporary House Plan with Large Windows - Upper Floor Plan

Luxurious Contemporary House Plan with Large Windows Luxurious Contemporary House Plan with Large Windows - Basement Floor Plan

Here’s a luxe house plan with stunning curb appeal. Soaring windows stretch from the great room up to the second floor, bringing in tons of natural light. All bedrooms sit on the upper floor including the luxurious primary suite. Escape and relax in the primary suite that features an impressive walk-in closet, a private balcony, and a separate tub under windows in the bathroom.

There is a three car garage in this hillside house plan and there’s even a private in-law suite. The in-law suite is stocked with a kitchenette, a bathroom with a shower, and a walk-in closet.

Luxury Home Plan with Private Sauna Luxury Home Plan with Private Sauna Luxury Home Plan with Private Sauna - Exterior

Luxury Home Plan with Private Sauna Luxury Home Plan with Private Sauna - Main Floor Plan

Luxury Home Plan with Private Sauna Luxury Home Plan with Private Sauna - Upper Floor Plan

What screams luxury more than having a private sauna in your home? Step inside this contemporary plan and be transported into a relaxing oasis. For an additional touch of luxury, there is a sitting room outside of the private sauna. The impressive two-story great room features a fireplace that creates a cozy atmosphere. The island in the kitchen allows you to entertain guests while preparing meals. Serve up guests at the casual bar top or breakfast nook or elevate your meals in the dining room.

Contemporary House Plan with Screened Porch Contemporary House Plan with Screened Porch Contemporary House Plan with Screened Porch - Exterior

Contemporary House Plan with Screened Porch Contemporary House Plan with Screened Porch - Main Floor Plan

Contemporary House Plan with Screened Porch Contemporary House Plan with Screened Porch - Upper Floor Plan

Contemporary House Plan with Screened Porch Contemporary House Plan with Screened Porch - Basement Floor Plan

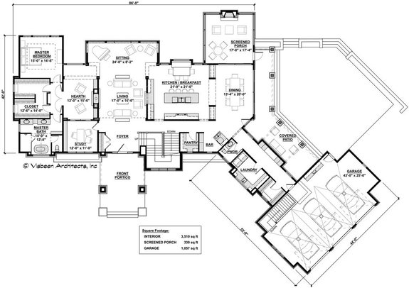
There is no shortage of living space in this 4,983 sq. ft. luxury house plan (not including the incredible lower level!). Elevate your dinners in the formal dining room or gather friends outdoors on the covered patio for a fun party. Through the foyer of this contemporary house plan is the main living room area and a formal sitting room. There is even a hearth outside of the primary suite for an extra touch of luxury. Double doors welcome you into the primary suite where there is an impressive walk-in closet.

The kitchen features an island that can sit four people and there is also a cozy breakfast nook. Cozy vibes continue to the screened porch where a fireplace warms you up on those chilly nights.

Luxe Contemporary Plan with Primary Suites Luxe Contemporary Plan with Primary Suites Luxe Contemporary Plan with Primary Suites - Exterior

Luxe Contemporary Plan with Primary Suites Luxe Contemporary Plan with Primary Suites - Main Floor Plan

Luxe Contemporary Plan with Primary Suites Luxe Contemporary Plan with Primary Suites - Upper Floor Plan

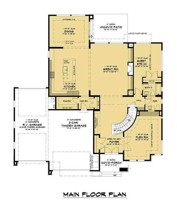
Your guests will feel right at home in their luxurious private suite. This contemporary house plan has not one, but two primary suites. Both suites have impressive walk-in closets and luxe bathrooms. In the homeowner’s suite there is a sitting area that leads to the weather deck. A unique feature of this home plan is the huge garage with space for an RV.

Luxury Contemporary House Design Luxury Contemporary House Design Luxury Contemporary House Design - Exterior

Luxury Contemporary House Design Luxury Contemporary House Design - Main Floor Plan

Luxury Contemporary House Design Luxury Contemporary House Design - Upper Floor Plan

Step inside this five-bedroom luxury home plan with a contemporary design. As you enter the home through the foyer, natural light beams in through the tall windows in the family room. The large windows create a warm and welcoming vibe in the open floor plan. The family room flows into the casual dining area and kitchen. Check out the formal living room.

Enjoy the luxurious bathroom with an enormous walk-in closet in the primary suite. For additional space, there is a bonus bedroom that can be used as a second office space or even a media room to entertain guests.

Single Story Modern Luxury Home Plan Single Story Modern Luxury Home Plan Single Story Modern Luxury Home Plan - Exterior

Single Story Modern Luxury Home Plan Single Story Modern Luxury Home Plan - Main Floor Plan

This ultra-modern house plan is a great option for those looking for a single-story luxury home. All eyes are on the main living area with its doors to the covered patio. The doors create a seamless indoor-outdoor living space perfect for hosting parties and events. What better place to prep for an event than in the kitchen with tons of counter space and a large island? For even more hosting space, slide open the glass doors to the sun terrace in the front of the house.

Unwind in the primary suite that sits on the opposite side of the other rooms. For even more privacy, there is a study next to the primary suite where you can get work done with limited distractions. The two bedrooms on the other side of the home have their own private bathrooms and easy access to the game room.

Contemporary House Plan with Outdoor Living Area Contemporary House Plan with Outdoor Living Area Contemporary House Plan with Outdoor Living Area - Exterior

Contemporary House Plan with Outdoor Living Area Contemporary House Plan with Outdoor Living Area - Main Floor Plan

Contemporary House Plan with Outdoor Living Area Contemporary House Plan with Outdoor Living Area - Upper Floor Plan

This contemporary house plan shows off a gorgeous outdoor living area featuring a barbecue and fridge. The sliding glass doors create a great indoor-outdoor entertaining experience. Prepare meals in the kitchen at the impressive island and serve guests in the formal dining room. In the luxurious primary suite, there is a gorgeous spa-like bathroom and an impressive walk-in closet with an island. The home office is located next to the primary suite for easy access.

There is a guest bedroom on the opposite side of the home just steps away from the mudroom and two-car garage. Upstairs, there are two additional bedrooms and a loft that can be used as a casual living or media room.

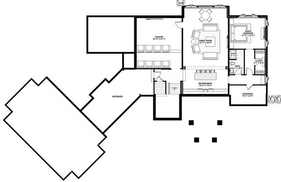
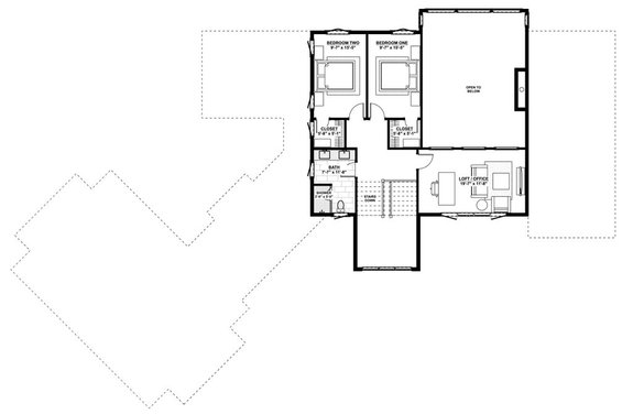
Luxurious Home Plan with Theater Luxurious Home Plan with Theater Luxurious Home Plan with Theater - Exterior

Luxurious Home Plan with Theater Luxurious Home Plan with Theater - Main Floor Plan

Luxurious Home Plan with Theater Luxurious Home Plan with Theater - Upper Floor Plan

Luxurious Home Plan with Theater Luxurious Home Plan with Theater - Lower Floor Plan

This modern mansion showcases some unique features. There is a long hallway leading from the three-car garage to the kitchen and living area and this hallway has a full-sized closet, a laundry room, and a half bath. At the end of the hallway there is the walk-in pantry and a wine bar. The kitchen opens to the dining area where double doors lead outside to the screened porch. Light the fireplace in the screened porch and unwind with a glass of wine.

On the lower level of the home plan, there is a large entertaining area. The family room has its own refreshment bar with a bar top that can seat four people. Next to the family room is a private theater. Nothing screams luxury quite like a private theater in your own home.

Check out our full collection of luxury house plans.

Coupon Codes