By Gabby Torrenti
These modern farmhouse plans are on-trend and totally customizable. Take a look at some of our favorites, featuring smart details, classic fixtures, and impressive curb appeal. No matter where you are geographically, a modern farmhouse is a perfect fit for any neighborhood.
Want to see more? Explore our collection of modern farmhouse plans.
Clean and Classic Farmhouse
Plan 927-1014
This classic plan features exterior gables, a covered entryway, and a convenient open-concept floorplan. The living room and kitchen both feature vaulted ceilings with a wall of sliding doors that leads onto the spacious back deck. The kitchen includes a large island, offering plenty of space to prepare meals or enjoy time with family. Three bedrooms on the main level and two large bonus spaces upstairs make room for visiting guests or a convenient home office. An attic provides lots of additional storage space, without infringing on the home’s three walk-in closets.

Modern Home with Smart Features
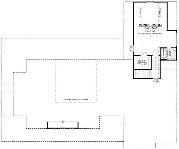
Plan 1070-134
Putting a modern spin on the farmhouse home style, this plan welcomes you home with a convenient two-car garage, leading into a mudroom and attached laundry room. Drop your shoes and bags and head into the expansive great room, which is conveniently attached to the eat-in kitchen. The master bedroom is located on the main floor, separate from the upstairs bedrooms. A large walk-in closet and bathroom with dual sinks make the primary bedroom feel like an escape in your own home. Two additional bedrooms and an added bonus room provide plenty of room for kids or guests to relax in their own space, as well.
Convenient Ranch with Lots of Storage
Plan 1074-39
This one-story ranch provides everything you could possibly need on one floor! This plan welcomes you in with a large covered front porch, leading into a spacious foyer that opens into the expansive great room. Vaulted ceilings throughout the main level make the home feel luxurious. A pantry and mudroom connect to the eat-in kitchen, providing a seamless flow from the two-car garage into the main living space of the home. Four bedrooms, including a separate master suite, lend plenty of space to unwind.

One-Story Farmhouse with Luxe Features
Plan 51-1164
Beyond its impressive curb appeal, this home includes three bedrooms, two and a half bathrooms, and lots of luxurious elements. Past the covered front porch is an expansive living space that leads into an adjoining kitchen and dining room. The main great room features a fireplace and vaulted ceilings, adding to the grandeur of this small but beautiful home. Step out onto the rear porch to enjoy a night with friends or take in a summer sunset.

Luxurious Farmhouse with Modern Elements
Plan 23-2725
This chic design welcomes guests indoors through the sizable foyer and into the home’s impressive kitchen, which features a built-in wine cellar, as well as a large center island. The main floor also includes a great room with vaulted ceilings and the ideal dining room for hosting loved ones. Upstairs, you’ll find a master suite, secluded from the rest of the home’s bedrooms. The master suite also includes a walk-in closet, connected bathroom, and sitting area.

Classic Farmhouse with Lots of Open Space
Plan 430-223
After stepping onto this home’s impressive wrap-around porch, head into the foyer, leading into a luxe great room. The great room leads directly into the home’s expansive kitchen, which is accompanied by a convenient pantry. Just a few steps away is the master suite, located in its own wing of the home. This area includes a private bathroom and easy access to the laundry room. On the opposite side of the home are two more guest bedrooms, each with its own closet and a shared bathroom. Head upstairs to watch a movie or enjoy a game night in the bonus room, which only adds to the home’s versatile space.

Modern Farmhouse with Great Family Spaces
Plan 48-968
This three-bedroom home is just waiting to welcome you inside! Step in from the front porch into the home’s expansive living and dining spaces. From here, head straight out to the rear porch to enjoy summer nights under the stars. The home also features a private master suite with its own bathroom and closet, as well as two additional bedrooms. Optimized for a small family, this plan provides plenty of storage and living space, including a mudroom and garage.

