BLOG
Our Favorites + Building Knowledge and Materials
Home>Articles

Beautiful Beach House Plans

Beautiful Beach House Plans
Relax in style with these beach house plans.

Beautiful Beach House Plans

By Courtney Pittman

Here comes the sun! Get vacation-ready with these beach house plans. They give you relaxed layouts, spacious kitchens, and lots of outdoor living. Here are some of our favorites.

Ready for a getaway? Explore our beach house plans collection here.

Two-Story Beach House Plan Two-Story Beach House Plan Two-Story Beach House Plan - Front Exterior

Two-Story Beach House Plan Two-Story Beach House Plan - Main Floor Plan

Two-Story Beach House Plan Two-Story Beach House Plan - Upper Floor Plan

This two-story beach-style design offers functionality and ease with a modern layout. We love the wide front porch. On the main level, the living room flows into the open dining area, the kitchen, and the rear deck.

The primary suite and a secondary bedroom sit on the right side of the plan. Another bedroom suite and an additional bedroom rest upstairs.

Beach House Plan with Outdoor Kitchen Beach House Plan with Outdoor Kitchen Beach House Plan with Outdoor Kitchen - Front Exterior

Beach House Plan with Outdoor Kitchen Beach House Plan with Outdoor Kitchen - Main Floor Plan

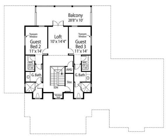
Beach House Plan with Outdoor Kitchen Beach House Plan with Outdoor Kitchen - Upper Floor Plan

Ideal for a coastal location, this beach house plan includes plenty of outdoor living space. Living, kitchen, and porch spaces flow into each other, offering great flexibility on the main floor. Conveniently located on this level, the primary suite makes it easy to age in place and features two walk-in closets.

Near the front, a versatile study could also become a guest suite. Check out the well-organized laundry room (take a look at these clever laundry room ideas from Good Housekeeping). Two additional guest suites, a loft, and a balcony can be found on the second floor.

Small Beach House Plan Small Beach House Plan Small Beach House Plan - Front Exterior

Small Beach House Plan Small Beach House Plan - Main Floor Plan

This small beach house plan lives large with an open layout and a vaulted ceiling. The kitchen’s peninsula counter does double duty as a snack bar. The primary suite gives you two sinks and a walk-in closet.

Enjoy the ocean breeze on the welcoming front porch. Want more outdoor living space? Check out the optional deck.

Contemporary Beach House Plan Contemporary Beach House Plan Contemporary Beach House Plan - Front Exterior

Contemporary Beach House Plan Contemporary Beach House Plan - Main Floor Plan

Contemporary Beach House Plan Contemporary Beach House Plan - Lower Floor Plan

This contemporary design puts the open great room and kitchen at the center of the home. An island adds a place for casual meals and even more counter space in the kitchen. A wet bar in the great room is a fun detail.

Highlights of the primary suite include two walk-in closets, private access to the rear patio, and an extra-big shower. Work from home in the flexible study near the foyer. You’ll find plenty of storage on the lower level.

Beach House Plan with Farmhouse Details Beach House Plan with Farmhouse Details Beach House Plan with Farmhouse Details - Front Exterior

Beach House Plan with Farmhouse Details Beach House Plan with Farmhouse Details - Main Floor Plan

Beach House Plan with Farmhouse Details Beach House Plan with Farmhouse Details - Upper Floor Plan

Looking for a plan with farmhouse flair? Here you go! This beach design gives you country curb appeal with a wide front porch and a metal roof. Inside, the great room opens to the lanai (which features an outdoor kitchen) via sliding glass doors.

The open kitchen includes lots of counter space, an island, and a walk-in pantry. The primary suite rests at the back of the plan and gives you plenty of privacy and a spa-like bathroom. A versatile guest/media room completes the second level.

Beach House Plan with Guest Quarters Beach House Plan with Guest Quarters Beach House Plan with Guest Quarters - Front Exterior

Beach House Plan with Guest Quarters Beach House Plan with Guest Quarters - Main Floor Plan

Beach House Plan with Guest Quarters Beach House Plan with Guest Quarters - Upper Floor Plan

Here’s a stylish beach house plan (the Onaway from Visbeen Architects) with country details (like board-and-batten siding and a gable roof). A deep covered deck allows for easy indoor/outdoor living. In the kitchen, a big island features a pub-height table at the end for a relaxed vibe. The spacious butler’s pantry is sure to come in handy.

Upstairs, the primary suite impresses with dual sinks and a generous tub. The laundry room is conveniently located nearby. An additional bedroom and a home office are also on this level. Guest quarters can be finished to include a bedroom, a bunk room, and a full bath (check out these cool bunk rooms from The Spruce). An optional finished basement gives you even more room to expand.

Beach House Plan with Loft

Beach House Plan with Loft Beach House Plan with Loft - Front Exterior

Beach House Plan with Loft Beach House Plan with Loft - Main Floor Plan

Beach House Plan with Loft Beach House Plan with Loft – Upper Floor Plan

This plan takes full advantage of views with two levels of outdoor living. The kitchen’s snack bar adds casual seating within sight of the great room and dining area. Need more space? A flexible study next to the foyer can easily become a guest room.

Located on the second floor, the laundry room makes it easy to throw in a load. The primary suite (with private access to the deck), two secondary bedrooms, and a loft round out this level.

Beach House Plan with Elevator Beach House Plan with Elevator - Front Exterior

Beach House Plan with Elevator Beach House Plan with Elevator - Garage Floor Plan

Beach House Plan with Elevator Beach House Plan with Elevator - Main Floor Plan

Beach House Plan with Elevator Beach House Plan with Elevator - Upper Floor Plan

Bright and breezy, this three-story beach house plan comes with lots of extras. For example, check out the handy mudroom and the garage/storage space on the first level. Upstairs, the kitchen includes an island and plenty of room for meal prep. Enjoy a relaxing soak in the primary suite’s tub.

An additional bedroom suite, a secondary bedroom, and a gathering space complete the third level. An elevator makes getting around accessible.

Modest Beach House Plan Modest Beach House Plan Modest Beach House Plan - Front Exterior

Modest Beach House Plan Modest Beach House Plan - Main Floor Plan

Here’s a great use of 959 square feet. The layout is modern and simple with the island kitchen opening to the living room and dining area. Impressive details include a clever mudroom, a generous deck, and a covered front porch.

Discover more beach house plans here.

Beautiful Beach House Plans

Coupon Codes