BLOG
Our Favorites + Building Knowledge and Materials
Home>Articles

4 Stunning Pool House with Bar and Bathroom Plans

4 Stunning Pool House with Bar and Bathroom Plans
Thinking about building a pool house? Check these out.

By Aurora Zeledon

Summer is still in full swing, and that means pool weather. But what if you want a place for your guests to change, use the bathroom, and grab a drink without trekking water into the main house?

These pool house with bar and bathroom plans provide exactly that. These simple backyard structures give you storage, entertaining space, and much more.

Check out more pool house plans here.

Pool House Plan with Fireplace and Storage Pool House Plan with Fireplace and Storage Pool House Plan with Fireplace and Storage - Front Exterior

Pool House Plan with Fireplace and Storage Pool House Plan with Fireplace and Storage - Main Floor

Pool house plans aren't just for summer. When the weather cools down, you can gather around the fireplace that warms up the vaulted lanai of this versatile design. A bar/grill invites long, leisurely afternoons of cooking and relaxing. Inside, you'll find a powder bath and tons of storage that's accessed via a roll-up door. Clever!

See more images, information, and the floor plans.

Simple Pool House Plan with a Shower in the Bathroom Simple Pool House Plan with a Shower in the Bathroom Simple Pool House Plan with a Shower in the Bathroom - Front Exterior

Simple Pool House Plan with a Shower in the Bathroom Simple Pool House Plan with a Shower in the Bathroom - Main Floor

Want something a bit more basic? This elegant structure presents you with a bar (including a sink), covered space for lounging, and a bathroom that boasts a shower. That makes it easy for guests to rinse off before and after jumping in the pool. We love the graceful columns that add a touch of Classical style.

See more images, information, and the floor plans.

Pool House Plan with Bar Seating Pool House Plan with Bar Seating Pool House Plan with Bar Seating - Front Exterior

Pool House Plan with Bar Seating Pool House Plan with Bar Seating - Main Floor

Although this pool house design measures just 20 x 22 feet, it packs in flexibility. Check out the bar with space to seat four people. Mount a television as shown in the rendering to enjoy game time while hanging out. On chilly nights, move the party to the fireplace zone. A bathroom with a shower adds convenience.

See more images, information, and the floor plans.

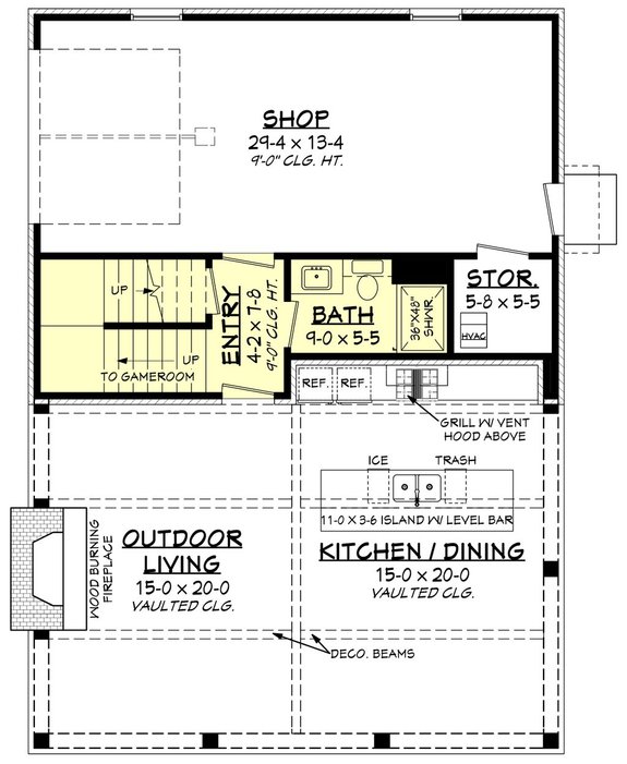
Pool House with Workshop and Game Room Pool House with Workshop and Game Room Pool House with Workshop and Game Room - Front Exterior

Pool House with Workshop and Game Room Pool House with Workshop and Game Room - Main Floor

Pool House with Workshop and Game Room Pool House with Workshop and Game Room - Second Floor

This charming pool house plan isn't just for play - there's a workshop in back that gives you room for projects or simply extra storage. Of course, play is the point of a pool house, and this one includes a game room upstairs. The covered outdoor living area showcases a spacious island bar.

See more images, information, and the floor plans.

Discover more pool house plans here.

Coupon Codes