Building on a sloping lot? Consider a house plan with a walkout basement. These home designs maximize living space and create seamless indoor/outdoor flow on the lower level. Not only are they convenient, but they are also very practical. Take a look at these amazing walkout basement house plans from Donald A. Gardner Architects.
Explore our collection of walkout basement house plans here
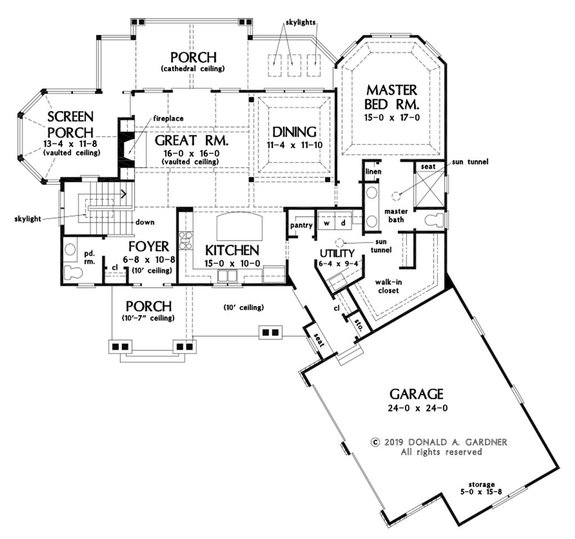
Craftsman Style Home Design with Walkout Basement
Plan 929-1103
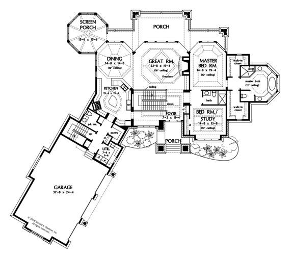
This Craftsman style home gives you a walkout basement and lots of space. You’ll enter the main level through the foyer and find yourself in the vaulted great room (with built-in fireplace) that offers access to both the rear and screened porches. The great room flows into the dining area and kitchen, equipped with a large island and a walk-in pantry.
The main-level master suite features an impressive walk-in closet, a bathroom with two sinks, and a seated shower. Space for the washer/dryer is conveniently nearby.
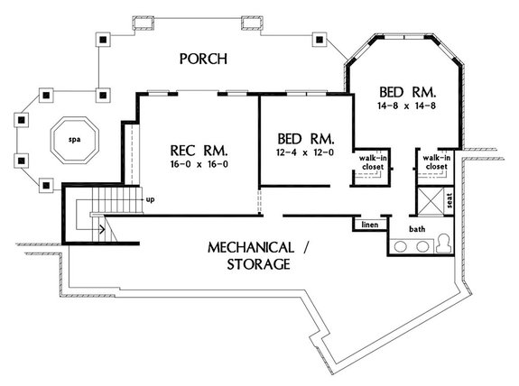
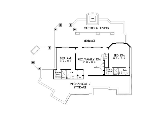
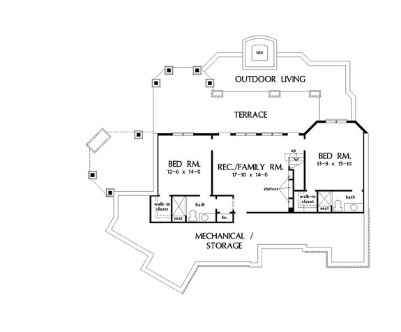
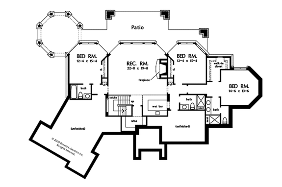
The lower level includes two bedrooms (both with walk-in closets) and a full bathroom with two sinks. The spacious rec room opens out onto a porch and and a spa area.
Check out these small walk-in closet ideas for bedrooms from The Spruce
Spacious Craftsman Style with Lots of Outdoor Space
Plan 929-1072
If it’s space you need (whether inside or outside) this plan could offer you just what you’re looking for. Inside you’ll pass by a space ideal for a home office (or additional bedroom) and find yourself in the immense great room. The well-equipped kitchen gives you a large island and a walk-in pantry. The rear porch and screened porch can be accessed through the great room.
The main-level master suite features a private sitting room (with vaulted ceiling), two walk-in closets, and a luxurious bathroom. The lower level includes two bedrooms with walk-in closets and private bathrooms.
European Style House Plan by Don Gardner
Plan 929-1065
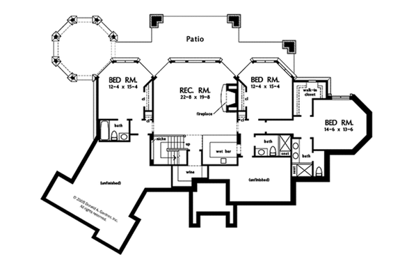
If you’re looking to build the home of your dreams with a walkout basement, this home plan by Don Gardner might be just what you need. Pass through the foyer and you’ll land in the expansive great room that provides access to the rear covered porch. This flows into the modern kitchen with a large island, walk-in pantry, separate dining space, and access to the screened porch. The first-level master suite includes two walk-in closets, a bathroom with dual sinks, a shower, and a separate soaking tub.
The lower level features two bedrooms with walk-in closets and private baths. It also gives you a welcoming rec/family room that offers easy walkout access to the terrace and additional outdoor living space.
Take a look at these inspiring modern kitchen ideas from Elle Decor
Elegant Don Gardner House Design
Plan 929-929
This attractive Don Gardner home plan has definite curb appeal, and lots of eye-catching details. As you walk through the foyer, you’ll find a study/home office on one side, and a formal dining area on the other. From there, it’s easy to flow into the spacious great room (with cathedral ceiling). The open kitchen includes a large island, a breakfast nook, and easy access to the screened porch.
The main-level master suite includes a private sitting area, dual walk-in closets, a bathroom with two sinks and so much more.
The lower level features two bedrooms with private bathrooms and walk-in closets. It also includes a large rec room with a fireplace and access to the lower-level patio.
Stunning Don Gardner House Plan
Plan 929-937
This home design is packed with all kinds of comfortable amenities and attention to detail, sure to make it worth a second look! As you enter through the striking foyer, you’ll immediately encounter the great room that includes an eye-catching central fireplace. This space opens up into the kitchen, which is equipped with an island, a nearby dining area (with a cathedral ceiling), and access to the screened porch. This wing of the main level also contains a bathroom and space for a home office.
The opposite wing includes the master suite, which features dual walk-in closets and porch access.
The lower level offers two bedroom suites. The spacious rec room provides walkout access to the porch.
Discover these screened porch ideas from Bob Vila
Traditional Style Home Design
Plan 929-983
If you’re looking for a house plan that offers plenty of opportunities to relax and spend time outdoors, this could be just what you’re looking for. Walk through the welcoming foyer and you’ll be instantly drawn to the open great room (with cathedral ceiling) that effortlessly flows into the dining space and the kitchen. This room also offers access to the rear porch (with built-in skylights). Check out the big island in the kitchen.
The master suite is towards the rear of the plan and features two walk-in closets and a spa-like bathroom. Additionally this level includes two bedrooms, one bathroom, and one powder room.
On the lower level you'll find one bedroom with a walk-in closet, a bathroom, and a rec room that provides easy access to the porch and patio.
Attractive Craftsman Style House Plan
Plan 929-446
There’s so much to like about this Don Gardner design! Inside you’ll find yourself in the open great room (with cathedral ceiling) that provides access to the outdoor deck. The nearby kitchen includes a large island, convenient pantry, breakfast nook, and space for formal dining. One side of the main level includes two bedrooms and one full bathroom. The opposite side features the master suite, which gives you a generous walk-in closet, two sinks, a soaking tub, and a shower.
On the lower level you’ll find an additional bedroom suite (with a walk-in closet). The spacious rec room gives you access to the outdoor patio.
European Style Don Gardner Home Design with Curb Appeal
Plan 929-896
This impressive plan is full of smart amenities. After you enter through the welcoming porch and foyer, you’ll be drawn to the jaw-dropping great room, which features a large fireplace, bay windows that provide lots of natural light, and access to the rear porch. The luxurious master suite features two walk-in closets and a spectacular bath. Work from home? There is space for a home office/den just across the hall.
The lower level includes three additional bedrooms (two with private bathrooms), a large rec room, and more.













