Don't lose your saved plans!  Create an account to access your saves whenever you want. See our Terms & Conditions and Privacy Policy.
10% OFF THIS PLAN TODAY

PLAN 126-236

Photographs may show modified designs.

Save
  • Jump to:
  • All (29)
  • Floor plans (6)
Questions? Get Personalized Help

Key Specs


Plan Sq Ft

988
sq ft

Plan Bedrooms

2
Beds

Plan Bathrooms

2
Baths

Plan Floors

1
Floors

Plan Garages

0
Garages

Select Plan Set Options

What's included?
$180.00
Additional Construction Sets$49.50/each

Additional hard copies of the plan (can be ordered at the time of purchase and within 90 days of the purchase date).

$148.50
$35.10
$112.50
$85.50
Subtotal
NOW $1075.50
You save $119.50 (10% savings)
Sale ends soon!
Best Price Guaranteed*

Also order by phone: 1-800-528-8070
Questions about building your home?
Get Personalized Help
We do our best to get back to you within 24 - 48 business hours.
Need an answer faster? Call now...
Phone: 1-800-528-8070
Hours:
Ready for Your Call 7 Days a Week
Every Day 7 am - 8:30 pm Eastern

See our Terms & Conditions and Privacy Policy.

 
Wow!
Cost to Build Reports
Only $1.99 Right Now
Use Code CTB2026
Our Cost to Build Report gives you a personalized estimate for building your home, based on your location, plan, and materials.
Get Cost To Build Report
Limit one per order.

Residential Construction Guide

Learn Building Basics

This downloadable, 26-page guide is full of diagrams and details about plumbing, electrical, and more.

PLAN 126-236

This plan can be customized

Tell us about your desired changes so we can prepare an estimate for the design service. Click the button to submit your request for pricing, or call 1-800-528-8070 for assistance.

Modify This Plan

Plan Description


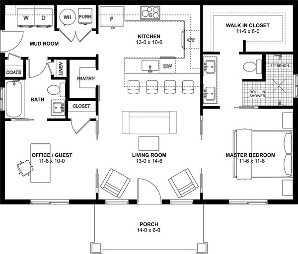
This compact plan features a fully equipped kitchen with a walk-in pantry and eating bar that comfortably seats up to four. The spacious floor plan accommodates full sized furniture and appliances. 9' ceilings and pocket doors throughout the home create a spacious and open feeling. The pocket doors leading into the main suite and guest room can either be closed for privacy or can provide a large 5' wide opening. The modern walk-in shower in the main suite provides both easy access and eliminates the maintenance required by glass doors. Measuring over 6' from end to end, the shower accommodates dual shower heads. The main suite also includes a dual vanity and a large walk-in closet. This design also features a covered front porch, mudroom/laundry room and a full bath for guests.

Floor Plans


Floor Plan - Main Floor

Reverse
Save
House Plan Design - Floor Plan - Main Floor for Farmhouse House Plan #126-236 - 2 bed, 2 bath
House Plan Design - Floor Plan - Main Floor for Farmhouse House Plan #126-236 - 2 bed, 2 bath

Floor Plan - Lower Floor

Reverse
Save
House Plan Design - Floor Plan - Lower Floor for Farmhouse House Plan #126-236 - 2 bed, 2 bath
House Plan Design - Floor Plan - Lower Floor for Farmhouse House Plan #126-236 - 2 bed, 2 bath

Floor Plan - Lower Floor

Reverse
Save
House Plan Design - Floor Plan - Lower Floor 1 for Farmhouse House Plan #126-236 - 2 bed, 2 bath
House Plan Design - Floor Plan - Lower Floor 1 for Farmhouse House Plan #126-236 - 2 bed, 2 bath

Floor Plan - Other Floor

Reverse
Save
House Plan Design - Floor Plan - Other Floor for Farmhouse House Plan #126-236 - 2 bed, 2 bath
House Plan Design - Floor Plan - Other Floor for Farmhouse House Plan #126-236 - 2 bed, 2 bath

Floor Plan - Other Floor

Reverse
Save
House Plan Design - Floor Plan - Other Floor 1 for Farmhouse House Plan #126-236 - 2 bed, 2 bath
House Plan Design - Floor Plan - Other Floor 1 for Farmhouse House Plan #126-236 - 2 bed, 2 bath

Floor Plan - Other Floor

Reverse
Save
House Plan Design - Floor Plan - Other Floor 2 for Farmhouse House Plan #126-236 - 2 bed, 2 bath
House Plan Design - Floor Plan - Other Floor 2 for Farmhouse House Plan #126-236 - 2 bed, 2 bath

Full Specs & Features


Dimension

Depth: 32'

Height: 19' 5"

Width: 38'

Area

Main Floor: 988 sq/ft

Patios: 0 sq/ft

Porch: 84 sq/ft

* Total Square Footage typically only includes conditioned space and does not include garages, porches, bonus rooms, or decks.

Ceiling

Main Ceiling: 9'

Roof

Primary Pitch: 8/12

Roof Framing: Truss

Roof Load: 55

Roof Type: Asphalt Shingle

Secondary Pitch: 8/12

Exterior Wall Framing

Exterior Wall Finish: Siding

Framing: 2x6 or 2x4

Insulation: Batt

Bedroom Features

Guest Suite

Main Floor Bedrooms

Main Floor Master Bedroom

Split Bedrooms

Walk In Closet

Kitchen Features

Eating Bar

Walk In Pantry Cabinet Pantry

Additional Room Features

Den Office Study Computer

Great Room Living Room

Main Floor Laundry

Mud Room

Lot Characteristics

Suited For View Lot

Zero Lot Lines

Outdoor Spaces

Covered Front Porch

More

Economical To Build

Empty Nester

Suited For Vacation Home

Wheelchair Adaptable

Energy Efficient Features

Energy Efficient Design

What's Included


Plans are typically drawn to ¼” scale and include:
  • Cover Sheet: Designer contact info, plan name/number, legal disclaimers.
  • Foundation Plan(s): This page shows all necessary notations and dimensions including footings, support columns, walls, and excavated/unexcavated areas.
  • Floor Plan(s): Detailed plans for each level showing room dimensions, wall partitions, windows and doors, fixture locations, and ceiling treatments.
  • Exterior Elevations: Views of the home from all four sides showing exterior materials, roof slope, ridge heights, siding and trim notes.
  • Overhead Roof Plan(s): A view of the home from above showing roof pitch, peaks, valleys, and other details.
  • Cross Section(s): A slice of the home from roof to foundation, showing relationships between floors, roof, and foundation.
  • Building Section(s): Shows the relationship between different levels, wall heights, and the overall building volume. May include details like foundation, framing, insulation, and finishes.
  • Electrical Plan(s): Including lighting fixture placement
  • Construction Notes and Detail(s): Shows basic parts and assemblies recommended for the home so the builder can see how things come together.
» See important information before purchasing.
Questions? Call 1-800-528-8070

Plan Set

PDF Set:
$1075.50
PDF plan sets are best for fast electronic delivery and inexpensive local printing.
5 Copy and PDF Set:
$1300.50
5 printed plan sets mailed to you plus PDF plan sets are best for fast electronic delivery and inexpensive local printing.
CAD Set:
$1525.50
For use by design professionals to make substantial changes to your house plan and inexpensive local printing.

Foundation

Crawlspace:
$0.00
Ideal for semi-sloped or level lot, home can be built off of grade, typically 18” - 48”.
Monolithic Slab:
$0.00
A single concrete pour with thicker portions that replace footers under load bearing walls and all perimeter edges.
Slab:
$0.00
Ideal for level lot, single layer concrete poured directly on grade.
Stem Wall Foundation:
$0.00
Joins the foundation with a house’s vertical walls; often part of stem-wall slab foundation systems, which are constructed like a crawlspace foundation but filled in and compacted, then the slab is poured.
Basement:
$225.00
Ideal for level lot, lower level of home partially or fully underground.
Walk Out Basement:
$225.00
Ideal for a sloping lot, lower level with outdoor access.

Framing

Wood 2x4:
$0.00
Wood 2x4 Exterior Walls
Wood 2x6:
$0.00
Wood 2x6 Exterior Walls

Additional Options

Right-Reading Reverse:
$180.00
Choose this option to reverse your plans and to have the text and dimensions readable.
Additional Construction Sets:
$49.50
Additional hard copies of the plan (can be ordered at the time of purchase and within 90 days of the purchase date).
Audio Video Design:
$148.50
Receive an overlay sheet with suggested placement of audio and video components.
Construction Guide:
$35.10
Educate yourself about basic building ideas with these four detailed diagrams that discuss electrical, plumbing, mechanical, and structural topics.
Material List:
$112.50
A spreadsheet of building supplies needed to construct the infrastructure of your new house. Please note materials lists will not reflect add-ons such as alternate foundation and framing options.
Vaulted Ceiling:
$85.50
Vaulted Ceiling - Living Room/Kitchen

* Alternate Foundations may take time to prepare.

** Options with a fee may take time to prepare. Please call to confirm.

Unless you buy an “unlimited” plan set or a multi-use license you may only build one home from a set of plans. Please call to verify if you intend to build more than once. Plan licenses are non-transferable and cannot be resold.