BLOG
Our Favorites + Building Knowledge and Materials
Home>Articles

Versatile 3 Bedroom House Plans with Bonus Room Above Garage

Versatile 3 Bedroom House Plans with Bonus Room Above Garage
Looking for a versatile house plan?

Versatile 3 Bedroom House Plans with Bonus Room Above Garage

By Devin Uriarte

These three-bedroom house plans are enhanced by the bonus rooms above their garages. Explore their unique layouts that blend practicality with versatility. Whether you're seeking extra space for a growing family, a home office, or a cozy retreat, these designs provide endless possibilities.

Check out more three-bedroom house plans with garages.

Views from Every Room Views from Every Room Views from Every Room - Front Exterior

Views from Every Room Views from Every Room - Main Floor Plan

Views from Every Room Views from Every Room - Upper Floor Plan

This three-bedroom farmhouse really does offer a view from every room, even the bonus room above the three-car garage. The elegant primary suite sits on the main floor and features a lovely sitting area where owners can relax. Both guest bedrooms upstairs have their own private bathrooms and access to the spacious loft and upper balcony. This L-shaped plan has a three-car garage that opens to the courtyard and has an optional bonus room on the second level.

Classic 3 Bedroom Farmhouse Plan Classic 3 Bedroom Farmhouse Plan Classic 3 Bedroom Farmhouse Plan - Front Exterior

Classic 3 Bedroom Farmhouse Plan Classic 3 Bedroom Farmhouse Plan - Main Floor Plan

Classic 3 Bedroom Farmhouse Plan Classic 3 Bedroom Farmhouse Plan - Bonus Room Plan

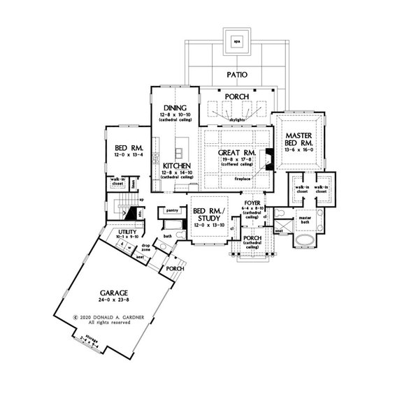
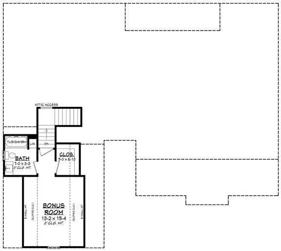
Get farmhouse curb appeal with a modern interior. The front porch welcomes you into the great open living space with an island kitchen at the back. Two out of the three bedrooms sit at one end of the home to give homeowners their privacy. The primary suite has a full bathroom and a large walk-in closet. Particular design details we can appreciate are the lockers and half bath on the way in from the two-car garage. This classic three-bedroom house plan is a single story but does have an optional bonus room above the garage. This bonus room features a private bathroom and walk-in closet.

Craftsman Farmhouse Plan with Spacious Bonus Room Craftsman Farmhouse Plan with Spacious Bonus Room Craftsman Farmhouse Plan with Spacious Bonus Room - Front Exterior

Craftsman Farmhouse Plan with Spacious Bonus Room Craftsman Farmhouse Plan with Spacious Bonus Room - Main Floor Plan

Craftsman Farmhouse Plan with Spacious Bonus Room Craftsman Farmhouse Plan with Spacious Bonus Room - Bonus Room Plan

If you’re going to add more square footage to your house plan, wouldn’t you want it to be spacious? Above the garage of this three-bedroom farmhouse is a bonus room with skylights and access to the attic. This space would be large enough for a fun media room, hobby space, or quiet home office. On the main level, there are two guest bedrooms and an elegant primary suite along with a sizeable porch.

Charming House Plan Charming House Plan Charming House Plan - Front Exterior

Charming House Plan Charming House Plan - Main Floor Plan

Charming House Plan Charming House Plan - Bonus Room Plan

Talk about charm! This three-bedroom house plan has an adorable front porch. Upon entering the home there is an office through the foyer for homeowners who work from home. The living space is quite impressive as each area flows seamlessly to the next. On the first level is the elegant primary suite with two walk-in closets, a full bathroom, and a tray ceiling. Upstairs there are two guest bedrooms and a bonus room. The bonus room sits above the two-car garage and does include a window for some natural light.

Elegant Curb Appeal Elegant Curb Appeal Elegant Curb Appeal - Front Exterior

Elegant Curb Appeal Elegant Curb Appeal - Main Floor Plan

Elegant Curb Appeal Elegant Curb Appeal - Second Floor Plan

Board-and-batten siding, stone, and a gabled roofline are thoughtful details that give this house plan so much curb appeal. What instantly catches our eye are the long windows. One of these windows sits above the two-car garage and resides in the bonus room. This bonus room also has a vaulted ceiling like the two guest bedrooms on the second floor. The third bedroom is the primary suite, and it features a private bathroom, walk-in closet, and sliding glass doors. These doors open to the covered living space in the backyard.

House Plan with Side Garage House Plan with Side Garage House Plan with Side Garage - Front Exterior

House Plan with Side Garage House Plan with Side Garage - Main Floor Plan

House Plan with Side Garage House Plan with Side Garage - Upper Floor Plan

Looking at this house plan straight on, you’d never guess there was a three-car garage with a bonus room above it. Because the garage opens to the side, this plan has enhanced curb appeal. Through the charming front porch is a foyer that leads you to the open living space. At one end of the home are the two guest bedrooms, each with its own walk-in closet. The third bedroom is the primary suite and owners will love the privacy it offers. Owners will also love the amenities including a massive walk-in closet, a private bathroom, and proximity to the laundry room.

Welcoming and Charming Welcoming and Charming Welcoming and Charming - Front Exterior

Welcoming and Charming Welcoming and Charming - Main Floor Plan

Welcoming and Charming Welcoming and Charming - Upper Floor Plan

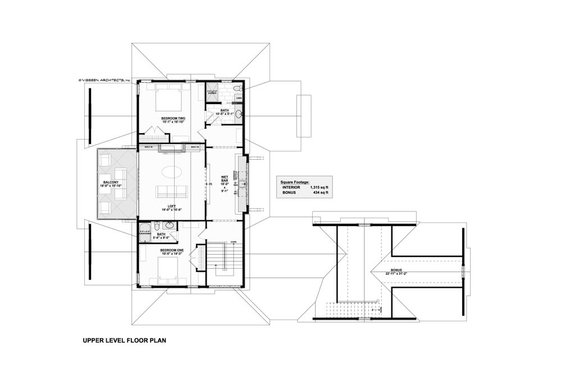
This three-bedroom house plan has a welcoming front porch that exudes farmhouse charm. In addition to the three bedrooms is a bonus room that sits above the two-car garage. The living space on the main floor would be great for hosting with an island in the kitchen, a dinette with a nine-foot ceiling, and a wine bar. Also on the main floor is the primary suite, which includes a lovely bathroom, a walk-in closet, and views of the yard. The two guest bedrooms are upstairs along with a cozy loft.

Perfect Place to Host Perfect Place to Host Perfect Place to Host - Front Exterior

Perfect Place to Host Perfect Place to Host - Main Floor Plan

Perfect Place to Host Perfect Place to Host - Upper Floor Plan

The first floor of this house plan is dedicated to hosting, with its many living spaces. There is a den at the front of the house with elegant double doors for more formal events. The main living space has an open concept where the living and dining room flow seamlessly into the kitchen. A set of French doors opens to the back deck, creating great indoor-outdoor flow. Upstairs is where the three bedrooms are located plus the optional bonus room. The bonus room is quite spacious and is directly above the two-car garage.

See more three-bedroom house plan with garages.

Versatile 3 Bedroom House Plans with Bonus Room Above Garage

Coupon Codes