BLOG
Our Favorites + Building Knowledge and Materials
Home>Articles

Modern Duplex House Plans

Modern Duplex House Plans
Explore all these modern duplex house plans.

By Devin Uriarte

Duplex homes are a great option for those looking to use the other side as a rental property, a guest house, or an in-law space. These modern duplex house plans are incredibly functional and provide great natural light, modern open layouts, and thoughtful amenities. There are many benefits of duplex house plans, so let’s explore some of our favorites.

Explore all of our favorite duplex house plans.

Duplex with Curb Appeal Duplex with Curb Appeal Duplex with Curb Appeal - Exterior

Duplex with Curb Appeal Duplex with Curb Appeal - Main Floor Plan

Duplex with Curb Appeal Duplex with Curb Appeal - Lower Floor Plan

This modern duplex house plan is just as luxurious on the inside as it is on the outside. Stepping inside the left unit, you’ll find yourself in the kitchen, which features an impressive island that seats four people (the right unit showcases a similar but slightly different layout with the kitchen island seating three). The kitchen seamlessly flows into the dining area and the living room. There is space on the lower level of this duplex for a media area and more. The two bedrooms offer closets with built-in storage and share a full-size bathroom.

Clean and Modern Duplex Plan Clean and Modern Duplex Plan Clean and Modern Duplex Plan - Exterior

Clean and Modern Duplex Plan Clean and Modern Duplex Plan - Main Floor Plan

Clean and Modern Duplex Plan Clean and Modern Duplex Plan - Upper Floor Plan

Each unit in this modern duplex house plan features 1,380 square feet with three bedrooms and one-and-a-half bathrooms. The open concept living area on the main floor is the perfect setting for hosting guests and the kitchen island adds another element to entertain plus prep space.

All the bedrooms are on the second floor of the home. The primary bedroom offers an impressive walk-in closet, and the two other rooms also have closets. A full-size bathroom is shared amongst the bedrooms and features a relaxing tub and more.

Contemporary Duplex with Large Garage Contemporary Duplex with Large Garage Contemporary Duplex with Large Garage - Exterior

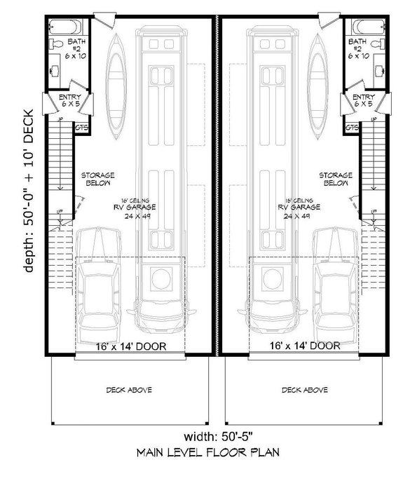
Contemporary Duplex with Large Garage Contemporary Duplex with Large Garage - Main Floor Plan

Contemporary Duplex with Large Garage Contemporary Duplex with Large Garage - Lower Floor Plan

This contemporary duplex house plan features two units that sit above a huge garage with space for a recreational vehicle, storage, and even a half bathroom. The first unit (Unit A) has an additional bedroom with a walk-in closet. Both units have open layouts where the kitchen seamlessly flows into the living room.

Duplex with Drive Under Garage Duplex with Drive Under Garage Duplex with Drive Under Garage - Exterior

Duplex with Drive Under Garage Duplex with Drive Under Garage - Main Floor Plan

Duplex with Drive Under Garage Duplex with Drive Under Garage - Upper Floor Plan

Duplex with Drive Under Garage Duplex with Drive Under Garage - Lower Floor Plan

If you’re looking for a rental property, consider this two-story modern house plan for your next build. This modern duplex features mirrored luxury floor layouts. Each space is equipped with a single car garage with plenty of storage space. The main floor offers an open layout from the kitchen into the living room for optimal entertaining. Sliding glass doors provide indoor-outdoor flow. Also on the main floor plan is a guest room with a bathroom.

Upstairs there are two primary suites. There are two walk-in closets in the first primary suite and dual sinks in the bathroom. The second primary suite has a walk-in closet and private bathroom.

Duplex House Plan with Large Garage Duplex House Plan with Large Garage Duplex House Plan with Large Garage - Exterior

Duplex House Plan with Large Garage Duplex House Plan with Large Garage - Main Floor Plan

Duplex House Plan with Large Garage Duplex House Plan with Large Garage - Upper Floor Plan

Need additional space in the garage for recreational vehicles and cars? This modern duplex features a large garage with 16-foot ceilings. The garage can accommodate a recreational vehicle, a car, and more. As you make your way upstairs to the main living area, you will find a full bathroom off the garage. The large windows and French doors allow for lots of natural light to stream into the open concept living area. Take a seat outside on the balcony and enjoy the views.

An L-shaped kitchen makes the space feel more open and the island is great for entertaining from the kitchen into the living room. Heading down the hallway, you will pass the utility closet and the bathroom. Farther down the hall are the three comfortably sized bedrooms, each featuring a closet.

Modern Duplex with Lots of Windows Modern Duplex with Lots of Windows Modern Duplex with Lots of Windows - Exterior

Modern Duplex with Lots of Windows Modern Duplex with Lots of Windows - Main Floor Plan

Modern Duplex with Lots of Windows Modern Duplex with Lots of Windows - Lower Floor Plan

The units in this modern duplex house plan feature mirrored floor plans. Inside, the living room is filled with natural sunlight coming from the abundant windows. The kitchen features an eating bar and a pantry for additional storage. Take full advantage of those warm days by opening the doors to the barbecue patio. The primary suite sits on the main floor and has a private bathroom with dual sinks and a walk-in closet. Two additional bedrooms are on the main floor and share a full bathroom. On the lower floor, there is a two-car garage with a utility closet.

Modern Two-Story House Plan Modern Two-Story House Plan Modern Two-Story House Plan - Exterior

Modern Two-Story House Plan Modern Two-Story House Plan - Main Floor Plan

Modern Two-Story House Plan Modern Two-Story House Plan - Finished Basement Level

If you have grown kids or active in laws, this house plan is a great option. The open layout of the main floor creates a unique space for entertaining guests. Serve up your guests a fantastic home-cooked meal at the island. The primary bedroom sits on the main floor with a bathroom nearby. Downstairs in the finished basement are two additional bedrooms that share a bathroom. The right unit also boasts a garage.

Contemporary Duplex Contemporary Duplex Contemporary Duplex - Exterior

Contemporary Duplex Contemporary Duplex - Main Floor Plan

Contemporary Duplex Contemporary Duplex - Upper Floor Plan

This modern duplex house plan features two units with mirrored floor plans. Enjoy the convenience of having a private one-car garage that accesses the home. If you are entering the home through the front door, a coat closet is within reach. Down the hall you will pass a powder room before entering the main living space with a U-shaped kitchen.

The primary suite plus two additional bedrooms will be on the second floor. A bathroom is shared between the two bedrooms and the laundry room is easy to reach. The primary suite has a full-size bathroom and a walk-in closet.

Modern Duplex with Porches Modern Duplex with Porches Modern Duplex with Porches - Exterior

Modern Duplex with Porches Modern Duplex with Porches - Main Floor Plan

Modern Duplex with Porches Modern Duplex with Porches - Upper Floor Plan

The contemporary design of this duplex is prominent on the outside as well as the inside. The kitchen island helps unite the gathering spaces in each unit for a cozier and inviting vibe. Continue that cozy feeling outside on one of the porches and unwind after a long day. On the main level, there is access to a private one-car garage and additional storage.

Upstairs, you'll find the primary suite and two additional bedrooms. The primary suite has a walk-in closet and a private bathroom.

Explore all of our favorite duplex house plans.

Coupon Codes