BLOG
Our Favorites + Building Knowledge and Materials
Home>Articles

Low-Budget Simple Two-Story House Design Plans

Low-Budget Simple Two-Story House Design Plans
Check out these simple and low-budget house plans.

By Devin Uriarte

When we discuss house plans that are low budget, we're focusing on simple footprints and modest square footages. (Of course, low budget is subjective, and pricey finishes can drive up your budget.) Most of these two-story house plans have open living spaces and kitchens, which help the homes feel more comfortable and spacious.

Browse more simple two-story house plans.

Two-Story Hillside Plan Two-Story Hillside Plan Two-Story Hillside Plan - Front Exterior

Two-Story Hillside Plan Two-Story Hillside Plan - Main Floor

Two-Story Hillside Plan Two-Story Hillside Plan - Upper Floor

Take in the views from this two-story hillside house plan. The simple floor plan and layout allows for the views to be enjoyed from both levels. On the main floor, owners can enjoy privacy in the primary bedroom, which has easy access to the covered balcony. The flex space on the main floor gets lots of natural light from the sliding glass door. Upstairs is where owners can entertain family and friends. The L-shaped kitchen opens to the vaulted living room and breakfast nook to keep the conversation going. Create a seamless indoor-outdoor flow by sliding open the glass door to the balcony and allow guests to enjoy the property’s views.

Drive-Up Contemporary House Plan Drive-Up Contemporary House Plan Drive-Up Contemporary House Plan - Front Exterior

Drive-Up Contemporary House Plan Drive-Up Contemporary House Plan - Main Floor

Drive-Up Contemporary House Plan Drive-Up Contemporary House Plan - Upper Floor

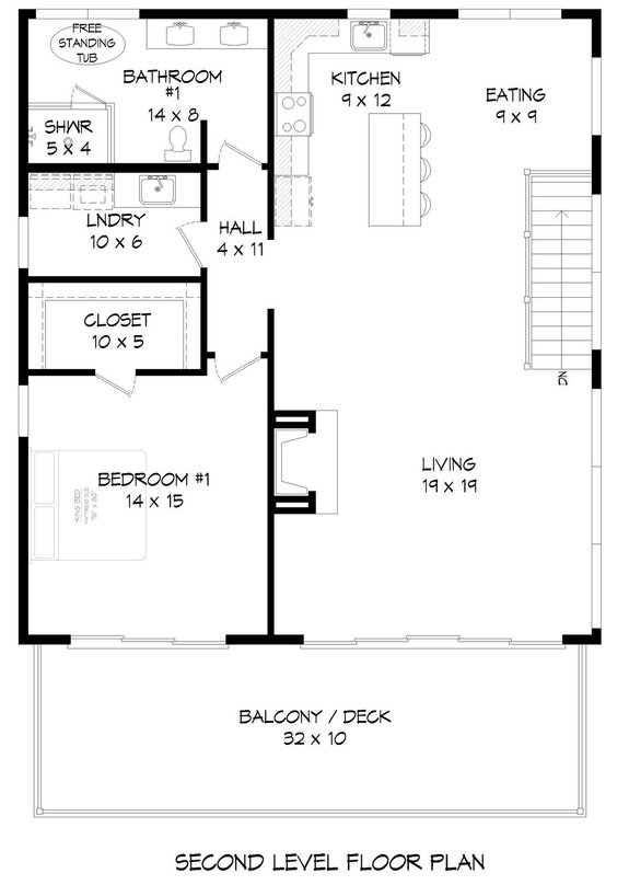
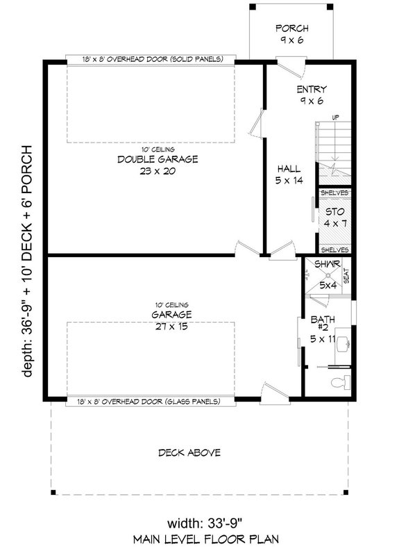
This simple contemporary house is a great option for owners who are looking for additional storage space. There are drive-up garages at the front and back of the home, one of which can fit two vehicles. A formal entryway welcomes guests into the space and there is a storage closet with built-in shelves at the end of the hallway. Upstairs is the main living area, which gets lots of natural light from many glass doors and windows. The open floor plan is simple and great for hosting, especially in the summer when owners can slide open the glass doors to the spacious balcony. Owners can prepare meals in the kitchen with ease and entertain guests at the island with a built-in bar top.

Low-Budget Cottage Low-Budget Cottage Low-Budget Cottage - Front Exterior

Low-Budget Cottage Low-Budget Cottage - Main Floor

Low-Budget Cottage Low-Budget Cottage - Upper Floor

At 882 sq. ft., this cozy Craftsman style cottage has charm and functionality. The great room sits on the main level, where sliding glass doors let in lots of natural light to the space. There’s a cozy eating bar in the kitchen for relaxed meals and entertaining. The stacked washer and dryer are hidden behind a door to maximize space along with the corner shower in the main floor bathroom. Upstairs are the two cozy bedrooms with sloped ceilings and a shared bathroom.

Simple Craftsman House Plan Simple Craftsman House Plan Simple Craftsman House Plan - Front Exterior

Simple Craftsman House Plan Simple Craftsman House Plan - Main Floor

Simple Craftsman House Plan Simple Craftsman House Plan - Upper Floor

This simple Craftsman house plan boasts some charming curb appeal. The elegant front porch welcomes guests and showcases the traditional Craftsman style. Through the front porch is a formal foyer, which features a hall closet and powder room. There is a useful kitchenette in the open living space and a doorway to the attached single-car garage. Upstairs are two simple bedrooms with closets and a bathroom with two sinks (a surprisingly luxurious touch).

Low-Budget Country Plan Low-Budget Country Plan Low-Budget Country Plan - Front Exterior

Low-Budget Country Plan Low-Budget Country Plan - Main Floor

Low-Budget Country Plan Low-Budget Country Plan - Upper Floor

Looking for a simple plan that focuses primarily on at-home entertainment? This country style plan has impressive indoor and outdoor living spaces that are great for hosting. Inside, the focus is on the eye-catching kitchen, which flows effortlessly into the dining and living room. On those warm summer nights, the double sliding glass doors can open to the rear patio. A luxurious feature of this simple plan is the walk-in pantry that sits adjacent to the kitchen. Owners will be able to prepare meals on the island while also entertaining. Click through to see inside!

Simple Two-Story Farmhouse Simple Two-Story Farmhouse Simple Two-Story Farmhouse - Front Exterior

Simple Two-Story Farmhouse Simple Two-Story Farmhouse - Main Floor

Simple Two-Story Farmhouse Simple Two-Story Farmhouse - Upper Floor

This farmhouse has charming curb appeal with a simple layout inside. The entryway leads down the hallway where it opens to the spacious great room and kitchen. A wood stove sits in the great room, adding to the overall cozy vibe. The kitchen island has a built-in eating bar to maximize space and allows owners to entertain guests with more ease. Owners can also enjoy the walk-in pantry and views out to the covered deck. Check out the studio suite on this floor! A unique feature of this farmhouse is the upstairs vaulted loft with a spacious full bathroom and walk-in closet. For additional storage and to maximize space, there are three attic storage areas.

Contemporary Low-Budget Plan Contemporary Low-Budget Plan Contemporary Low-Budget Plan - Front Exterior

Contemporary Low-Budget Plan Contemporary Low-Budget Plan - Main Floor

Contemporary Low-Budget Plan Contemporary Low-Budget Plan - Upper Floor

The covered porches extending from this contemporary plan add outdoor living. On the first floor, the dining and living rooms flow into one another with ease. Abundant windows allow for natural sunlight to stream in, creating an open feeling throughout. Upstairs there are two bedrooms.

Browse more simple two-story house plans.

Coupon Codes