BLOG
Our Favorites + Building Knowledge and Materials
Home>Articles

Modern Lake House Plans

Modern Lake House Plans
Explore these modern lake house plans.

By Devin Uriarte

Escape all the hustle and bustle of the city and retreat to the lake. Whether you’re living at the lake full time or are just visiting for the weekend, these modern house plans are great options. Explore this collection of plans and find the lake house plan of your dreams.

Want to view the full collection? Check out all of our modern lake house plans.

815 Sq. Ft. Lake House 815 Sq. Ft. Lake House 815 Sq. Ft. Lake House - Exterior

815 Sq. Ft. Lake House 815 Sq. Ft. Lake House - Main Floor Plan

The exterior of this lake house brings a modern twist to a simple plan. Cozy up in the living room in front of the two-sided fireplace in the living room. On the other side of the fireplace is the primary suite with a walk-in closet that leads into the full bathroom. Next to the bathroom is the convenient washer and dryer that is tucked away. There is a sliding glass door in the primary suite that leads out to the back porch where you can take in the views of the property. In the kitchen, you can prepare meals at the island and serve guests in the dining area.

Contemporary Lake House Plan Contemporary Lake House Plan Contemporary Lake House Plan - Exterior

Contemporary Lake House Plan Contemporary Lake House Plan - Main Floor Plan

Contemporary Lake House Plan Contemporary Lake House Plan - Upper Floor Plan

Feel right at home in this contemporary style house plan. The interior of this lake house has a modern open floor plan that makes an ideal spot for entertaining. Upon entering the home from the two-car garage, there’s a large laundry room. The foyer brings you into the living room and L-shaped kitchen where the island ties together each of the spaces. Down the hall is the private primary suite with a walk-in closet and full bathroom.

There are two additional bedrooms on the second floor along with a bonus room that can be used as a second living space or game room.

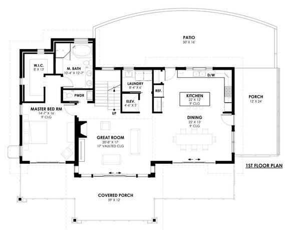
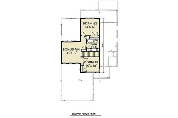
Luxury Lake House Plan Luxury Lake House Plan Luxury Lake House Plan - Exterior

Luxury Lake House Plan Luxury Lake House Plan - Main Floor Plan

Luxury Lake House Plan Luxury Lake House Plan - Upper Floor Plan

Enjoy the views of this luxury lakeside house plan with its stunning windows. The impressive kitchen island helps break up the spaces while still maintaining good flow. Relax outside on one of several huge outdoor living spaces. The primary suite sits on the main floor and there is an impressive walk-in closet and full bathroom. Head upstairs to where the two guest bedrooms are located. Both bedrooms have access to private balconies and separate bathrooms.

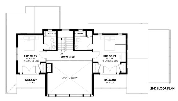
Lake House Plan with Wraparound Balcony Lake House Plan with Wraparound Balcony Lake House Plan with Wraparound Balcony - Exterior

Lake House Plan with Wraparound Balcony Lake House Plan with Wraparound Balcony - Lower Floor Plan

Lake House Plan with Wraparound Balcony Lake House Plan with Wraparound Balcony - Main Floor Plan

Lake House Plan with Wraparound Balcony Lake House Plan with Wraparound Balcony - Upper Floor Plan

This three-story lake house has a wraparound balcony where you can take in the stunning views. Through the two-car garage is a flex space and the first guest bedroom and bathroom. Upstairs on the main level is the living space with an open concept floor plan. The kitchen features an island that’s great for meal prep and a convenient pantry. Step out from the living room to the covered balcony. The primary suite has a walk-in closet through the luxurious bathroom and has a private balcony.

Gather upstairs on the third floor and have lots of fun with friends and family in the game room.

Lake House Plan with Lots of Windows Lake House Plan with Lots of Windows Lake House Plan with Lots of Windows - Exterior

Lake House Plan with Lots of Windows Lake House Plan with Lots of Windows - Main Floor Plan

Lake House Plan with Lots of Windows Lake House Plan with Lots of Windows - Upper Floor Plan

Enjoy the view in this stunning home design. There are two guest bedrooms on the main floor where the garage is. Guests have access to their own living room where they can relax and unwind. The main living room is upstairs, which is sectioned off from the kitchen and dining area by the staircase. There’s a bar top built into the kitchen island and a cozy breakfast nook where you can enjoy meals. On those warm days, you can take your meals outside and take in all the gorgeous views.

The primary suite is on the main level and has its own sliding glass door entrance outside. There are closets on each side of the hallway that leads into the bathroom with dual sinks.

Modern Lake House with Covered Patio Modern Lake House with Covered Patio Modern Lake House with Covered Patio - Exterior

Modern Lake House with Covered Patio Modern Lake House with Covered Patio - Main Floor Plan

Modern Lake House with Covered Patio Modern Lake House with Covered Patio - Upper Floor Plan

Modern Lake House with Covered Patio Modern Lake House with Covered Patio - Lower Floor Plan

The kitchen of this modern lake house will be the center of all family events. There are ample amounts of counter space to meal prep and a convenient walk-in pantry. Enjoy meals at the built-in bar top or elevate your experience in the dining room. The fireplace in the living room elevates the overall living space and adds a touch of coziness. Sliding glass doors in the dining room open to the deck where you can take in the views.

Having an elevator in the home makes it easy to get around. The primary suite is upstairs and features a walk-in closet and modern bathroom. There is a second bedroom and an office space that share access to the bathroom. A unique feature of this home is the lovely daybed on the second floor. On the lower floor there is a guest bedroom and a fabulous media room where everyone can watch films. There’s a walk-in laundry room with a bench and two unfinished storage areas.

Two Bedroom Lake House Two Bedroom Lake House Two Bedroom Lake House - Exterior

Two Bedroom Lake House Two Bedroom Lake House - Main Floor Plan

This cozy two-bedroom lake house is great for a weekend getaway. The eat-in kitchen opens to the living room. Sliding glass doors lead out to the deck for excellent indoor-outdoor flow. Check out the flexible dining room.

Cozy Lake House Plan Cozy Lake House Plan Cozy Lake House Plan - Exterior

Cozy Lake House Plan Cozy Lake House Plan - Main Floor Plan

Abundant windows in this cozy lake house plan provide great natural sunlight that brightens the space. Have a dinner party and host guests and family in the open living space then enjoy drinks out on the covered porch and deck. There’s lots of counter space in the kitchen to prepare meals. Down the hall there’s a storage closet and the two bedrooms, with one having a walk-in closet. Back in the hallway there’s a closet with a stackable washer and dryer with the bathroom directly across.

Hillside Lake House Hillside Lake House Hillside Lake House - Exterior

Hillside Lake House Hillside Lake House - Main Floor Plan

Hillside Lake House Hillside Lake House - Second Floor Plan

This hillside lake house has unique curb appeal with its contemporary style and large windows. The main level of the home has the drive up three-car garage. Upstairs is the open concept living area with a kitchen island. The kitchen island has a built-in bar top where you can enjoy meals. For additional storage there’s a pantry in the hallway. There’s a cozy fireplace in the corner of the living room and French doors that open to the deck. Across the hall from the single bedroom is the bathroom with a linen closet for additional storage.

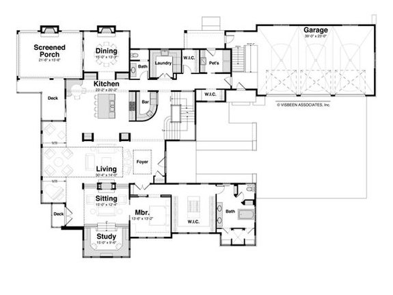
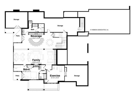
Modern Lake House with Screened Porch Modern Lake House with Screened Porch Modern Lake House with Screened Porch - Exterior

Modern Lake House with Screened Porch Modern Lake House with Screened Porch - Main Floor Plan

Modern Lake House with Screened Porch Modern Lake House with Screened Porch - Second Floor Plan

Modern Lake House with Screened Porch Modern Lake House with Screened Porch - Lower Floor Plan

Coming in over 6,700 sq. ft., this luxury lake house features two bar areas, a screened porch, a massive walk-in closet, and a loft area. The kitchen island opens to the formal dining room, breakfast nook, and main living room. Connected to the primary suite is a sitting room and a private study where you can work from home. The primary suite has a massive walk-in closet. Unwind in the luxe bathroom.

Both guest bedrooms on the second floor have walk-in closets and share access to a casual loft area. Host guests downstairs in the second family room with an impressive bar. There’s another guest bedroom with its own private patio. Keep everything clean and in order with multiple storage areas.

Want to view the full collection? Check out all of our modern lake house plans.

Coupon Codes