By Courtney Pittman
Characterized by minimal, straightforward, and efficient home designs, modern architecture boasts a style that is spacious and livable. With open floor house plans and seamless connections between the interiors and exteriors, modern house designs exude style with ease. Here are some house plans that exhibit he modern style we just can't get enough of.
Discover contemporary-modern house designs here
Contemporary-Modern Plan for a Narrow Lot
Plan 1070-7

Working with a narrow lot? This beautiful contemporary-modern layout is only 33' wide! Step inside and note the open floor plan and kitchen island with eating bar. Just off the kitchen and dining room lives a spacious deck with outdoor fireplace, which creates chic indoor-outdoor flow. Upstairs lies the master suite and an extra bedroom with balcony.
Considering this plan's roomy outdoor living space and expansive windows, it might also be the perfect home design if you have a view lot.
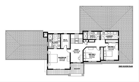
Contemporary Home with Stone Accents
Plan 1042-19
Exterior stone adds a rustic touch to this luxury contemporary home plan, which, true to its design aesthetic, showcases large windows and abundant outdoor living areas, including a covered side porch, two patios, and a balcony.
Inside, a cool cooktop kitchen island is open to the dining room and fireplace-warmed great room.
On the opposite side of the layout, note the mudroom and powder room off the garage, as well as a rec room and an extra bedroom, either (or both) of which could be used as a home office. Travel upstairs and you'll discover the remaining three bedrooms, including the master suite, a study, and the laundry room.
Contemporary House Plan with Open Floor Plan
Plan 1066-125
This modern house design shows off cool contemporary curb appeal. Inside, the layout is simple and open. The kitchen overlooks both the family room and the dining areas (below), with a big island giving you lots of space to prepare tasty treats.
The home office gives you plenty of privacy and invites you to get work done. Enjoy relaxing in your private master suite (located on the second floor) complete with dual sinks and a huge walk-in closet.
Modern House Design with Plenty of Windows
Plan 928-287
This modern house design gathers views from almost every angle with plenty of windows. An airy open house floor plan grants homeowners ease and flexibility.
A double-sided fireplace (above) warms both the living and hearth rooms, while a home theater delivers ample entertainment. The master suite (located on the main floor) offers a unique layout with a vast walk-in closet between the spacious bathroom and bedroom.
A wide kitchen island (above) seats up to six people and creates a food-focused entertaining space for friends and family.
Multiple outdoor spaces such as the covered patio and screened porch (above) allow homeowners to enjoy their own private oasis and a quick escape from daily stressors year-round.
Modern House Plan with Outdoor Living
Plan 892-25
This modern house design boasts clean lines that reflect the modern lifestyle with a simple and functional approach to architecture.
The open floor plan encourages convenience with easy access to the outdoors just off the great room and dining spaces (above). Vaulted ceilings help the area feel bright and open, while wood beams add warmth and character. Sliding glass doors deliver natural light and bring the outside in, making the room feel even bigger.
This stunning kitchen (above) is brimming with character (just look at those wood beam ceilings and attractive cabinets). A grand window above the kitchen sink lets an abundance of light fill the space, while a generously sized island is the perfect gathering spot for family and guests.
Check out these kitchen island ideas from Country Living
House Design with Mudroom
Plan 892-20
This house design is all about functionality with an open floor plan, flex space, mudroom, and a generous laundry room. A metal butterfly roof gives off modern appeal and pays homage to mid-century homes.
Breezy and modern, this great room is full of casual living space (above). Large windows and glass doors open to the outdoor terrace and extend the living area. A stone fireplace administers warmth and lends a cozy feel to this contemporary design.
Diverse materials and textures (brick, wood, metal, and glass) give an ornamental touch to this cook space (pictured above). A double kitchen island improves traffic flow and function while providing extra seating when entertaining (because let’s be honest, everyone hangs out in the kitchen). Abundant windows modernize this room and make it feel bright and open.
Take a look at these fireplace designs from HGTV
Spacious and Sleek Modern Design
Plan 892-12
Here’s a sleek and clean design that exudes luxury. Spacious and open, this modern house is great for a growing family or homeowners who host and entertain regularly. The main living areas enjoy a full view of the covered outdoor terrace (also pictured above) with retractable doors that extend the living space for a seamless flow.
Three levels of outdoor living, dining, and entertaining space encourages long evening sits year-round.
Modern House Design with Farmhouse Charm
Plan 23-2637
A mix of simple (and open) spaces and organic materials (such as wood and stone) convey a modern, yet homey, tone in (above). Detailed with farmhouse charm (board-and-batten siding and a gable roof over the entrance) and modern tastes, this design combines the best of both worlds.
Flanked by stone columns, the rear covered porch retains simplicity while incorporating modern features. An outdoor grill makes relaxing a breeze and is a nice retreat.
Open Floor House Plan with Island Kitchen
Plan 892-24
Spacious and open, this modern home design is great for a growing family or homeowners who host and entertain regularly. A large kitchen is sizable enough for large crowds and opens directly to the living and dining rooms for a seamless flow.
On the exterior, an ample amount of outdoor living space is able to fulfill a myriad of functions and makes entertaining guests a piece of cake (watch out, they may never want to leave).
The views from this expansive great room (above) are exceptional thanks to the glass retractable doors that open to the outdoor terrace. Windows above the doors and vaulted wood beam ceilings allow the room to feel clean and airy, while the open floor plan connects it to the other social spaces.
Modern Ranch Design
Plan 23-2620
A unified design aesthetic is created throughout this petite modern home, above) thanks to the open floor plan. At just 1,146 square feet, this house design maximizes efficiency. Packing in two bedrooms, one bathroom, and an open living flow between the kitchen, dining, and great rooms, this modern stunner has simple convenience written all over it.
On the exterior, a mix of organic materials (such as wood and stone) convey a contemporary, yet homey, tone. Detailed with cozy charm and a spacious layout, this design combines the best of both worlds.




























