Eplans.com

Questions about this plan? Visit Eplans.com today or call 1-800-528-8070

View plan at /plan/1472-square-feet-4-bedroom-2-00-bathroom-0-garage-sp178412

Plan 17-2884
1472 sq/ft
4 beds
2 baths
44' 2" wide
39' deep
Plan QR Code
Pricing
Plan Set
PDF Set
$700.00
5 Copy Set
$850.00
5 Copy and PDF Set
$1100.00
Foundation
Crawlspace
+$0.00
Slab
+$0.00
Basement
+$299.00
Daylight Basement
+$399.00
Framing
Wood 2x4
$0.00
Wood 2x6
$299.00
Right-Reading Reverse
Each
+$299.00
Additional Construction Sets
Each Additional Set
+$80.00/each
Audio Video Design
Each
$165.00
Comprehensive Material List
Each
$295.00
Construction Guide
Each
$39.00
Lighting Design
Each
$165.00
Roof Framing Detail
Each
$199.00

Full Specs & Features


Dimension
Depth: 39'
Height: 22' 8"
Width: 44' 2"
Area
Bonus: 199 sq/ft
First Floor: 1140 sq/ft height 8'
Second Floor: 332 sq/ft height 8'
*Total Square Footage only includes conditioned space and does not include garages, porches, bonus rooms, or decks.
Roof
Primary Pitch: 10:12
Roof Framing: Conventional
Roof Type: Metal
Exterior Wall Framing
Framing: Wood - 2x4
Bedroom Features
Fireplace
Additional Room Features
Great Room Living Room
Outdoor Spaces
Covered Front Porch
Rooms

Bedroom 1:

143 sq/ft width 11' x depth 13'

Bedroom 2:

100 sq/ft width 10' 11" x depth 9' 2"

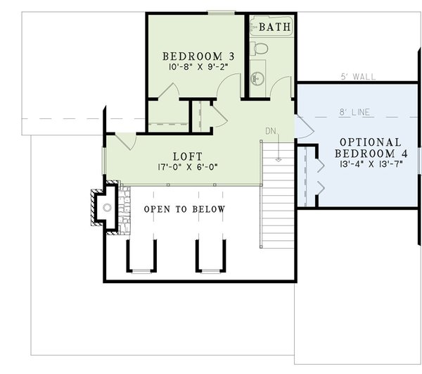
Bedroom 3:

97 sq/ft width 10' 8" x depth 9' 2"

Great Room:

272 sq/ft width 17' x depth 16'

Kitchen:

166 sq/ft width 13' 4" x depth 12' 6"

Floor Plan - Main Floor

House Plan Design - Floor Plan - Main Floor for Colonial House Plan #17-2884 - 4 bed, 2 bath

Floor Plan - Upper Floor

House Plan Design - Floor Plan - Upper Floor for Colonial House Plan #17-2884 - 4 bed, 2 bath
Eplans.com
Questions about this plan? Visit Eplans.com today or call 1-800-528-8070
View this plan at /plan/1472-square-feet-4-bedroom-2-00-bathroom-0-garage-sp178412

In addition to the house plans you order, you may also need a site plan that shows where the house is going to be located on the property. You might also need beams sized to accommodate roof loads specific to your region. Your home builder can usually help you with this. You may also need a septic design unless your lot is served by a sanitary sewer system. Many areas now have area-specific energy codes that also have to be followed. This normally involves filling out a simple form providing documentation that your house plans are in compliance.

To find out what documents you should expect with your house plans, see /help/faq#faq13.

In some regions, there is a second step you will need to take to insure your house plans are in compliance with local codes. Some areas of North America have very strict engineering requirements. Examples of this would be earthquake-prone areas of California and the Pacific Coast, hurricane risk areas of the Florida, Gulf & Carolina Coasts. New York, New Jersey, Nevada, and parts of Illinois require review by a local professional as well. If you are building in these areas, it is most likely you will need to hire a state licensed structural engineer to analyze the design and provide additional drawings and calculations required by your building department. If you aren’t sure, building departments typically have a handout they will give you listing all of the items they require to submit for and obtain a building permit.

Additionally, stock plans do not have a professional stamp attached. If your building department requires one, they will only accept a stamp from a professional licensed in the state where you plan to build. In this case, you will need to take your house plans to a local engineer or architect for review and stamping. In addition, plans which are used to construct homes in Nevada are required to be drawn by a licensed Nevada architect.

Note: All sales on house plans are final. No refunds or exchanges can be given once your order has been fulfilled or once we have begun to customize a home plan to your specifications.